查看完整案例

收藏

下载
,时长01:04
“天下三分明月夜,二分无赖是扬州。”扬州,国家级历史文化名城。坊隅巷留下了历代文人墨客的足迹,为这座江北诗城赋予独特的魅力。
「文昌映」延续扬州人文气质,打造现代城市中的隐奢人居,隐于一方。
本案位于扬州市仪征市文昌路西延线上,从项目地至扬州火车站仅有七公里,交通便利,往东直达扬州市中心,往西可通往南京市。
文昌路是一条主干道,同时也是一条通古达今的历史长街,沿途可见各个历史时期的名胜古迹,有“唐宋元明清,从古看到今”之喻。作为西向的大动脉,承载了巨大的交通流量。
▲文昌路
低密生态墅居,天地院墅,宅院合一,可在庭院中静享自然,栽花种草,体验四季逸趣。
▲效果图
▲效果图
▲实景图
在中国古典园林中,通常以山、水为基础,并辅以花草树木等。在漫长的历史长河中,园林因其具有的不同内容和形式而被赋予了不同的名称,提取园林中丰富的元素,赋予「文昌映」灵魂。
抚琴、调香、赏花、观石、弈棋、烹茶、听风、饮酒、听瀑、诗歌、绘画……我们将古风之姿融入到建筑的场景设计中,从而营造出“雅”、“静”、“朴”、“隐”、“禅”、“素”六大景观场景。
「文昌映」把沿路 40M 绿化带打造为人文自然园林,将画卷之笔墨复刻为城市之实景,为人创造清雅之境,为景创造天工之形。
▲实景图
空间上营造传统合院多重多进式空间体验,通过流线引导将合院空间最大化展现。
中心水院将各个建筑体块联系起来,建筑屋顶单坡成内聚之势。
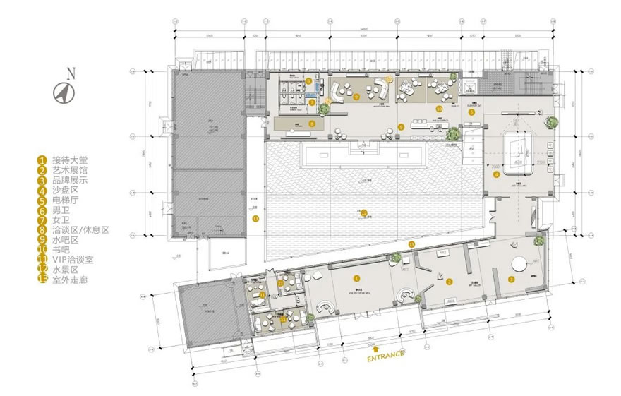
▲ 一层平面图
下沉庭院为地下会所提供自然采光。
▲ 负一层平面图
文化石和金属飘板的结合,酝酿出「文昌映」的风骨,简洁对称的入口凸显沉稳,文雅精巧的立面引人入境。
进入大门,步入眼帘的是一片水景,移步换景,穿过游廊,近距离感受「文昌映」意境,以现代的手法再现古典东方美学。
半亩方塘,云影徘徊
后场空间景观在设计上延续前场景观风格,曲折环绕的景观道路充满园林之趣,竹、松、柏遍植其侧,野趣横生。
通往样板间的道路暗藏在游廊一侧,通过景观节点,两侧树景交相掩映。
寻幽探景,清闲逸静
起笔经典人居盛景,定义精致轻雅生活,勾勒建筑美学意境,传承国学文化精粹。
▲ 节点构造
▲ 立面图
▲ 施工现场
新能源·文昌映
期待与您相见
项目档案
开发企业:新能源置业集团
建筑设计:PTA 上海柏涛
设计团队:柏向创作中心,柏向事业三部
设计主创:胡桥,李麟
团队成员:王星明,黄榆博,管丹丹,周宗荣,于佰鹏,苗晨光,林茵洁,吴欣洋,王瑞恒,邓鹏飞,黎世杰,路熠楠,徐雅慧
景观设计:上海魏玛景观规划设计有限公司
室内设计:郑树芬室内设计(深圳)有限公司
软装设计:郑树芬室内设计(深圳)有限公司
幕墙设计:扬州福腾门窗幕墙有限公司
施 工 图:江苏筑森建筑设计有限公司
项目地点:中国·江苏·扬州
用地面积:3600㎡
建筑面积:1900㎡
设计时间:2020 年 12 月
开放时间:2021 年 11 月
建筑摄影:Moment |乔云峰,远洋
景观摄影:IAM 岸木摄影
客服
消息
收藏
下载
最近

















































