查看完整案例


收藏

下载
建筑不是一个完成品,而是适应变化的人文环境。——黑川雅之
前言
深圳教育资源高地,发展和完善城市的教育体系,提升教育水平,不仅是打造核心竞争力的需要,同时也是满足城市居民基本受教育的权利。近年来,深圳在教育方面的经费投入持续走高,不断加大高端人才的引进,教育水平日渐提升。福田区作为深圳市的中心区,积极推动基础教育从局部优质迈向全面优质,致力于打造与深圳市发展地位相匹配的本真、适才、普惠的优质教育。
莲花中学北校区项目地处深圳福田中心区,位于彩田路与莲心路交界处,西北隔路遥望莲花山,地理位置优越。项目整体拆除已有校舍约 20000㎡,在现有基地范围拟按九年一贯制 54 班规模新建校舍。
⊙鸟瞰效果图
基于对未来教育空间的畅想与研究,设计团队在确保使用功能的前提下,希望建筑可以布置得更加高效集中,将空间留给活动场地,操场与架空无障碍连通;同时变地下空间为半地下空间,尽可能提升空间品质,使校区拥有更多自然采光通风。
⊙园区效果图
留白
设计这样就好
深圳学校项目高容积率的约束下,虽然创造了更多学位,却也使得校园空间略显局促。在莲花中学项目中,设计团队希望通过节制的设计,在预设定义的使用空间之外,用留白的方式为校园生活创造更多拓展空间,减少设计者的绝对干预,将活动场景的话语权交给使用者,让校园在时间维度中因使用者的参与而增加质感。
⊙由图书馆看操场
⊙南入口
天性
以运动为底色
成长,从来离不开运动;运动,也一直是孩子的天性。在提倡素质教育的今天,身心健康更仰仗于足够的体育活动。
因此,在整体功能布局上,设计采用垂直分区,近地面高度的场所安排体育、美术、艺术等与孩子天性更契合的教学空间。设计提供大尺度的户外运动场所,让自由奔跑,肆无忌惮的玩耍在校内触手可及,最大限度保留学生宝贵的天性。
架空之上设置更为理性的常规教室,主要为静态教学空间。设计强调功能与使用效率,体现学识的逻辑性和条理性,在科学的框架下搭建学生成长的知识体系。
⊙设计愿景
⊙操场效果图
拓展
自由奔跑&视野开阔
面对深圳学校建设不可避免的高容积率,我们采取的策略是抬高操场。将西侧操场抬高至 6 米,并将东侧教学楼二层整层设计为架空层,形成一个东西贯通、覆盖整个学校基地的平面户外运动场地。南北两侧的主入口,分别设计大踏步台阶,架空层在南北方向也依然通透。
⊙设计概念
相同的标高令空间和视线极大延伸,架空层的活动空间成为露天操场的有效补充。架空空间避免直晒,四面通透,有利于降低局部空间温度,更适合学生在南方炎热的天气上户外课,起到清凉城市的效果。同时,架空场地和操场抬高至二层的设计,使得从各层教室下到活动场地的垂直距离直接减少一层,缩短从教室到达活动场地的时间,更有利于增加学生课间休息的有效活动时间。
⊙南北向剖透视示意图
⊙设计概念
流动
阳光和风的通道
在教学楼区下方设计约 2000㎡的负一层下沉庭院,围绕庭院分别设置游泳馆、体育馆、食堂和地下接送空间等。在一层设计美术、音乐、舞蹈及多功能厅等空间,通过多种灰空间串联在一起,形成近地面的艺术音体空间。
一条环形坡道围绕下沉庭院中心,从二层架空直通负一层庭院。架空通廊将各主要空间环状串联,下沉庭院成为重要的室外活动中心。风雨操场借助高挑的层高东西向的开敞,实现完全的自然采光通风。
⊙下沉庭院坡道
艺术,是人类最原始的天性表达。唱歌、跳舞、演奏、画画等都是人类与生俱来的天性,是本能,是潜意识里情绪的表达。因此,一层艺术教室局部采用弧线设计,令室内空间更为多样,公共空间更为流畅。通过这个下沉庭院,阳光照射到各个角落,风在交通空间里流动,流动的空间设计使建筑变的鲜活起来。
⊙下沉庭院和教学楼
在教学楼与操场间首层设计 8 米主通道,上有顶盖架空挡雨,成为主要疏散通道。通道串联起报告厅及艺术类教室,在首层围绕胚芽型的下沉空间,形成环状空间,与下沉庭院和操场空间遥相眺望,视线通透,空间灵动。设计团队不去做专门的定义,将这些高度不一的架空空间通过下沉庭院组合在一起,成为整个校区最为灵动活泼的场所;在之后的使用中,将所有的使用权交付给学生和老师们,让他们成为空间的主人。
⊙下沉庭院和艺术教室
不染
不为风格而生
予独爱莲之出淤泥而不染,濯清涟而不妖,中通外直,不蔓不枝,香远益清,亭亭净植,可远观而不可亵玩焉。
——《爱莲说》
⊙莲花意向
学校整体造型以满足使用功能为出发点,不刻意做风格化的装饰,而是通过空间本身的形态来打造。设计团队避免使用过多的色彩和图案的堆砌,希望通过立面的设计来培养和释放学生的想象力,提高学生对于审美的认知。
⊙入口景观台阶
立面以白色为主基调,木色作为辅助色,局部运用白色铝板和穿孔板作为立面点缀,以现代化的建筑设计语言打造轻盈洁白的形象,营造清新素雅的校园气质,形成独特的校园文化内涵。
⊙由学校远眺莲花山。通过造型和空间的刻意留白,时间也成为校园立面和空间的组成部分,为师生预留了更多的想象空间。随着时间的推移,校园生活中的种种场景将映射在校园的整体风貌当中,留存在学生和教师们的记忆当中。
⊙校区北入口
⊙ 沿街效果图
图纸
为深圳教育而建
⊙总平面图
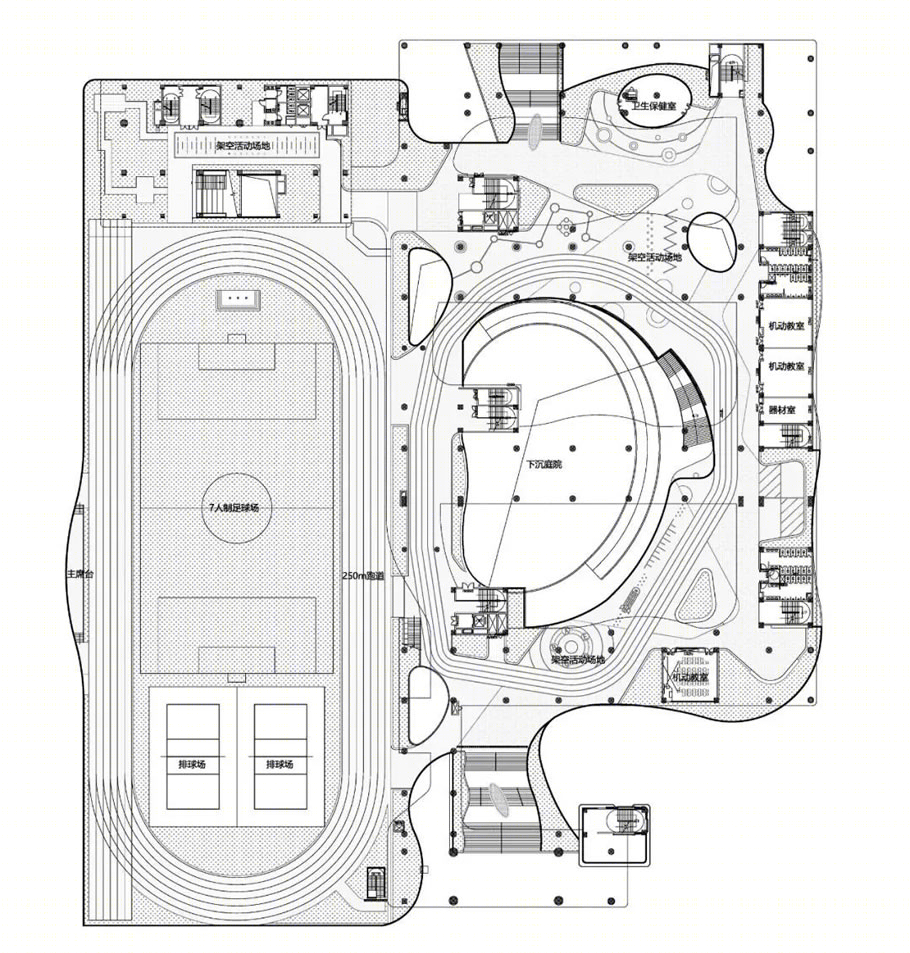
⊙负一层平面图
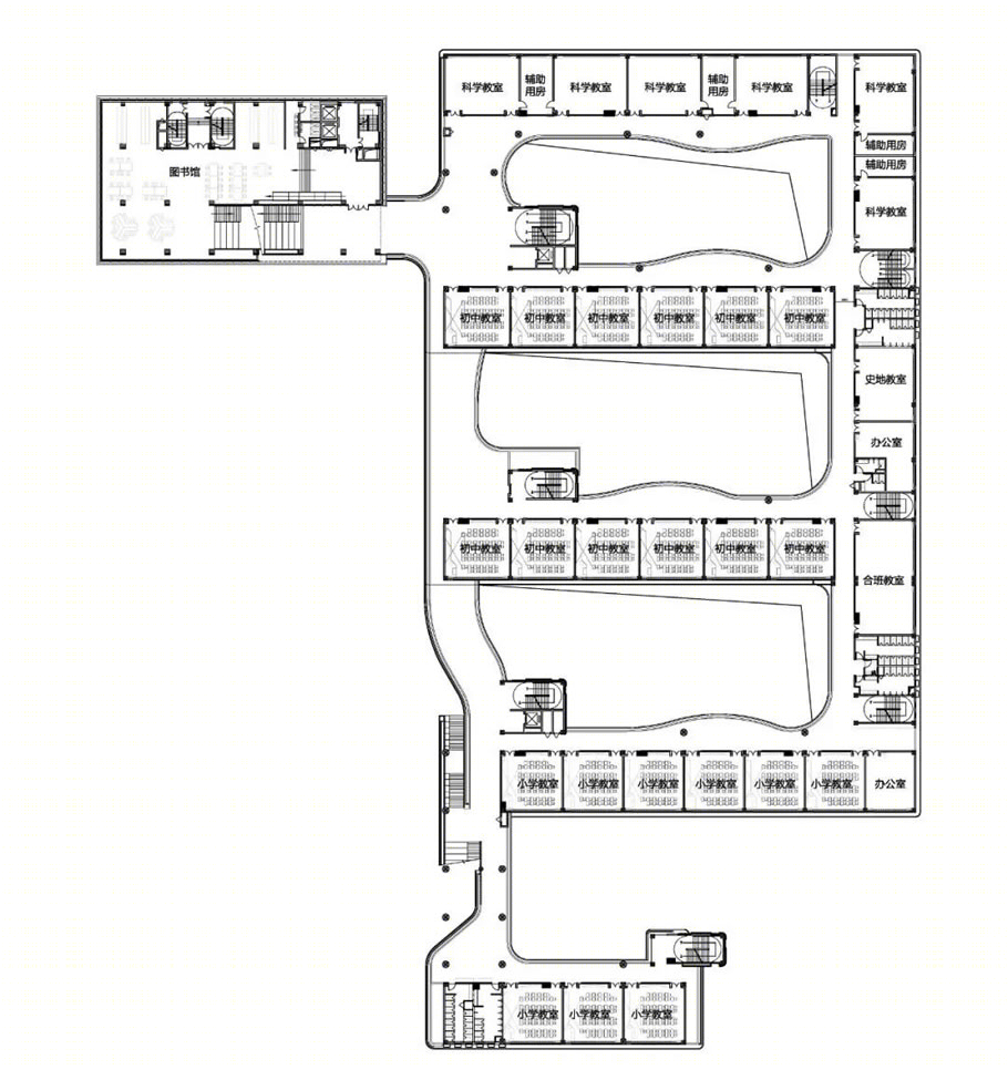
⊙一层平面图
⊙二层平面图
⊙三层平面图
⊙北立面图
⊙东立面图
⊙剖面图
项目地点:深圳市福田区
项目类型:教育类建筑
总建筑面积:71456 平方米
校区规模:54 班九年一贯制学校
业主单位:深圳市福田区建筑工务署、中国建筑第五工程局有限公司(代建)
建筑设计:香港华艺设计顾问(深圳)有限公司
项目总负责:陆强、夏熙
方案设计团队:张蕾、刘永程、曹志鹏、王梅、胡斌、苏飞、胡日建、徐越、曾嘉、宋海东、万捷、赵旭、莫梓豪、罗希夷、卢懋恺
施工图设计团队:鲁艺、宋丽娟、张宝文、庄燕珊、陈东源、于丽霞、梁莉军、俞歆晨、王强、李名衔、李细浪、奚维武、骆婉婧、郑周、刘文杰、何雁、聂磊、柯文兵、周晓光、韦念君、彭加木
经营团队:杨文海、邓珊丹
服务范围:设计总包
项目进度:在建
客服
消息
收藏
下载
最近




























