查看完整案例


收藏

下载
建筑师希望能够在快速发展的城市节奏中,开辟一处“大隐隐于市”的居住空间。以自然之名创造充满生命力与静谧感的生活场所,在都市繁华之中,在心灵净土上独善其身。
示范区位于“万科·江湾澜庭”项目北区,由示范区、商业与入口广场等空间构成,通过规划和设计,旨在将其打造成一个丰富多元化的“生活、饮食、展示、休闲”的街区环境。
以示范区为中心,通过横贯横四路南北的商业步行街联系了一个滨水的街区广场,在一个较小的地块中形成了层次化的过渡,将人流从喧闹的城市主干道,通过近人尺度的商业步行街引入到开阔亲水的广场,实现示范区前场空间形态上丰富的变化,将人流不断引入示范区。
体块生成
轴测图
01—超水平尺度的入口空间
示范区入口门头水平向的超尺度非对称格局,虚实对比强烈,彰显大盘气势,先声夺人,结合层次渐退的金属格栅和水景广场引导流向,展示示范区的前院空间。
近人尺度的雨棚檐口精致且轻薄,金属格栅为最常见的构成元素,格栅根据视距及面域大小粗细相间,追求各材质交接的纯粹性,局部辅以木质感元素调节建筑整体的冷暖段。
02—静水游廊
中国人喜欢“寻幽探胜”,这点与西方人不同,对自然的态度不是征服而是欣赏,所以他们喜欢在居室中引入自然,并以此隐喻那些顺理成章的自由以及能安抚人心的寂静。
售楼处洽谈区清澈透明大面宽的落地窗形成空间的内外互动,将内院的水境回廊引入室内,中院落地玻璃间隔围合,视觉上的自然感受被满足,置身于温暖的空间中,再现文人的“纵享山水,闲适自得”理想居所,以简洁含蓄的设计手法烘托出精致大气的示范区。
展示区设想为回廊游园,内向围合的水院被抽象为水平与垂直交错的组合面。横向水平延展的雨棚与竖向古铜色金属格栅的对比,让展示区从周围风格混杂的一众建筑中凸显出来。静水庭院间,松枝若隐,光影斑驳的玻璃延展界面定下沉稳大气的基调。
静谧而雅致的水院,漫步于内庭院中,隔离城市的喧嚣,采用小尺度的手法,回廊与院落的空间相得益彰,诠释着优雅而静谧的空间内涵。
中庭的景观运用动态的”滴水“效果,与地面静水形成强烈对比,动静结合,中间贯穿雾森。优雅静谧的意境贯穿始终。
内院结合后院,花木水石,纳天地灵气,宛自天意。一呼一吸,一吐一纳之间,感受自然的韵律。聆听自然,别成景致,浩悟禅意,雕琢合度。浓缩自然美景的大承手笔,着意境纯粹居所,还原品味生活。
售楼处二层立面采用层次间隔渐变的金属格栅,由一层的超透白玻幕墙托起,强调二层主体,仿佛漂浮于水镜之上,轻盈而精致素雅。单元式的格栅构成强调简洁大气的气质及强烈的韵律感,通过格栅长短及疏密的变化带来的渐变效果,增添设计感及趣味性。同时兼顾工艺难度及成本控制。结合两边回廊景墙,围合打造业主专属的私密空间,利用围合视线展现空间的高耸大气挺拔之势,辅以墙面留白,再次强调立面格栅的线条感与韵律感。
03
—
层层递进的院落空间
设计师对于售楼处所打造归家空间的想象是有层次的,从浓缩到开放、从隐到显、有张有驰,而示范区的营销中心则体现了对这一节奏艺术的传承与创变。售楼处入口处以新中式花窗隔栅分隔内院与外院,颇具古人‘犹抱琵琶半遮面’的美感,依次叠进,大堂、艺术廊、展示区、洽谈区又逐渐豁然开朗起来。
04—雅致的东方风格
雅致、东方是本案的设计风格的关键词。从平面布局中正轴线感以及空间当中的格栅,墙面米黄色石材温润而遒,有着隐约可见的自然肌理,沙盘区域格栅吊顶与挑高空间的外部格栅相互呼应,打造出自然舒适的光影空间,将沙盘展示区的空间调性进一步提升。
05—酒店式的归家体验
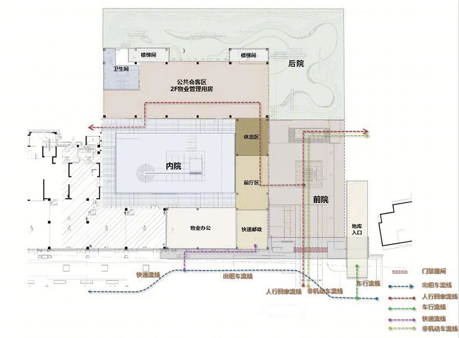
示范区后期将被打造成“社区会客厅”,设有社区公共大堂及酒店式落客区(小区会所),并设有完备的接待区、访客等候厅、物业管理处及专用的快递间,机动车、出租车、人行、非机动车流线均在入口即进行分流,各行其道,互不干扰。
快递外卖流线与住户全线无交叉,回家流线更是精心安排了数重庭院,层次分明的空间景观使住户及访客均有高星级酒店的尊贵感受。不再是一味追求豪华奢侈的风格,而是对一种精致生活情调的追求,强调度假酒店式的服务感受,社区客厅般的温馨舒适, 淡雅节制和深邃禅意的感觉。
项目信息
项目地址:江苏省昆山市
建筑面积:1360平方米
建设单位:苏州万科企业有限公司
甲方设计团队:徐珂、张培龙、沈维健、汤继威、张惟真
方案建筑设计:上海中房建筑设计有限公司
方案设计团队:朱亮、许声锋、姚玉、邹晗
土建施工图设计:江苏浩森建筑设计有限公司景观设计:上海棠澍景观设计咨询有限公司
室内设计:上海域正装饰设计有限公司
灯光照明:苏州皓月三千里城市建设有限公司
幕墙设计:上海辅厦建筑工程咨询有限公司
摄影:黎伟
客服
消息
收藏
下载
最近






















