查看完整案例


收藏

下载
©PROJECTION映社
©PROJECTION映社
Littlenap里奈九溪位于杭州西湖九溪景区,是对景区内原有住宅的改造项目。
Littlenap islocated inside the Xihu scenic area, it is a renovation of an existingresidential building.
场地原始照片
origin site
原有建筑包括了两栋紧邻的三层建筑以及一个单独的小房间,第一次查看现场,我们就和甲方共同决定,将单独的小房间从功能上与普通民宿区别开,使他成为一个具有多种可能性的空间,
The existingbuilding have two three story building adjacent to one another and a individualroom on the side. We decided to make the individual room separated from normalhostel program wise, and become a flexible space with possibilities.
©汪敏杰
©汪敏杰
同时将原有两栋三层建筑的一层打通,形成一个通畅开放的首层公共空间,这个公共空间与独立的小房间一同赋予了littlenap一种灵活性。
Meanwhile weconnect the tow three story building on ground floor, and thus creates a publicopen space, together with the separated room, they bring littlenap a uniqueflexibility
为了达成空间的连贯性和多功能性,我们对整栋房屋进行钢结构加固工作,拿掉了原有墙体,彻底将一层开放。
We strengthened the existing structure with steel to create an open space.
©汪敏杰
从这一点出发,我们真心希望将littlenap打造成一个具有文化或艺术属性的场所,而不单纯是一个民宿,首层的公共空间承载了餐厅、礼品、接待、交流等属性;
Start from here, we do hope littlenap could be a place more than hostel, a place of cultural and art.The open ground floor become a multi-function space of reception, gift shop,communication and restaurant;
©汪敏杰
而独立的小房间在日常作为单独的一个套间使用,定期会转换成为一个小展厅展示独立艺术家的作品,我们为他取名为napnapnap。
while the individual room normally operate as asuite room, and sometimes transfer to a small gallery for independent artists,we name it Napnapnap.
©PROJECTION映社
©PROJECTION映社
建筑在景区并且由于原有建筑的结构限制,我们没有对建筑外立面进行彻底的改造,我们使用了三种室外材料来对建筑外立面做了低成本改造
Since therestriction of the existing structure and Xihu scenic area regulation, we usematerial to simplify the renovation of building facade
©PROJECTION映社
对于室外庭院地面,我们使用了透水石,形成了单色耐久的室外地面效果
We use permeablestone plaster to create a monochrome exterior ground
©汪敏杰
建筑室外公共空间使用了红砖,虽然是传统材料,却形成了与景区其他建筑皆然不同的视觉效果和感受。
We used red brickat the public space, it differentiate the building visually from anything elsein the area.
©PROJECTION映社
建筑二三层外立面使用建筑外墙肌理涂料,使原本单调的建筑外立面形成了肌理感的光影效果
The 2nd and 3rdfloor facade is exterior paint with specific texture which adds a shadow effecton facade
©汪敏杰
©汪敏杰
Little nap 里奈团队对室内软装进行了设计和选择,与建筑空间结合形成了特有的空间氛围
Littlenap Team didthe furniture selection and design according to the interior atmosphere
©汪敏杰
©汪敏杰
吧台背景墙11把钥匙对应了11间客房
The 11 keys behindthe reception represents the 11 rooms inside littlenap.
©汪敏杰
Napnapnap在硬软装设计上区别于其他房间,但同时又在风格上形成统一,空间中的家具均可以方便变换位置,床架也是特别设计,将两部分床架上下叠放,可形成一个陈列展台。
Napnapnap is different from any other room both interior and furniture design wise, but it matches the whole design, the interior furnitures could be move easily, the bed is specifically designed so when it is stacked, it becomes a display desk.
©汪敏杰
©汪敏杰
©汪敏杰
©汪敏杰
每一间客房的窗外都是极富绿意的美景,在结构允许的范围内,我们在墙上、屋顶、茶室设置不同大小形状的窗户,让光线、景观通过不同的方式进入到室内。
Every room has a different scenic view, so we put different openings on walls, roof, and tearoom to invite sunlight and landscape into the room.
剖面图
section
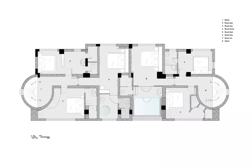
一层平面图
1st plan
二层平面图
2nd plan
三层平面图
3rd plan
里奈酒店
状况:完成
年份:2019
面积:600㎡
地址:中国杭州
项目类型:民宿酒店
设计公司:say architects
主持设计:单嘉男、张岩
团队:管晗羽、沈冰洁、孙紫益、徐瑞
空间影像:汪敏杰、PROJECTION映社
施工团队:杭州优办装饰有限公司
软装设计:里奈团队
客服
消息
收藏
下载
最近































