查看完整案例


收藏

下载
项目名称:朗诗寓|深圳福田荣超城市春天项目
项目位置:深圳市福田区南福华路 30 号
项目类型:建筑室内改造设计
设计内容:室内、软装陈设
建筑面积:4453 m²
业主:朗诗寓商业管理(深圳)有限公司
酒店管理:朗诗寓商业管理(深圳)有限公司
设计时间:2017 年 11 月 -2017 年 12 月
施工时间:2018 年 1 月 -2018 年 7 月
设计团队:朗奥 | 建筑 & 室内 兰庭空间|软装陈设
PROGRAM : LANDSEA APARTMENT | SHENZHEN
LOCATION : FUTIAN DISTRICT , SHENZHEN ,CHINA
CLIENT: LANDSEA APARTMENT
SITE AREA : 4453 M²
PROJECT DATE : 2017
PROJECT CURRENT STATUS : FINISHED
DESIGN FIRM : LOD | LALIVING & OPR DESIGN
STAGE – SOCIAL SPACE
多维立体社交的舞台
Aspired Living Style
Create unique community culture to inspire ideas for future.
创造独特的社交文化,激发探索未来的灵感。
“我要一所大房子,有很多很多的房间,一个房间有最快的网路,一个房间有很多的吉他,一个房间有我漂亮的衣服,一个房间住著朋友和他的爱人,一个房间一个房间,我也不知道该放些什么,我们晚上不睡觉,白天在床上思考,小狗在屋里奔跑,度过完美的一天”
I want a big house that have a lot of rooms. A room have the most fast internet in the world,A room I got a lot of guitars,A room has my beautiful clothes,A room that livies with my firend and lover.A room etc...i dont know what I should put in that house ,we dont sleep in the night ,we stay on the bed in daylight and thinking.my puppy is running in the house,so I live a perfect day.
项目区位及周边环境 | Location & Neighborhood
本项目位于福田中心区域,周边地下和地面交通都非常方便,北面紧邻深南大道,南面紧邻滨河大道,离福田中心公园 200 米,距离深圳中心‘华强北’只有 15 分钟路程。
The project design is located in the central area of Futian,with very convenient transportation,with the South Avenue in the noth side and the Binhai Avenue in the noth side and the about 200 meters from Futian Central Park and just 15 minutes from the Shenzhen Center "Huaqiang north"area.
建筑功能规划丨Building function planning:
项目设计范围是城市春天大楼的 19 层 ~26 层,物业有专门的电梯,层高 3.3 米。 19-26层为标准层,19层北侧有屋顶花园平台。
The range of this case is Chegnshi chuntian building 19F--26F,Property has a dedicated elevator,Floor height 3.3M.19F--26F is the standard floor. There is a roof platform on the north side of the 19th floor.
结合建筑本体垂直分散在每个楼层的公共区域范围,形成这样一个由不同功能的公共盒子错落分布组成的立体社交概念。设计师希望在楼体内打造一个多维度的、如同舞台一般能够展现不同社交需求和生活方式的建筑空间规划。
Combined with the common area is vertical distribution of each floor in this building.Forming a 3D social concept composed with difference function box.The designer hopes tu create a multi-dimensional space in this building.Like a stage can show us different social needs and lifestyle in this building.
我们希望通过设计能为漂泊在城市中的人们提供归宿,提供一个大同的生活圈子,能找到共同爱好的生活圈子。-超哥,90后设计师。
We hope that by design we can provide a home for those who are working in this city.Provide a similar living group.A group that we can found a person with a similar hobby--Chao,90's designer
公寓就是要有生活有朋友,有满满的人情味,一起看球一起嗨。-欢哥,80后设计师
The apartment is where we live,and we have many friends here,we can feel love here,we can watch football together and have fun together.--Huan,80's desiger
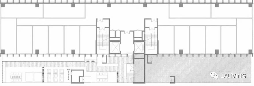
公区:平面、效果图、照片
19层平面图
上下滑动查看图片
19层平面
效果图
现场照片
上下滑动查看图片
20层平面
效果图
现场照片
上下滑动查看图片
21层平面
效果图
现场照片
上下滑动查看图片
22层平面
效果图
现场照片
上下滑动查看图片
23层平面
效果图
现场照片
上下滑动查看图片
24层平面
效果图
现场照片
上下滑动查看图片
25层平面
效果图
场照片
上下滑动查看图片
26层平面
效果图
现场照片
标准层排房、景观
标准层走道居中,东西向自然采光,双面排房。交通核心筒位于建筑中部,结合电梯前室及走道形成一个长的共享区域, 通过将传统的集中式服务公区按照功能用途拆分,形成积木式的垂直社交系统,在每个楼层嵌入一个或开放或私享的社区功能,从 19 层至26 层公区功能依次为:接待、影音、健身房、 公共客厅、工作站、阅读区、公共厨房、咖啡吧。另外在 19 层屋顶平台还设置了屋顶花园,满足一部分休闲娱乐的功能。
The standard floor corridor centered,East-west natural lighting,Arrange rooms with both sides,The traffic core is located in the middle of the building,The Long and narrow shared area is composed with the elecator hall and corridor.The functions of the 19th to 20th floors are:Reception,audio and video,gym,public living room,workstation,reading area,communal kitchen,coffee bar.And on the 19th floor has a roof garden,That can satisfy the most functions of leisure and entertainment
标准层透视图
景观庭院
剖面图
户型:平面、效果图、现场照片
上下滑动查看图片
A1户型层平面
效果图
现场照片
上下滑动查看图片
A户型层平面
效果图
在2015-2018长租公寓市场井喷式发展的几年,伴随10余个定位不同客户端、 不同定位、不同背景、不同品牌的客户,LOD完成了2万余套酒店及公寓产品,展开了产品定位、品牌研发、样板案例设计的系列空间研究工作。为每一个空间构筑个性的建筑语言,参与到居住生活方式变革的时代,紧密链接建筑与当代成长人群的需求,设计构建令人们互相关联、分享空间、生活方式、生活环境及生活状态的具象空间场所。
Dueing 2015-2018,when the market of the longtern rental apartment has a growth spurt,with more than 10 customers coming form various positioning,backgrounds and brands,LOD have completed more than 20000 sets of hotels and apartments and launched series of works on space research such as product positing,brand development and sample case design.We aim to build a unique architectural language for each space,to participate in the era of the lifestyle's change,to link closely people's growing needs and the architecture,and to design and construct a figurative space for people to connect each other and shuare space,lifestyle,living environment and living condition.
客服
消息
收藏
下载
最近














































