查看完整案例


收藏

下载
森林城市凤凰国际高尔夫酒店位于世界第二大红树林中央,距离森林城市海之贝5公里,与之配套建设还有:三座国际高尔夫球场、度假别墅区、红树林公园、游艇码头、风情商业街等,高尔夫酒店塑造了森林城市高端生活的新名片。
设计师运用森林之蝶、自然生长、揽林观景与绿色发展四大设计理念赋予这座建筑一个自然的外表与生态的内核,使其生于森林、长于森林、融于森林、耀于森林。
森林之蝶
蝴蝶被誉为马来西亚的三大珍宝之一。设计师运用仿生学建筑理念,模仿蝴蝶的生态特征,将两座高层客房楼成外八字对称布局——比翼双飞,构成天然风口,产生与客房开间形成角度的气流,有助于室内穿堂风的形成。两侧裙房代表蝴蝶翅膀,两座塔楼中间的大堂南北通透使大堂过堂风的效果加强,多重垂直绿化让两只蝴蝶自由生长在森林之中。
自然生长
生态的概念渗透高尔夫酒店设计过程的始终,自然采光通风,建筑立面垂直绿化自然生长,建筑随着植物生长呈现不同的自然特点,是一个自然生长于红树林公园、三大高尔夫球场的建筑。
酒店的环境和外立面设置绿化承载平台,辅以攀爬类植物,将酒店完全覆盖在绿色之下,使来客在远远望去的时候便体验到球场的特殊之美。
垂直绿化,融合自然:采用垂直绿化,与高尔夫和红树林环境融为一体。
览林观景
酒店位于三大高尔夫球场中心,集中配套,高效汇聚人流与节约成本;两个外八字客房塔楼与三大高尔夫球场相互呼应,形成360°看景,视线无遮挡,所有客房看景,最大限度利用景观面,将高尔夫景尽收眼底。
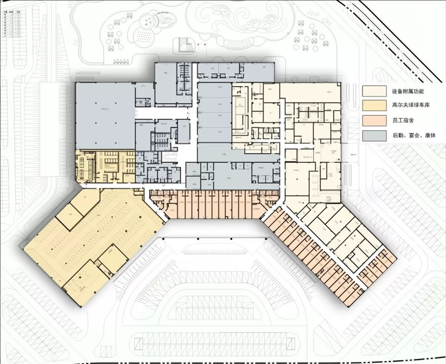
功能布局
店建筑面积约4.8万平方米, 涵盖餐饮、高端会所、客房以及高尔夫配套等多种功能。主要功能分布如下:
首层平面主要包含宴会、康体、高尔夫球车库、员工宿舍、附属设备用房等功能
二层平面主要功能酒店大堂、销售中心及办公、高尔夫球会、板房展示等
3—10层为酒店客房层,顶层为总统套房
▲首层平面
▲二层平面
正对湖景,景观震撼:酒店北面规划大湖正对酒店大堂,塑造震撼景色,酒店与住宅销售相得益彰。
宏伟大堂,结合销售: 酒店大堂展示宏伟沙盘,汇聚人流,带动销售。
绿色发展
垂直绿化利用外墙垂直绿化减少太能辐射的热量,使室内温度降低。
自然通风在建筑中设计外廊式布局以及可开启高窗,使其具有对流和通风效果,从而减低室内温度,实现可持续发展。
结构创新项目力求在大跨度结构设计中优化创新,在满足空间功能需求的同时做到经济合理,其结构本身也成为室内空间形态的组成部分,营造出通透大气、美观素雅的室内环境。
写在最后
高尔夫酒店传承森林城市绿色建筑的理念,运用自然通风、生态仿生、垂直绿化等手法对生态建筑新的形式进行了多层次的探索,获得融于森林的高品质度假环境的营造。
客服
消息
收藏
下载
最近


















