查看完整案例

收藏

下载
无锡融创文旅城位于无锡市滨湖区,地处长三角核心位置。项目总占地面积220万平方米,汇聚融创乐园、融创茂(包含融创商业广场、水世界、雪世界、海世界)、太湖秀剧场、星级酒店群、滨湖酒吧街8大业态;是集度假、旅游、文化、商业等多项内容于一体的世界级一站式综合旅游度假目的地。2018年,无锡融创文旅城被世界纪录认证组织(WRCA)评为“世界影响力奇迹乐园”。
▲无锡融创文旅城鸟瞰实景
无锡融创文旅城酒店群包含融创万达文华酒店、融创万达嘉华酒店、融创皇冠假日酒店以及滨湖酒吧街,以传统江南水乡和经典园林建筑为蓝本,传承江南深厚历史文脉。
启迪设计集团无锡分公司联手启迪设计集团机电设计二院承接了融创皇冠假日酒店以及滨湖酒吧街的设计工作。
▼无锡融创文旅城皇冠假日酒店沿湖实景
其中融创皇冠假日酒店建筑面积约45000平方米,客房共计293间,包含18间套房、112间双床房及163间大床房,并配有全日餐、商务中心、休闲中心等。整个酒店环湖而布,通过建筑与景观的完美结合,展现出了浓郁的地域性文化特点及度假氛围。
滨湖酒吧街总建筑面积约1.2万平方米,设计以无锡五大历史文化古街为原型,通过构筑宜人的建筑组合,打造丰富的滨水空间。结合亲水平台与大型水面,打造大型音乐喷泉场景秀,让在这里度假观光的游客找到一处放慢身心的净土。
▲无锡融创文旅城皇冠假日酒店外观实景
无锡融创文旅城酒店群规划方案在2015年8月的时候经历了一次升级调整,整个酒店群重新规划定位。无锡分公司于2016年11月中标后正式开始酒店的深化设计工作,而为了保证文旅城准时开业,总包单位进场施工时间已经明确为2017年3月。这意味着去除春节假期,实际留给设计团队的时间只有三个月左右。
设计时间紧迫但是质量不能放松,整个设计团队迅速运转起来,无锡-北京-苏州三地联合,针对设计过程中可能出现的问题和需确认的事项提前予以解决,避免后期设计出现反复,影响进度。对于后期精装、厨房设计、古建配合等,设计上也提前对接,考虑了预留量。
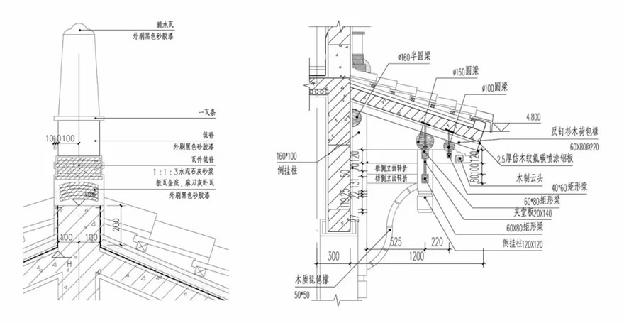
由于整个建筑风格为传统中式建筑风格,而酒店又是高层建筑,结构构件截面都较大,为了保证立面效果,设计团队和方案单位深入沟通,确定每个构造节点的做法,最终将方案设计的意图完整地呈现出来。
▲古建配合节点示意
▲古建配合节点实景
▲无锡融创文旅城皇冠假日酒店外观实景
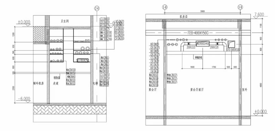
在本次酒店设计中,公共区域和后勤区暖通管道、强弱电桥架、消防水管等较多,因此项目中的净高控制尤为重要。在设计阶段土建和机电配合,根据建筑平面布置、结构梁高等确定机电机房位置和主管管线走向。机电设计中利用建筑夹层及坡屋面的空间合理排布机电主管线,减少在层高较矮处的管线交叉。
▲主要区域管综控制净高示意
在设计阶段充分了解内装对各部位净高要求,机电方案阶段考虑各区域主管走向及管线叠加,对影响净高要求的区域通过修改机房位置、减少结构梁高、降低内装净高要求等方式及时沟通解决,避免后期的修改。
▲无锡融创文旅城皇冠假日酒店外观实景
▲无锡融创文旅城皇冠假日酒店内部实景
酒吧街建筑风格跟酒店比古建元素要更多一点,而且为两层沿街建筑,为了保证立面效果,空调外机和机电设备都利用坡屋顶下的三角空间布置,这样从外观看不出任何机电管道的痕迹,保证了整个建筑古色古香的效果。
▼无锡融
创文旅城酒吧街全貌
▼无锡融创文旅城酒吧街实景
无锡融创文旅城现已盛大开门迎客,取得了良好的反响,整个项目规划设计也获得了社会的认可。作为施工图设计团队,启迪设计集团无锡分公司和机电二院的设计过程不能像方案设计那样天马行空,更注重的是项目的完成度;对建筑外观细节的把控,内部空间的营造,都要通过建筑、结构、机电等专业之间的协同合作来实现。
“敬业、精益、专注、创新”,在追求短平快的时代背景下,新时代的工匠精神作为一种优秀的职业道德文化,正是抹平这种浮躁心态的“镇定剂”,同时也是企业成功的制胜法宝。
项目名称:无锡融创文旅城融创皇冠假日酒店及酒吧街建筑设计
项目信息:江苏省无锡市
用地面积:54000平米
建筑面积:57000平米
设计团队:
启迪设计集团无锡分公司:
倪大为 徐尧 顾栋 张梁 金秀玉 钱红 仲旻晔 杨阳 周丽华 韦大公 邹连海 张斌
启迪设计集团机电二院:
陆建清 王海港 张哲 祝合虎 李阳
合作单位:欧安地建筑设计事务所、日清设计、重庆大学建筑规划设计研究总院有限公司
客服
消息
收藏
下载
最近














