查看完整案例


收藏

下载
设计理念
项目以“一馆一园”作为设计脉络,“一馆”为非物质文化遗产博物馆,以博物展览为核心,结合多媒体、室外展场,依照《西藏非物质文化遗产博物馆陈列大纲》,有清晰的动线和展陈组织,着重强化对展品的表现,兼具传达藏式建筑空间特点;“一园”为非物质文化遗产体验园,以节庆活动、表演娱乐、郊游赏景等为主题,通过“转经路”把人群合理引导、步移景异,补充博物馆所难以展示的藏区室外生活画面,也将藏式园林的设计传统融入其中。
△
航拍鸟瞰
总体布局
博物馆分为展馆和室外体验园两部分,展馆位于用地西北侧,体验园位于用地东南侧。
西北侧礼仪性入口通过“Z”字型的景观步道连接主体建筑,设计巧妙的利用地形将建筑与景观相结合,构成了展馆重要的精神场所。主体展馆东北侧为一室外露天剧场,作为节庆活动、表演娱乐的展示空间,同时也作为展馆与体验园的过渡空间。
△ 航拍鸟瞰
△ 总图
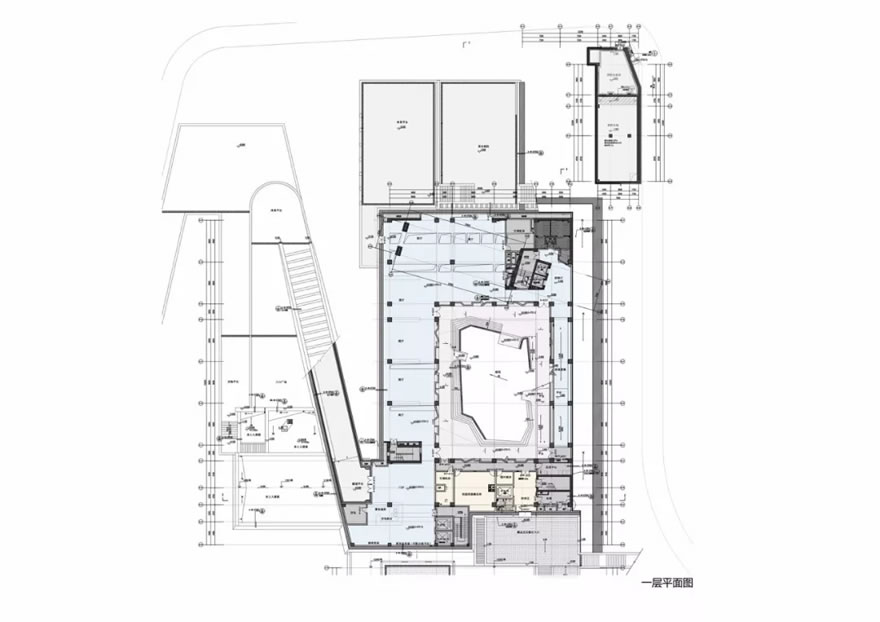
△
1F平面图
建筑造型
以“天路”作为博物馆的精神内核,提取大昭寺主殿的空间逻辑形成博物馆的主体,同时结合地形布置其他功能空间形成高低错落的建筑形态,让“天路”与错落的建筑体量结合形成具有仪式感的博物馆场所。
△ 入口广场
△
西立面
西藏非遗博物馆位于拉萨文化旅游创意园,背靠宝瓶山,位于宝瓶山麓,场地标高在3695至3735段,建筑依山就势,为典型的坡地建筑。
为解决建筑各单体间交通以及尽量减小土体对主体结构的影响,结构结合室外坡道、阶梯和地下、半地下建筑功能的需要,设置了功能各异、标高变化繁杂的挡土墙。
△
外观效果
因建筑功能及场地原因,博物馆主馆标高关系复杂,楼板大量缺失。结构采用了结构屈服与耗能机制优越的框架-剪力墙结构体系,结构变形小、震害轻。同时通过优化结构布置方案,尽量减小结构竖向和平面布置的不规则性,并采用能实际模拟结构受力的计算模型进行计算分析。虽然是多层建筑结构,根据结构设计需要,对结构进行了性能化设计。对建筑最高点的观景平台,采用了前端两个型钢混凝土柱加后端一个混凝土筒支承的悬挑钢桁架方案,完美地实现了观景平台室内无柱通透、外观简洁大方的建筑造型及功能要求。
● 本项目给水充分利用市政水压,生活给水全部采用市政直供,给水管材均采用薄壁不锈钢管,既节能又避免二次污染。
● 本项目热水供应范围仅为各层卫生间洗手盆处,用水点分散,且用水量小,采用可调恒温混合阀单管供水且采用红外感应龙头,既节约成本又安全舒适。
● 场地高差达30余米,总图雨水排放采用逐级跌水,保证管道在冻土线以下敷设同时减少管顶覆土。结合景观要求设置排水沟可减少管道敷设及设置雨水口。屋面雨水系统在管道与雨水斗连接处采用保温处理,并设电伴热做化冰融雪处理,以保证管道不被冻坏。
● 采用雨、污分流及污、废合流的排水体制,对生活污水、废水和雨水分系统进行组织排放。生活污、废水(经化粪池处理后) 排入市政污水管道。生活污水系统均设置伸顶通气管,公共卫生间底层污水单独排放。空调机房废水,给排水设备排水采用间接排水。
● 利用室外舞台下侧无效空间作消防水池,节约其他使用空间。消火栓设置与土建专业及BIM专业密切配合,设置位置既合理又美观。
● 利用地形特点,将消防水箱设置在总图较高位置处,不影响建筑整体美观性,同时降低结构荷载,节约土建造价。
● 展厅、藏品室、配电房、其他区域分别根据要求设置相应灭火系统,既满足规范要求又节约造价。
△ 室内连廊
△
远眺布宫
△
景观经幡
● 结合当地气候特点,非供暖季节,利用自然通风改善室内环境,提高室内舒适度。
● 全空气系统采用变新风比运行,在非供暖季送入室外新风,利用天窗、高侧窗自然排风,以利用室外新风冷源。
● 夏季不设置空调制冷,只考虑冬季供暖。采用模块式超低温型空气源热泵(压缩机为喷气增焓型)作为该建筑冬季供暖热源。
供配电系统节能:
● 选用低能耗配电变压器。
● 采取谐波预防及治理措施,减少配电线路和变配电设备中的电能损耗。
节能控制技术:
● 设置建筑设备监控系统(BAS),通过对给排水系统、热源系统、空调系统、送排风系统、电梯系统等集中监控,实现各种机电设备的节能控制和统一管理。
● 设置变配电智能化系统,对供配电及应急电源系统的电参数进行监视以及对断路器的分合状态、故障信息进行监视、储存,实现用电的节约及统一管理。
● 设置智能灯光控制系统,对展厅、报告厅、公共走道、景观照明等用电实施节能控制。
● 楼梯间照明采用热释红外感应节能延时开关实施节能控制。
△
外观效果
建筑类型:文博建筑建筑面积:7999.3平方米建设地点:西藏拉萨设计起止时间:2016年10月-2017年6月建成使用时间:2018年10月合作单位:深圳华汇设计有限公司所获奖项:中国建筑西南设计研究院有限公司优秀工程设计一等奖设计团队:佘念 | 郑欣 | 廖理安 | 郭礼宝 | 孙林 | 聂琨 | 罗明刚 | 黄睿 | 邱然 | 黄扬 | 赵阳 | 顾燕燕 | 赵广坡 | 罗刚 | 郭平
客服
消息
收藏
下载
最近

















