查看完整案例


收藏

下载
福鼎医院:像一个微型城市,而不是大型建筑
Fuding Hospital: a small city, not a big building
福鼎医院是一家区域性综合性医院,服务于位于福建省北部的中等城市及周边较大区域。设有:急诊科、妇产科、儿科、传染病科、医疗技术科、普外科诊所、行政管理科、2600间病房;以及提供会诊室、手术室、接诊室、B超中心、中药库、护士站、血站、内镜中心等。
Fuding Hospital is a regional general hospital situated in a small city but servicing a large catchment area of northern Fujian province. It includes the departments of: emergency, maternity, gynecology, pediatrics, Infectious Diseases, Medical Technology, General Surgical Clinics, Administration, wards for 2600 patients; as well as providing the outpatient services of Consultation Room, Operation Room, lmaging, B Ultrasound Center, Chinese Medicine Storage, Nurse Station, Blood Station, Endoscope Centre, etc.
挑战
Challenge
医院面临的挑战可以看作是提供硬件(建筑结构)和软件(最新技术)。大多数医院能够,也确实可以应用软件,但硬件往往留下很多缺失。除了应对基本的设计挑战,BAU的设计还挑战了国内的模式化设计方法,大胆且有想象力的空间设计为患者和来访者提供了友好的康复空间。
The challenge for hospitals can be seen as the provision of hardware (the built fabric) and software (latest technology). Most hospitals can, and do accommodate the software, but the hardware often leaves a lot to be desired. Beyond these essential challenges this design challenges the nation’s formulaic healthcare approach and provides bold inspiring, spaces and expression for the healing and welcoming of both patients and visitors.
我们的挑战是:
The challenge for us was to:
1.) 连接内外空间;带阳台的病房、带庭院花园和露台的科室,以及带门廊和大型景观广场的主要流通空间;Connect internal and external spaces; ward rooms with balconies, departments with courtyard gardens and terraces, and primary circulation spaces with porticos and generously landscaped plazas;
2.) 创建具有街道感觉的走道空间,让病人远离病痛感及传统医院的感受;Create street scale circulation gallerias that provide an escape from the focus on illness and sterility;
3.) 将医院内部的主要交通空间与户外景观设计相互渗透;Connect the primary internal circulation with the site’s urban and landscape design framework;
4.)在建筑进深巨大的情况下,确保为患者和工作人员提供充足的照明和通风。Ensure well-lit and ventilated spaces, within the necessarily large footprint, for patients and staff;
5.)让工作人员和患者一天中大部分时间都能看到河流和山景;Capture the river and mountain views from spaces where staff and patients spend most of the day;
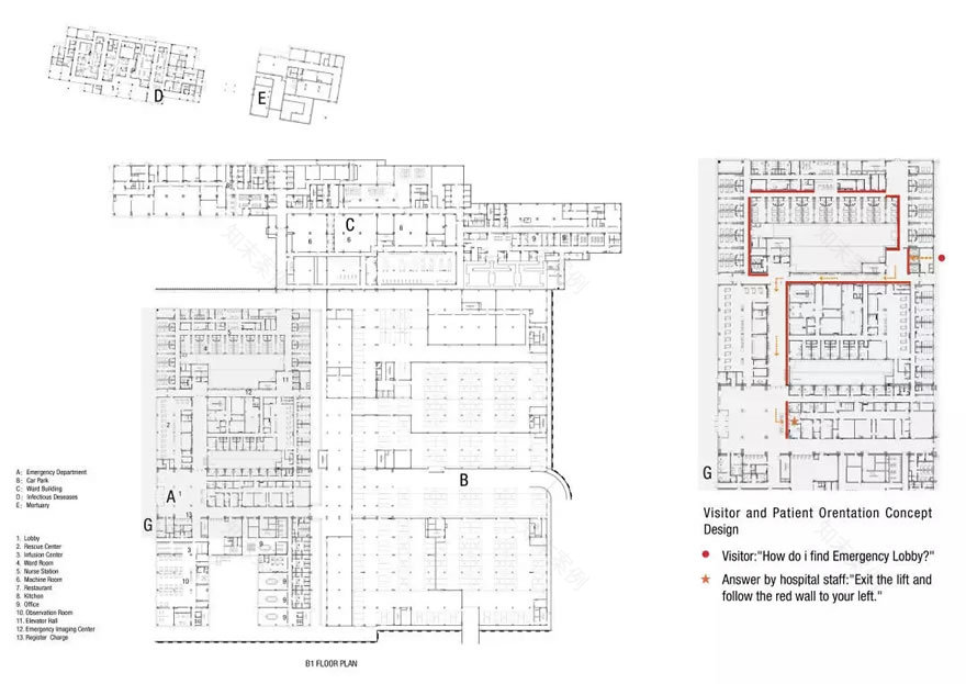
6.) 创造导向清晰易读的交通空间— 空间导向直接体现在建筑空间的设计上,而不仅仅依赖标识标牌;Create clear and legible circulation spaces – way finding built into the architecture, not just the application of signage;
7.)在不影响光线、通风、外观和清晰流通的前提下,为未来的扩建留下余地和选择。Accommodate a number of options for future expansion WITHOUT compromising light, ventilation, outlook, and clear and legible circulation.
大多数建筑师都将医院视为一座大型复杂建筑或一系列建筑,但作为建筑师、城市设计师和景观设计师,我们看到医院设计城市设计之间的相似——空间的渗透性、多样性、可读性、耐久性、视觉适宜性、丰富性和个性化。
While most architects would see a hospital as a big complex building or a collection of buildings, as architects, urban designers and landscape architects, we were struck by the similarities between the design issues of hospitals and those of (small) cities – the need for Permeability, Variety,Legibility, Robustness, Visual Appropriateness, Richness, and Personalization.
渗透可达性
Permeability
借鉴罗马城市的主轴线和次轴线,我们设计了两个大型的、按场地比例排列的街道:主街像一根管道,是一个由四层楼高的空间组成的东西向轴线。它可以看到西端的河流和另一端的山体。另一个方向的柱廊是一个有序和重复设计的空间,南北走向。它也有四层楼高,连接着南面的河流和北面的病房建筑。作为第2阶段的一部分,该轴线目前正在施工中。
Learning from the major and minor axes of Roman cities we made two large, site scaled street-like organizing gestures: the Tube and the Colonnade. The Tube is a relaxed and abstractly composed four-storey high space that runs east-west. It has views to the river at the western end and of a geological excavation at the other. The Colonnade is a more ordered and repetitively designed space that runs north-south. It is also four-storeys high. It has longer distance views of the river to the south and to the ward buildings to the north. The tube is currently under construction as part of stage 2.
多元化
Variety
两条街的设计在材料、颜色和细节上都有明显不同。每个不同的功能的部门用不同的颜色表达,颜色以创新的方式用于建筑的外部和内部。这些设计语汇打碎了建筑的大尺度,表达了一群建筑的集合美,而不是巨大规模的医疗机构。
The design, materials, colour, and detailing of the Tube and the Colonnade are distinctly different from each other. Each of the departments have been allocated a colour and that colour is used in the exterior and interior of the building in innovate ways. These gestures break down the scale of the buildings and provide an aesthetic of a collection of a variety of buildings, not a large scaleless institution.
从建筑内部提供了各种不同的景观场景:远处的河流、福鼎市远眺,到小而私密的景观,再到精心设计的花园院落供病人和工作人员休憩。
Finally a variety of views have been provided: from long distant views of the river and the city of Fuding, to small and intimate views into carefully crafted garden coutyards for patients and staff.
可识别性
Legibility
两条轴线主街不仅提供了空间的渗透可达性,还为这一大型而复杂的项目提供清晰而有力的导向。
The Tube and the Colonnade not only provide permeability through the site, they also provide a clear and strong focus for orientation and way-finding through this large and complex project.
此外,科室和病房建筑中的颜色应用,将电梯大堂、接待区和护士站进行视觉连接,假如迷路了,只需沿着彩色墙走,您将被引导到接待区或护士站或返回电梯大堂。
In addition, colour in the department and ward buildings is used to visually link lift lobbies to reception areas and nurses stations – so, if you do get lost, just follow the coloured wall and you will be led to either a reception area or a nurses station or back to the lift lobby.
耐用性
Robustness
两条主轴为每个部门提供了三个未来扩张的机会,而不会影响可达性或易读性:两个水平方向可以延伸;而垂直方向,可以通过增加楼层。
The Tube and Colonnade provide each department three opportunities for future expansion without compromising permeability or legibility: two horizontally, away from the Tube and Colonnade; and of course vertically, by adding future floors.
视觉适宜性
Visual Appropriateness
这是一个公共项目,外部和内部的建筑语汇仔细地考虑了成本效益、坚固、干净、高效、功能性、现代性和人体尺度,尽管其规模很大,员工、设备、服务和建筑——都是以人为本的技术的一部分,让你变得健康。
This is a public program, and the architectural language of the exterior and interior has been carefully considered to be cost effective, robust, clean, efficient, functional, contemporary, and human scaled, despite it size. The staff, the equipment, the services, and the building – ALL are part of a people oriented technology to make you well.
丰富性
Richness
该项目展示了一系列丰富而复杂的内部和外部空间,这些空间是通过一系列清晰、有力但简单的设计手法共同实现。
The project presents a rich and complex series of internal and external spaces that have been achieved through the co-existence of a series of clear, strong, yet simple design gestures.
个性化
Personalization
两条主轴街道以及各部门和病房内颜色的使用,分解了该项目的规模,并为各部门病房提供了清晰而有力的导向——这是个性化元素的集合,而不是一个无定形的机构。在病房和房间规模上,大量墙面采用的材料为患者和工作人员提供个性化表达的空间。The Tube, the Colonnade, and the use of colour within the departments and wards, breaks down the scale of this project and provides each department wards their own clear and strong identity – this is an assembly of individual elements, not a amorphous institution. At the ward and room scale, the numerous walls of pin-up material will provide the opportunity for the patients and the staff to personalize their own spaces.
地点: 中国,福建省,福鼎
Location: Fuding, Fujian Province, China
年份: 2010-2019
Year: 2010-2019
客户: 福鼎市医院
Client: Fuding Hospital
建设面积: 建筑面积: 309431平方米(一期:120343平方米,二期:100589平方米,远期:88499平方米);基地面积: 176734平方米(一期及二期:133408平方米,远期:43326平方米)
Construction Area: Floor area: 309431m2 (stage one: 120343m2, stage two: 100589m2, future stage: 88499m2). Site area: 176734m2(stage one+ two: 133408m2, future stage: 43326m2)
建筑配合设计院,医院规划及建筑施工图单位: 浙江省现代建筑设计研究院有限公司
Engineering, Hospital Planning & Documentation: Zhejiang Modern Architectural Design & Research Institute Co.,Ltd
景观施工图单位:浙江省现代建筑设计研究院有限公司
Landscape Construction Documentation: Zhejiang Modern Architectural Design &Research Institute Co.,Ltd
客服
消息
收藏
下载
最近

















