查看完整案例


收藏

下载
★★★★★
一所好的教育建筑,会成为一本教科书,让每天学习生活在其中的孩子们,接受美好环境的熏陶,潜移默化,从校园建筑艺术的物化表达中有所思考、有所领悟……
也许改变这个世界面貌的不是我们,而是孩子,他们有着初芽般的、能够穿透石头、穿透钢筋水泥也要破土生长的力量。只有借用他们这股最原初的力量,才能打破快速建造的通属空间带给学生们的过度规训与监护,以空间为媒介,在城市与自然的交汇处建立一个属于他们的田园绿洲。
▼
项目位于济南市历城区唐冶片区,在一个较为紧张的用地上,解决容纳30个班级规模的一所初中。如何在新区大尺度城市肌理的环境下营建一个亲切宜人且充满互动体验的校园,对设计师而言是一个全新的挑战。
北侧鸟瞰图
东南透视图
东向透视图
“三明治”的空间策略多层次的“活力夹芯”
一座富有体验感、场所感的情景式校园,将成为青春美好岁月的载体,其中生动、非常的场所与体验,将伴随学生和老师的一生,在很多时候给他们回忆、勇气和力量。源于此,我们在各个教学、实验、办公等实体使用空间中植入一个“活力夹芯”,一方面解决了各功能间的交通组织,在平面及垂直两个维度上疏散上下学期间的高峰人流;另一方面让建筑尺度通过连廊、庭院、平台等元素的植入得到消解,让学生们更容易自发的代入空间体验,形成交流、活动、讨论等非正式的教学空间。
多层次的“活力夹芯”让扁平化的校园变得垂直立体,促进了各功能属性之间的对话和互动,打破同质化的教学和实验单元带来的呆板乏味的空间感受。
连廊下空间
廊下庭院
入口灰空间
教学组团内庭院
功能复合的校园“微综合体”
校园用地较为紧张,在连廊的收尾处设置了一个功能相对复合化的校园“微综合体”,容纳了食堂、厨房、风雨操场等功能,并且借助平台的垂直高差,在校园中心处设置了一个青春舞台,形成了空间的高度向心性和仪式感,这里将容纳开学仪式、校园演出,毕业照拍摄等重大活动,是承载校园集体记忆的重要场所。
青春舞台
微综合体
学院气质与人文精神的建构表达
校园的外立面采用理性克制的立面表情,试图表达校园浓厚的学院氛围。外部形态采用严谨有序的形体构成手法,通过褐红色面砖、穿孔铝板等材料的建构组合,传达细腻温暖的人文情感。墙面外饰面在建造上尝试了劈离面砖与红砖砌筑相结合的构造方式,探索了材料在建筑立面语言中的真实性表达。
立面细节
立面细节
立面细节
构造研究
构造大样
结 语
我们想做的仅仅是为孩子们争取一份独特的童年经历。当大片的土地被城市化的浪潮所裹挟的时候,我们能在这钢筋混凝土的洪流之中,为孩子们营造出一方伴随他们成长记忆的模范自然的天地。
设计的那份庄重,那份质地的背后,隐藏着最勇敢最明媚的少年初心,善良、单纯、心怀美好、以及一切皆有可能的未来,这里包含了设计师对学校设计的思考,对未来学校蓝图的构想。愿孩子们在这里悄然长大,共同前进,愿象牙塔里的美和精神底蕴永远成为他们生命中的一道明媚阳光。
Drawing
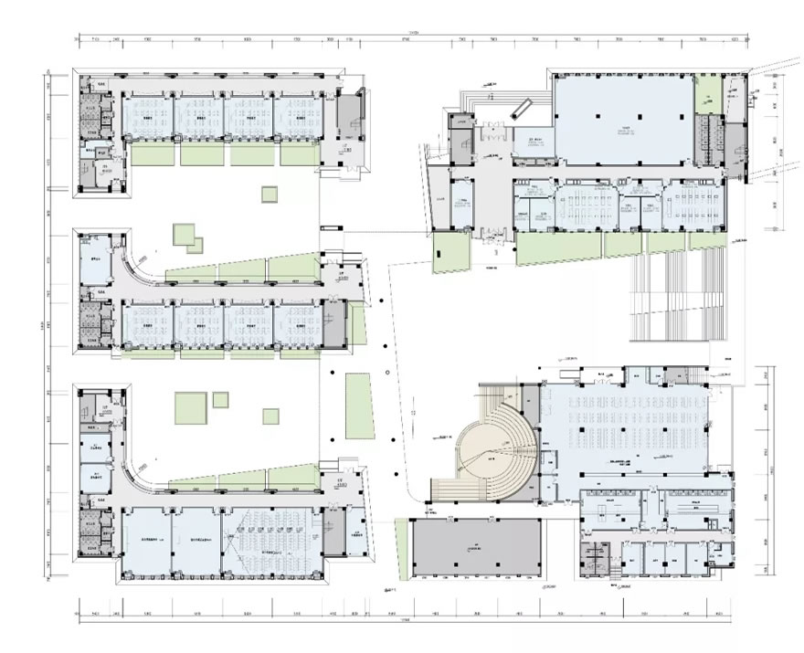
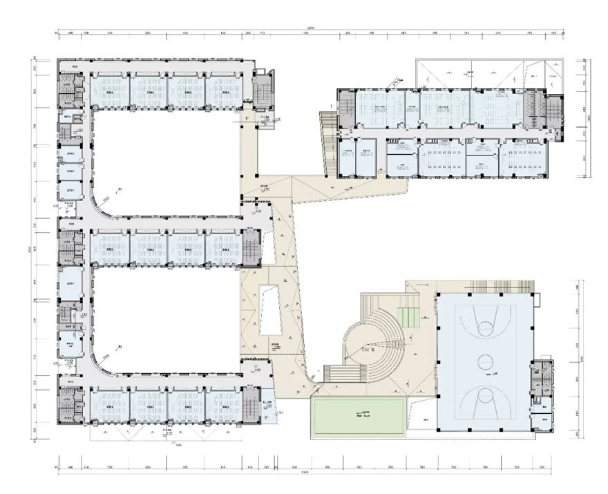
图纸信息
首层平面图
二层平面图
Information
项目信息
项目名称:济南市历城区唐冶中学
项目地点:济南
委托机构:济南市历城区教育局
用地面积:2.5万㎡
建筑面积:1.6万㎡
主持建筑师:郭立强
项目建筑师:李龙、杨韬、赵骏、秦飞、李智、羡巨智、刘志燕、王燕茹、庞博、姜婷婷
客服
消息
收藏
下载
最近




















