查看完整案例


收藏

下载
广州嘉栖长者公寓项目位于广州市越秀区先烈南路31号,是由国投投资建设的中高端养老公寓。项目集施工设计一体化,奥意建筑是设计总包方,运营方为日本MCS集团。目前,项目已投入使用。
项目利用国投下属单位自有物业中成外经大厦进行改建,改建前大厦首层主要为餐饮店铺、便利店,二层为外租办公、棋牌室,三层~五层为旅馆,六层为中成自有办公,七层为外租办公。整栋大厦使用时间已超过30年,经过不同年代的功能改建及加建,各种使用功能混杂,机电管线布置交错,各设施均显老旧。
改建后本项目主要功能为养老院以及服务于老人的医疗救助、多功能活动、洗衣助浴、厨餐等功能。服务人群主要为自理、半自理与及失能老人,同时兼顾了周边健康老人的日间照料功能。
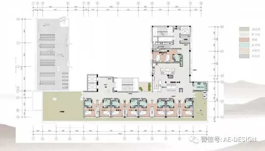
一层功能主要分为接待区、医疗区、护理区及辅助区组成,包括门厅接待、入住办理、养老体验间日间照料、活动室、厨房、餐厅及消防控制室等功能。
【改造后一层平面图】
二层以上均为养护区,其中二至五层主要护理半自理老人,六层主要护理失能老人,七层为VIP区,同时可接待自理老人。各层主要功能为单人间、双人间、地下室及屋顶主要为设备房及设备区域。
【改造后二层平面图】
【改造后三层~六层平面图】
【改造后七层平面图】
【空中花园】
项目难点亮点:
1、原建筑物使用年限较长,当时设计所采用的结构规范早已不再适用,甚至现行抗震规范在当时还未实施。以原建筑的结构布置如何保证安全并符合现行规范?
应对:经过对原建筑的结构检测,整体建筑的主体结构均进行了不同程度的结构加固。而正是由于结构加固处理,导致了主体结构构件截面的增大,减小了建筑的室内空间,对养老单位房间大小、净高均造成了影响,增加了设计难度。例如在进行空调管道安装时,部分房间梁底净高只有2.4米,大多数区域净高在2.5米以内,安装空调冷媒管、水管和新风管的空间非常有限。针对此难题,通过增设竖向管井,减少横向管道,从而减少了空调管道占用空间;另外,卧室的空调室内机均安装于房间入口过道上空,通过局部吊顶,侧送风至卧室走道,保证了卧室房间的净空,同时也避免了空调直接对着床位吹风。
2、消防设计、节能设计等涉及到如何应对规范更迭及符合当时未有规范要求的问题。
应对:原建筑东配楼已有楼梯的宽度及踏步高度既不满足现有消防规范要求,也不适合作为养老设施的楼梯使用。改造时最初方案拟改为室外楼梯,以节约室内空间;但是北侧现有一居民楼,若放在室外,则两栋楼之间的间距无法满足消防要求,所以最终还是将楼梯设置在建筑内,占用了部分室内空间,相应减少了养护单元的数量。
3、功能变更为养老建筑后,如何在现有建筑的框架内如何进行适老化设计
应对:
A.对于老年人来说,起居室、卧室是活动时间最长的地方。根据现有布局,尽量将各个养护单元设置在有充足光照,噪声污染较低的方位。同时,室内为老年人出行工具留有足够的回转空间,满足部分老年人的特殊需求。
b.考虑到南方老人的生活习惯,每户都设置了单独卫生间。卫生间出入口没有高度差,采用推拉门。地面采用防滑材料,并设置地漏以避免积水。采用蹲式便器,洁具上安装扶手。
C.为帮助老人摆脱孤独感,每层设有大面积公共活动空间,为老年人提供各式活动,加强老年人之间的交流互动。
D.通道两侧设置安全扶手、电梯内轿厢内设置监控设施和紧急呼叫按钮,适应老年人的活动特点。
E.空间细节设计上考虑老年人的生理及心理需求,在房门侧边设置有物品放置柜,用来摆放老年人自己的喜爱物品,增加房间的辨识度。建筑空间内的色彩搭配选用暖色调营造温暖感。
F.每层护士站放置对讲及紧急呼救系统楼层分配器,客房内按下紧急呼叫按钮,服务台处会显示呼叫的房间号,并有声光提醒楼层服务人员。客房床头及卫生间设置紧急呼救及对讲按钮与服务台进行连接,遇到特殊情况可得到及时救助。
G.采用变频多联式空调系统,总体噪音较低,噪音较大的主机和组合式新风机组均设置于屋面,避免室内噪音影响老年人休息。屋顶组合式新风机组设计了制冷、制热、加湿、过滤等功能,保证卧室恒温恒湿恒氧环境。
客服
消息
收藏
下载
最近























