查看完整案例


收藏

下载
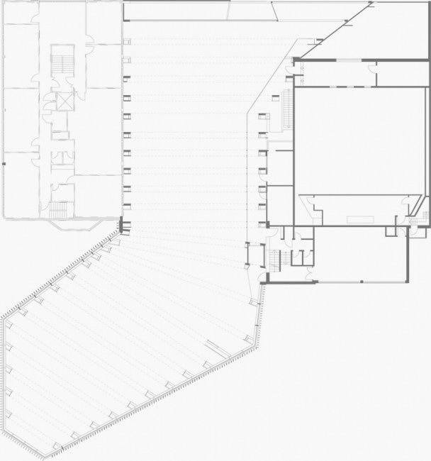
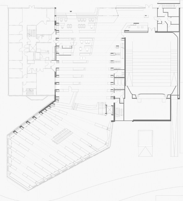
这座建筑综合体位于挪威Vennesla,包含图书馆,咖啡厅,会议及行政功能,建筑同时将一座现有社区建筑和一座学习中心连接在一起。
建筑内部结构与家具被一体化设计,进入大厅后犹如置身在生物体内。充满韵律的27根带型元素从天花板延续到地面,包括了结构,照明,书架等功能。这些带型元素在地面还形成了一些私密的阅读空间供使用者独享,躺在那里阅读真的很惬意。这种类似生物肋骨的结构形式为建筑室内创造了宽敞舒适的大空间。
Vennesla图书馆建筑是开放性的,可以直接由城市街道方便进入。你会发现,这座图书馆在城市中显得格外亲切,进出入的便利以及靠近街道处低矮的建筑高度让人觉得格外舒适。建筑在临街入口处还设置了供人休息的公共座椅,服务于大众的功能与市民的城市生活紧密联系着!
建筑来自挪威斯塔万格的Helen & Hard工作室。
以下图纸点击放大:
客服
消息
收藏
下载
最近


















