查看完整案例

收藏

下载
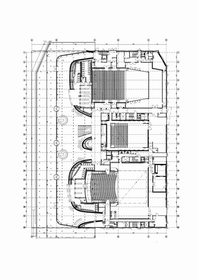
位于挪威克里斯蒂安桑(Kristiansand )的Kilden表演艺术中心,由芬兰ALAArchitects设计,已于今年1月份正式开放。建筑包含1个1200人的音乐厅,700人的剧场以及1个多用途的舞台。建筑师通过竞赛夺得该项目的设计权,建筑总面积26000平方米。设计的核心是保证音乐厅,剧院和多功能厅的无干扰高效服务。
Kilden表演艺术中心观众席被一面波浪形的木墙包围。抽象的纪念碑式墙体由当地的橡树制成,巧妙地将现实与幻想区分开。夜晚来临,当粼粼的波光映射到波浪墙上,仿佛在与里面的表演互动。穿梭其中,会感受到天然景观与表演艺术的交替。呈螺旋形重叠上升的墙板不仅仅起到伪装的戏剧效果还可起到提高真实的听觉效果。剧场内部通过数控切割的木质墙壁具有强烈的视觉冲击力和良好的声学效果。
客服
消息
收藏
下载
最近

























