查看完整案例

收藏

下载
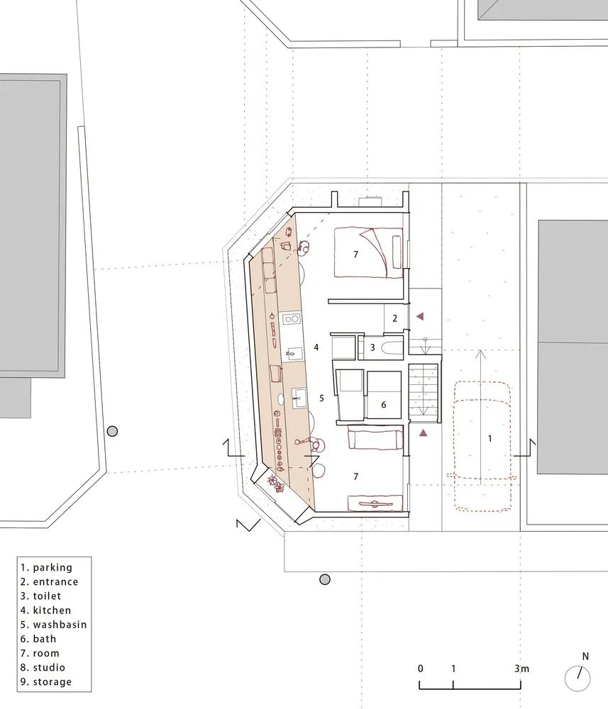
居民通过“倾斜的楼板”进行互动这是一座有 3 间公寓和一个停车场的公寓楼。在后疫情时代,我们在与他人共享空间时会感到焦虑。那么对于互不相识的住户来说,如今住在同一间公寓里又能享受什么好处呢?该结构紧凑的公寓由负 1 层和地上两层组成,可在 84.51 平方米的场地上留出停车空间。地下层单元的光线和通风条件较差。因此,建筑师试图通过将天花板折叠到一定角度并规划一个最适当的高窗来改善现状。
地下层是委托人的工作室。沿着西街设计的高窗营造了内部舒适的工作室,吸收大量来自西向的间接阳光。而东边的天花板也折叠成地下室的入口。一楼和二楼是公寓单元,窗户位置与天花板都根据居民的隐私需求来规划设计。一楼的天花板在西北与西南角呈倾斜状,角落里的高窗面向外面的各个路口。尤其是西南角凸出的飘窗扩大了室内空间。
地上住宅的楼层平面布局是根据倾斜楼板的位置进行设计。这些楼板/天花板在楼上创造了独特的空间。在一楼长斜楼板上,放置了一个成为多用途固定家具的长条台面。它是一排桌子、一个盥洗区、一个厨房、一张书桌,还是一个架子。而在西北角的斜楼板变成了沙发椅的靠背,西南角的则是大窗台。住户的生活多半是围绕着拐角窗。负一层入口处的斜天花板使得外部楼梯的角度存在差异,通往二楼的台阶一边比另一边平缓。
“一物多用”——下层公寓的斜状天花板也是上层的地板,影响了两拨人的居住方式。建筑师相信,即使在疫情过后,住户之间通过斜楼板进行的互动也会让这套公寓内的生活变得丰富多彩。
项目图纸
客服
消息
收藏
下载
最近






















