查看完整案例


收藏

下载
将自然与文化的元素打破,重组,除了爱护自然,纤细优美的感性,还有身处自然之中生动活泼的创造力。新中式和北欧风是时下很受大众欢迎的两种设计风格,我们将东方美学和北欧简约混搭,设计的精彩之处在于空间的中式留白和北欧的自然质朴完美融合。
客厅
客厅局部
餐厅
茶室
孩子房
泡地区
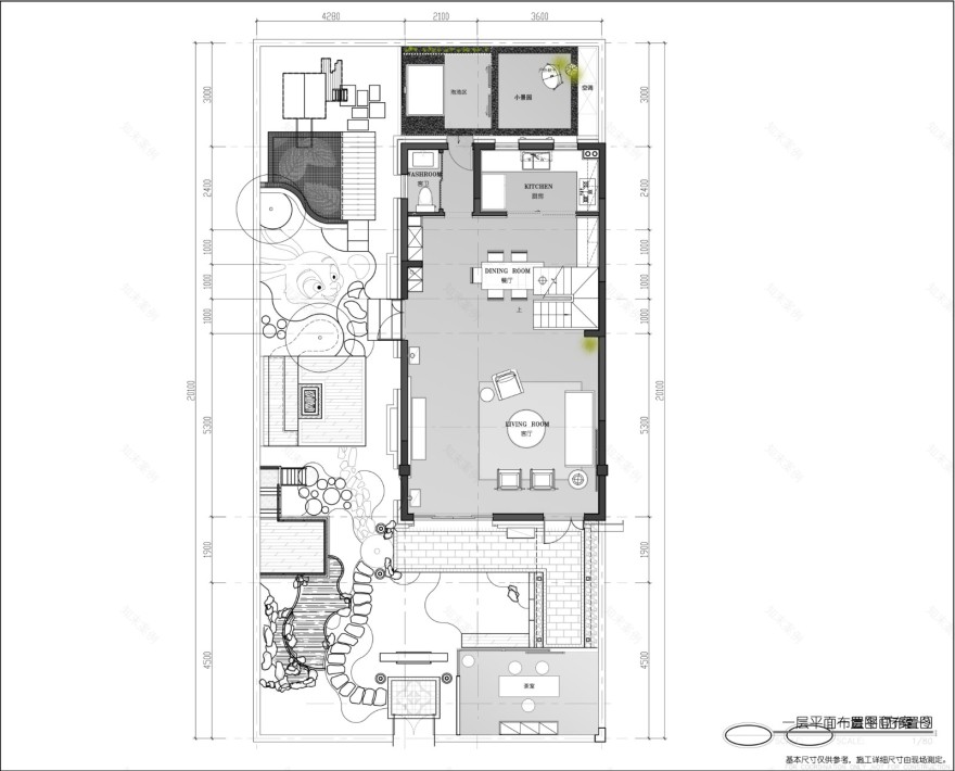
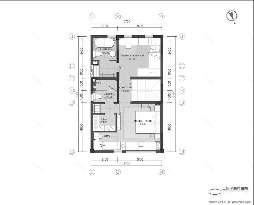
设计师以项目周围环境为灵感源泉,围绕自然为切入点,体现空间度假感、自然感、东方感,在空间的组织、视觉感受、生活方式上契合了客户的需求。一层客厅与餐厅空间完全开敞,中间楼梯栏杆采用水纹夹丝玻璃处理,通透度进一步加强,另外充分利用大落地窗,让室外景色成为室内一幅美画面。餐厅区化散为整,餐桌与西厨岛台融为一体,酒柜与书柜功能融合。在北侧设计了一个泡池区域,让地域性温泉融入到房子里。陈设上采用新与旧混搭,自然的北欧家具、新中式家具与古老的中式屏风、食盒柜形成历史的交融,散发出和谐自然的气息。二层延续一层自然主题,功能上满足主人和孩子居住功能,植入一些休闲度假、自然的功能,主卧室的长榻,独立的浴缸区,森林主题的男孩房,与室外大自然遥相呼应,浑然一体。
平面图:
一层平面布置图
二层平面布置图
项目信息:
设计单位:北京意地筑作装饰设计有限公司
设计师:连志明 、徐辉
建筑面积:130㎡
主要材料:金典蓝爵大理石、不锈钢镀黄铜、素色仿真丝壁纸
坐落地点:天津
完成时间:2017年8月
摄影:高寒
设计师简介:
连志明
北京意地筑作室内建筑设计事务所创始人;大然设计品牌创始人;中央美院家居产品设计系实践课导师。
客服
消息
收藏
下载
最近











