查看完整案例


收藏

下载
ONE·写在前面
- Write in front-
设计来源生活,服务生活,升华生活,用有限的空间化功能使用,在充裕的空间化品质的提升享受,为家居提供完美的适合的解决方案。
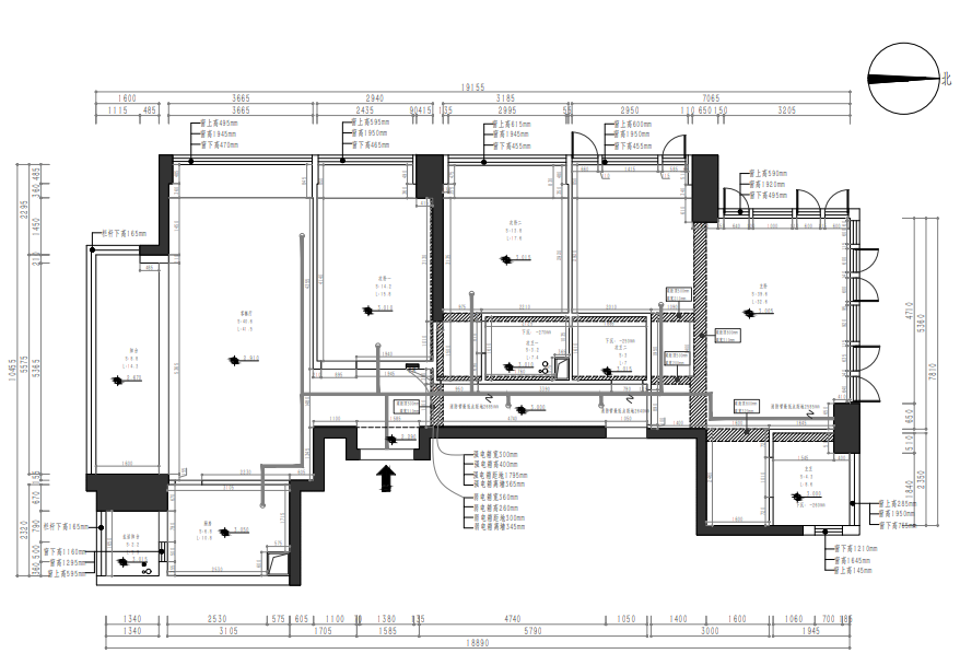
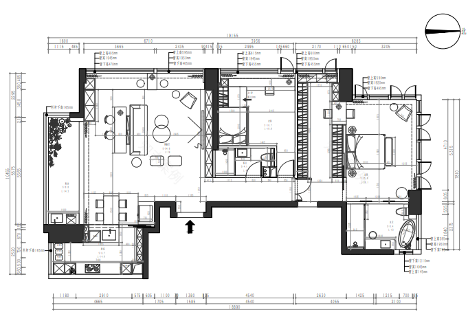
户型分析
-House structure adjustment-
改造前:
1.客厅空间小,视野不够开阔
2.卧室区域过于混乱,格局不太好
3.公卫空间小
4.主卧没有衣帽间
改造后:
1.四房改两房,主卧做衣帽间
2.客厅与相邻的卧室打通,扩大了客厅的空间
3.做开放式的厨房,打通生活阳台。
案例品鉴
- Appreciation of design works-
客厅空间
进门的视觉享受,景观房!两面超大的窗,采光通风无法可说!如果家里人口不多,用不了那么多房间,可以断舍离,不用纠结,因为你会发现有时候待在客厅也能实现那些功能!
定制到顶电视柜,高级黑白灰,满足日常收纳。格子区域加灯带,通过灯光的变化增加空间层次感,底部悬空放置绿植,亦能净化空间。
餐厅
餐厅的家具搭配与整体空间相呼应,餐厅紧靠厨房岛台,上用玻璃隔断,极具现代感的餐桌椅,很有质感,让家人用餐更具情调感。
厨房空间
一字型的厨房设计,更好地满足各种生活需求。趋于简约的室内更加注重流动性,功能区按照切,洗,炒的顺序,让空间充满烟火气。
主卧空间
主卧更是绝绝子!主卧延续了整体空间的色调,L型的落地窗,俯瞰深圳,一览众山小。无主灯设计,让光更加合理照射。配上卫生间和衣帽间,增加了整个空间的功能性,也能提供温馨舒适的休息区。
儿童房空间
儿童房设计的不好,容易不耐看。这个房间有个飘窗,业主想好好设计一下。设计师将飘窗右侧的空间做了一个定制书桌,可满足小孩子的学习及玩具收纳。
卫生间
卫生间也是整个房间的设计亮点,干湿分离!浴缸选择椭圆形,底部原木托底,下嵌灯带,打造出的洗浴体验。相邻的落地窗又可让视野完全打开!
设计机构|Design Agency:深圳东易日盛总部
全案设计师|Designer:王依诺
项目地址|Address:南山·前海颐湾府
项目面积|Project Area: 190㎡
设计风格|Design Style:现代简约
客服
消息
收藏
下载
最近
















