查看完整案例


收藏

下载
Jenn 和 Ryley夫妻是Beach House的屋主,也是它的的设计师。在他们的小家庭中,有两个漂亮的男孩,Noah 和 Archer,还有两个可爱又厚脸皮的边境牧羊犬 Bonnie 和 Clyde。
这栋别墅是一个544㎡的轻松、奢华的空间,设计师将乡村魅力与现代沿海风情相结合。在这里,奢华用一种不流于世俗的方式来诠释。屋主不仅自己住在这里,还将这栋别墅做为民宿对外出租。
这座海滩别墅是一座令人惊喜的双层住宅,设有两个起居区、一个私人庭院、紧邻美丽的海景,这是私人度假、情侣度假或与朋友一起旅行的理想场所。
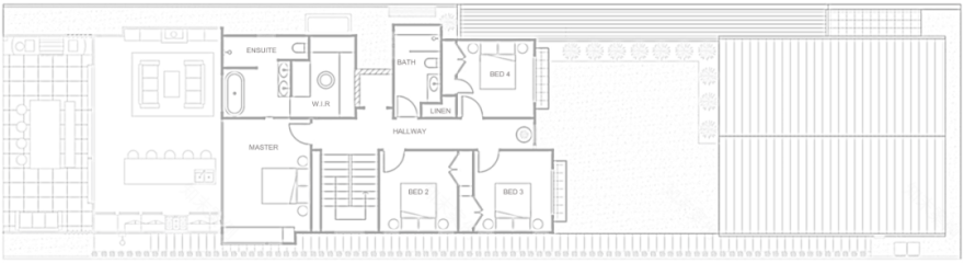
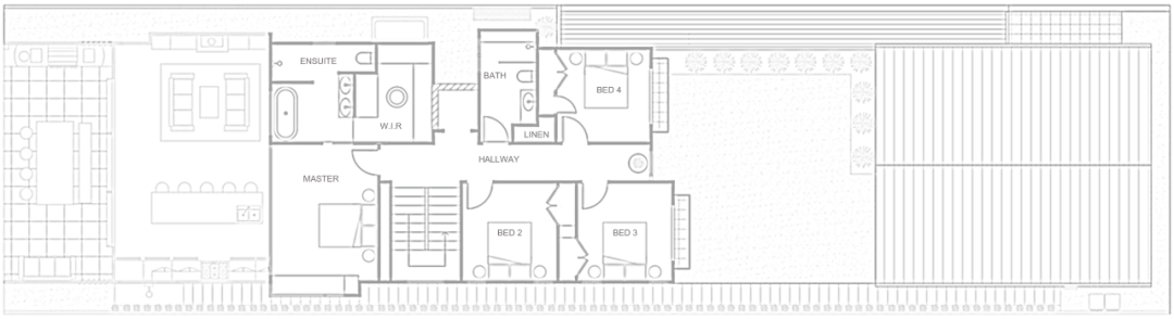
别墅内部设置了一个大床卧室,带步入式衣帽间和带浴缸的套间浴室。在这个卧室中设有落地窗,可以观赏到非常美丽的景色。另外有三间大床卧室、一间起居区和一张沙发床。
惊喜的是,还有一个美丽的酒窖建在楼梯上。用餐区可舒适地容纳多达 10 位客人,设备齐全的洗衣房和私人庭院可以让住在这里的人毫无后顾之忧。
【平面图】
客服
消息
收藏
下载
最近











































