查看完整案例

收藏

下载
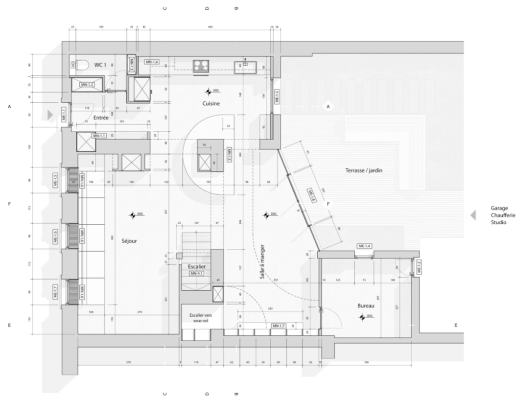
这个名为「The Island House」的项目,由 Clément Lesnoff-Rocard Gil Pescal 设计,面积为 300㎡,位于法国,是一个 19 世纪房子改造的住宅,从设计到完工一共花了 3 年。
设计之前整体空间比较混乱
为了更好的符合屋主生活需求
设计师将起居空间重新做了合理规划
并利用楼梯将整个空间分成
楼梯左侧将书房和餐厅结合
挑空的设计营造出 LOFT 布局
浅绿色通顶的开放式书架
定制的带靠垫的混凝土长凳
旁边多余的台面则作为茶几
扇形的设计也更加迎合了整体空间
过道选用夹层玻璃做护栏
也不会阻挡自然光的进入
运用木板与白色饰面的金属钢架结合
项目名称:The Island House
设计师:Clément Lesnoff-Rocard Gil Pescal
客服
消息
收藏
下载
最近




















