查看完整案例


收藏

下载
溪栖庄园为罕见的纯粹独栋别墅社区。“一湖一岛三溪八景”。一个能传世的家族宅邸,把圈层社交、兴趣收藏、居住度假需求和生活方式融入建筑空间。奢美风格是让居住者找到心灵的栖息地仿佛置于梦幻之城,重塑空间建构美学,设计纵观整体美感。
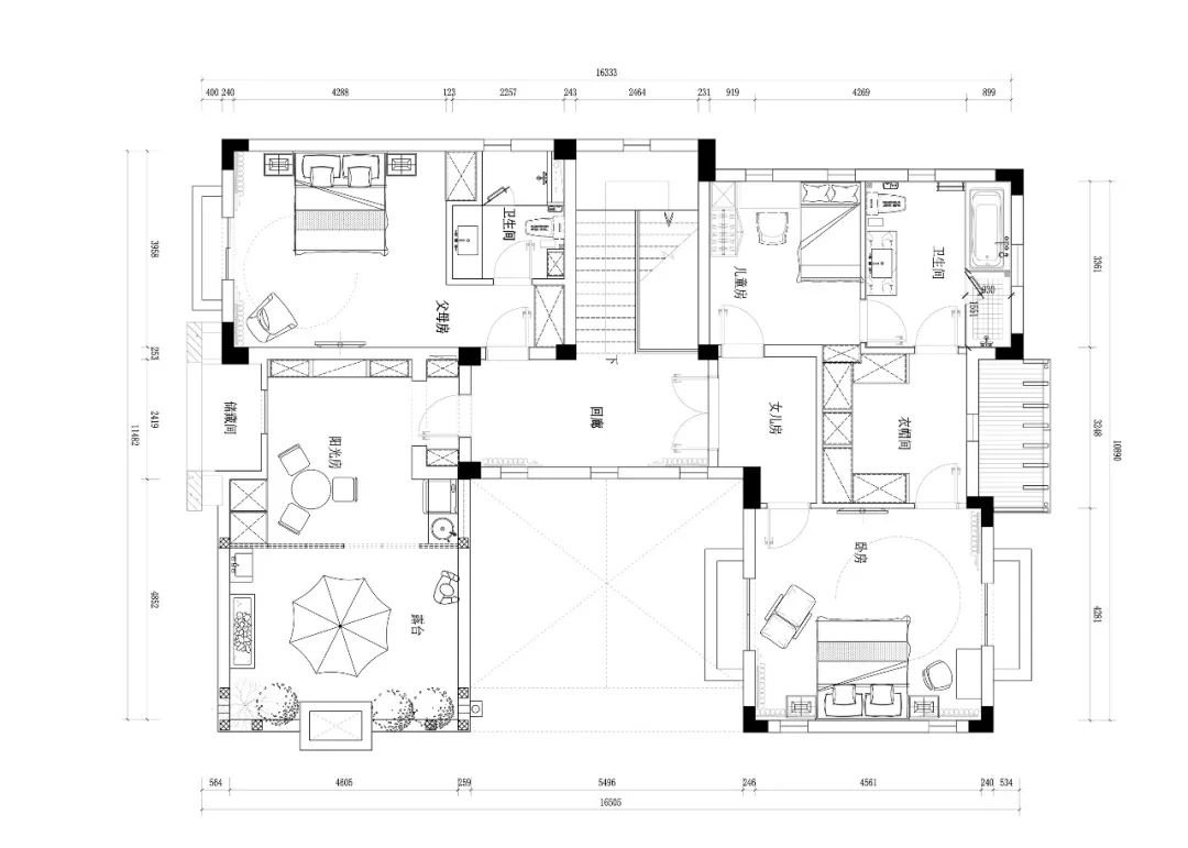
▼平面布置图
▼客厅
设计师将门厅玄关与客厅相融,保持原建构的轮廓。高端定制的木作用材质和质感重塑室内细节功能分区。客厅内壁炉跳跃的火苗,喃喃细语回忆青春。多少人曾爱你青春绮丽欢畅的时辰,只有一个人还爱你虔诚的灵魂。
▼餐厅
厨房与餐厅蕴含了所有的人间烟火。业主夫妇常常行走在世界各地,置物架上每件物品都有它的故事前世今生。一块无比珍贵的戈壁滩风化石,世界各地的咖啡豆、手磨咖啡机、精致咖啡壶、复古款手札。檐下窗棂斜映枝桠,与你对座饮茶,提笔不为风雅。
▼工作室
业主的工作室是建筑后续构建的空间,光线游走在空间的每个角落,或明或暗,摇曳生姿。空间承载着书房、猫猫娱乐区、手工工作室等多重功能。桌上的一本山本耀司的书,是近期正在阅读的内容之一。让生活充满趣味性,才是生活本质的内容。
▼楼梯间
别墅的楼梯至关重要,使每层空间真正沟通、链接。木质踏步给人无与伦比的温暖感觉,楼梯的扶手栏杆上镶嵌的是施华洛世奇的水晶。在某个阳光的午后,水晶的折射使墙面上光影斑驳、光彩炫目。
▼主卧室 空间的设计一开始只为解决具体问题,后续呈现就在于细节的精度。热爱生活的人,每一件物品都细致挑选。
▼主卫
黑白简洁的空间直接指向功能美学,舒适是关注到内心。
▼女儿房
女儿房的空间氛围偏重温馨。套间的精妙设计使空间多了兼具功能的趣味性。根据原始空间的建构造保持原顶的斜屋面,将光化与无形之中。
▼客房
纹样是表现材质的直接方式,空间的每一个饰纹都有不可言语的逻辑关联,气质美学才是经得起时间洗礼的风格。
▼客房 2
家具软装的搭配使空间发挥了独特的韵味,设计的完整性在于每件物品都搭配得刚刚好,让空间增一分太多减一分太少。
▼猫屋
猫猫们早就是家族的成员,每个角落都有它们的身影。时而憨态可掬,时而恬静,时而慵懒,时而傲娇。家里哪里都是它们的乐园,但猫猫家族也有自己的独立的自由空间。
▼建筑外观
设计师尽量保持独栋别墅庄园的外部结构的条件又兼具室内的连贯性。微做调整后的外观更俊美绮丽。暖暖的光星辰大海开始这一晚的序曲......
时间追逐远去的戎马,梦中依念你笑颜如画。此去鲜衣怒马,归来因你温雅。乘风当歌扬起了狂沙,用一生的步伐,等沧海洗尽了铅华,与你花前月下,此生不胜繁华。
项目地址/溪栖庄园
空间性质/独栋别墅
室内面积/320㎡
项目进展/已交付使用
合作模式/纯设计
设计单位/形者美学 SXZ.design
主案设计/邵春丽、邢新
项目施工/西街装饰
项目软装/傅英
设计师
邵春丽、邢新
形者美学 SXZ.design
设计感悟
设计不仅仅是改变居住环境,而是不断的寻找心灵的故乡,让空间有了更多的梦想和能量。
客服
消息
收藏
下载
最近




































































