查看完整案例

收藏

下载
The rhythm of human perception of happiness is hidden in the artistic structure of the building
人感知幸福的节奏,隐藏在建筑的艺术结构中。
NO.01
温感空间 一叶知秋
1F庭院 / Courtyard
我们常常欣羡“青山有思,白鹤忘机”,在高楼林立的城市里找一座安静的院子,一切不曾发生,直至它被描述。这座院中的树木花草,比人更先感知四时节气之变化,在不同气温下,庭院也渐渐变换装束。用植物本身生命力来装点建筑,这是设计师的写意表达。不知不觉,已走进设计师的艺术世界。
NO.02奢感境界 返璞归真
1F玄关 / Porch
1F客厅 / Sitting Room
石质和皮革表面的润泽光亮,赋予了高贵的感官体验。这种脱俗的肌理,在任何光线下都能够熠熠生辉,给生活带来一份岁月静好的期待。书籍与直线的理性在灯光下蔓延,而隐藏更深的,则是绒草与木质组合起来的理性自然。
1F餐厅 / Dining Room
餐厅的氛围是更加温暖的,这不仅来源于暖橙色系的加入,也来源于餐椅圆柔的线条和柔软的触感。令人满足的粗茶淡饭,就是由恰到好处的灯光、舒适自然的桌子和宽敞放松的场合共同构成。家常小菜是主角,“家”却是牵引心和胃的灵魂。
1F厨房/ Kitchen
厨房与餐厅之间仅仅隔着一道玻璃门,这种情感意义上的亲密无间,让烹饪过程中的互动变得温馨活泼。黑白之配色,仅仅是整洁干练的象征;而锅炉间升起的白色水汽,和吧台旁殷切期待的目光,才是“家厨”令人心动之所在。
1F主卧/ Master Bedroom
1F主卫生间 / Master Bathroom
简洁,是人放下束缚、追求自然的一种代表。返璞归真的过程中,快乐与满足往往相伴相随。棉质的温暖与木质的清润,已然让睡眠变得轻盈;而阳光的活泼和水波的温柔,又成为醒来时可以汲取力量的源泉。
1F男孩房 / Boy Room
中性色调的魅力,在于传递的平和感。进入由中性色构成的房间时,你会发现连光影都被简化,线条也会变得平静。然而人总是追梦的,一只鹿为眠者衔灯,构建出一个北欧童话风格的浪漫角落。今夜无风,有鹿衔灯引梦。
NO.03
色感时代 形简意深
-1F休闲空间 / Recreational Space
沿着玻璃围栏的走向而行走,你会发现平行空间里的层次感,在借由色彩而展开。先是浓墨重彩,暖意融融,仿佛桃李春风一杯酒的潇洒恣意;再是水墨画纸,黑白分明,以简单的圆形来演绎复杂的艺术感。你会发现,就着一盏灯捧一本书席地而坐,举杯问月,也能找寻超脱世外的意境。
NO.04
光感世界 博采众长
-2F玄关 / Porch
沿着平缓的台阶向下走,你会发现一个像霍格沃兹一样奇幻的世界。猩猩顶住钢筋水泥,在人类的世界里仔细查勘。从楼梯上走下、再转身顺着猩猩的指引深入这个空间,你会在目光的几个转折处找到渐入佳境的快感。
-2F吧台 / The Bar
-2F藏酒区 / Wine Storage Area
出自大师之手的佳酿,对光线、湿度都很敏感,一个低调的藏酒区,正是它们的安居之所。灯光渐暗,“影”开始顺着建筑铺展,这让品酒的吧台区多了一丝暧昧而惬意的氛围。当人不为外物干扰,让酒液的辛辣与甘甜彻底在舌尖绽放,才能真正品尝一杯酒的韵味。
-2F休闲品茗区 / Leisure Drinking Area
-2F休闲区 / Recreational Space
-2F品茗区 / Tea Area
以茶会友,是找寻知己的方式。借由这一雅趣而衍生出的诸多佳话,让人与空间能够相互成全。一张茶桌,点醒百味茶水,你可以正襟危坐,与茶一同内敛,也可以不修边幅,在沙发上感受无酒而醉的心境。这是豁达中产生的美,无所拘束,更显珍贵。
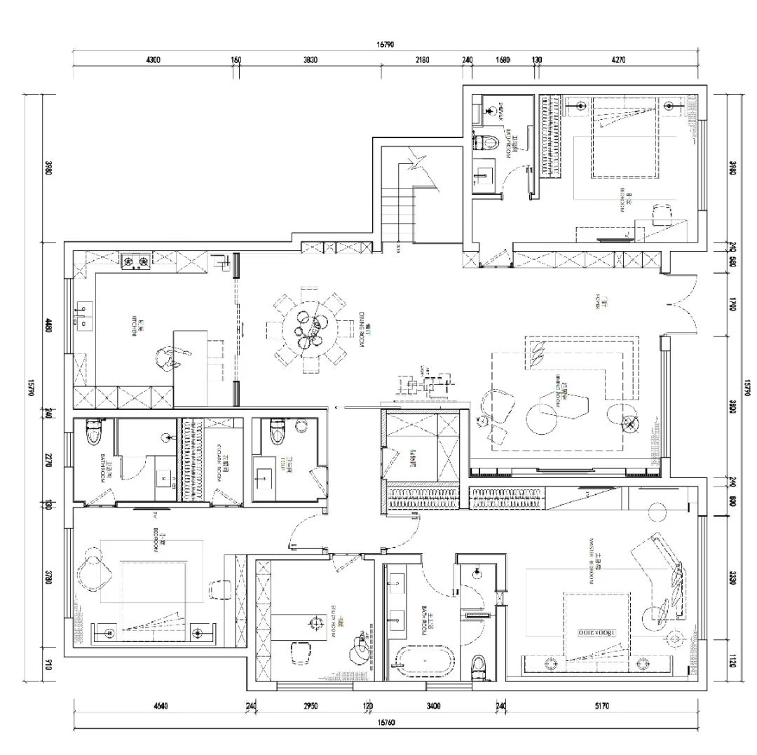
平面布置图
-2F
-1F
1F
项目信息
项目名称 | 国宾壹号
项目地点 | 中国·苏州
项目面积 | 700㎡
设计单位 | 无界设计WJ
设计主创 | 吴燕
软装设计 | 秦璇
完工时间 | 2020.03
文案策划 | 修合文化
项目摄影 | 晟苏建筑
无界设计 创始人/设计总监 吴燕
无界设计,设计项目以私宅、样板间、商业空间为主,致力于创造引领高品质的生活方式,赋予空间更美好的灵魂和内涵。
客服
消息
收藏
下载
最近




































