查看完整案例


收藏

下载
建筑公司85design近在越南岘港建成了一座新的生态友好型住宅,它有一个屋顶草本植物园、木制百叶窗、一个水景、一个开放式室内和一个螺旋楼梯。
这座房子是为一对年轻夫妇和他们的两个孩子而设计的,它有一个木质的外罩,有助于在暴风雨季节保护家。
在屋顶上,有一个小天井和一个草药/蔬菜园,产量足够日常使用。
房子的内部有客厅、餐厅和厨房的连接,创造了一个大而灵活的空间。由于主楼是开放式的,它有助于减少建筑面积,并为花园留有更多空间,可伸缩玻璃墙可进入。
餐厅配有木质桌面餐桌和黑色椅子,用于分隔客厅和厨房。
厨房也有木制的风格,如岛、桌子凳、架子和一些较低的橱柜。
外面有一个小庭院和一个带有雕塑元素的水景。
为了连接到屋顶花园,有外部楼梯沿着种植茂密的斜坡和玻璃栏杆运行。
屋顶上的香草园采用循环浇水系统,自动控制温度和湿度,并保存和重新分配雨水。
回到里面,厨房旁边有黑色的螺旋楼梯。
螺旋楼梯的顶部部分用玻璃围起来,一面由定制设计的带LED照明的架子墙展示了一系列雕像和雕像。
在其中一间卧室里,高高的天花板让人眼前一亮,而木质装饰的墙壁上有从天花板到地板的LED灯条。
主卧室还有一个深色木质步入式衣柜,带有专用的书桌/梳妆台区域。
在浴室里,墙面和地板上覆盖有纹理的瓷砖,而淋浴器位于窗户旁边,可以看到室外的景色。
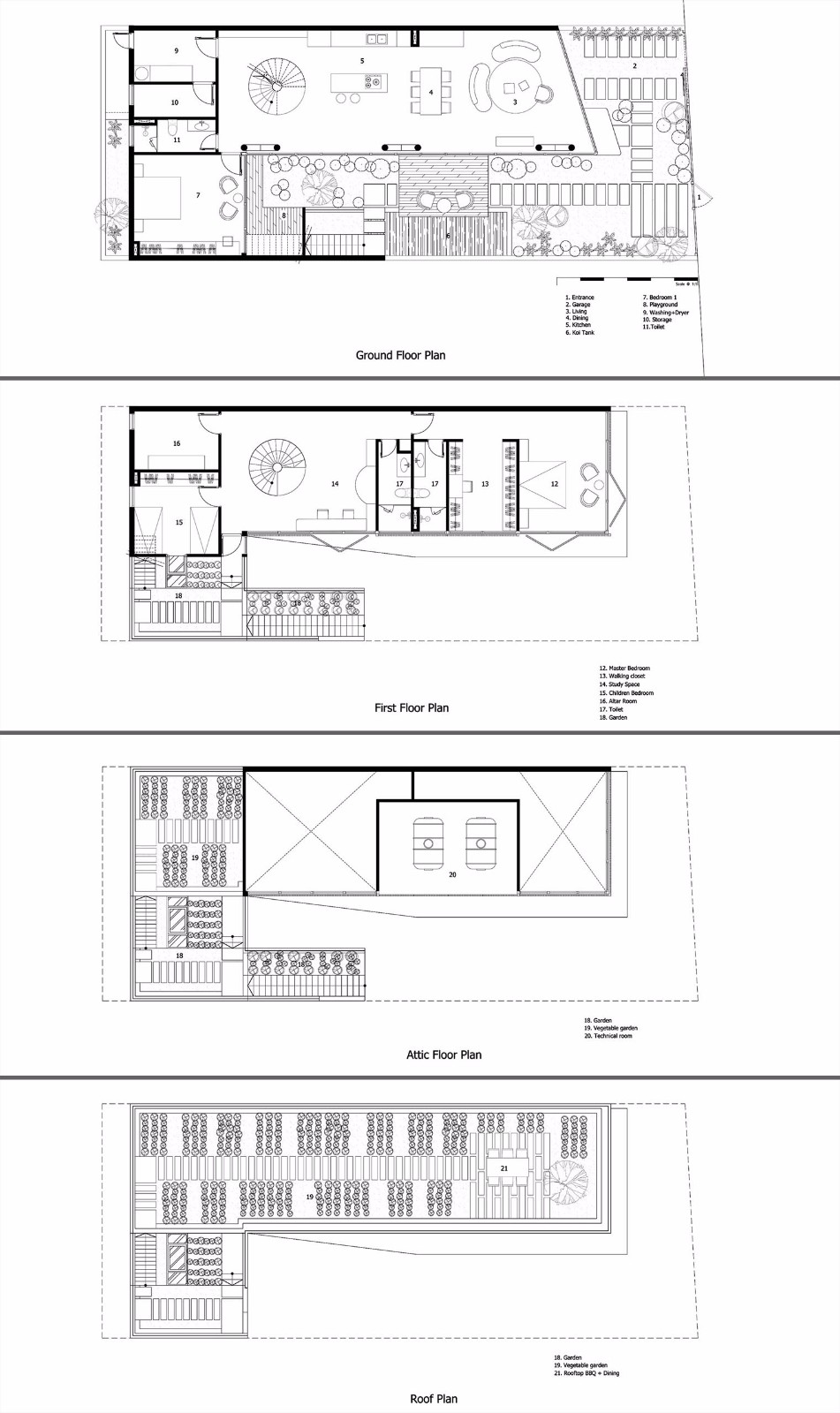
下面我们来看看展示房子布局的平面图和图表,以及房子与风、太阳和雨的相互作用方式。
摄影:To Huu Dung
建筑事务所:85设计
首席建筑师:To Huu Dung
设计团队:To Huu Dung
工程:Dao Ngoc Son
景观:给Huu Dung
合作者:Thai Thanh Luu和Trinh Mai Giang
客服
消息
收藏
下载
最近


























