查看完整案例


收藏

下载
这是一栋六口之家的极简别墅设计,方案成于2016年,由于各种原因直到四年后的今天才真正落地呈现。空间大部分都被设计得敞绰而空旷,没有杂物,没有杂念,没有多余的摆设。设计师希望通过这种削减的方式,让人关注生活本身,知道自己想要的究竟是什么,以及这一生要如何度过。
业主三代同堂,令人羡慕的同时也会有摩擦,比如老人的早起早睡、男主人的深夜伏案、孩子的顽皮喧闹等作息习惯差异都是需要解决的客观问题。为此,设计师重新审视他们的生活方式,终让同一屋檐下的家庭成员都能拥有属于自己的私密空间,并且彼此之间形成独立又联合的关系。
负一楼平面图
负一楼主要作为功能空间使用,从车库入户起依次排布洗衣房、小卫生间、儿童活动区和淋浴房,通过天井增加内部的透光性和通风度。
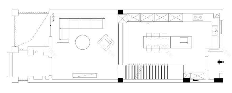
一楼平面图
一楼整体定义了一个连续的空间,由开放式客厅和餐厨组成,中间以两三级台阶的高差做出区分,为了避免大面积白色带来的过度冷感,适当加以木质及局部灰、蓝、橙色点缀,平衡视觉感受。
厨房以超大中岛为核心,大理石台面、水槽龙头、充足的备菜空间等,让烹饪游刃有余;餐桌和岛台贯连,线条感分明强烈,毫无累赘装饰十分简洁。
客厅选择“矮沙发+矮茶几”为组合,物件极少,灰色的铺延层叠营造出宁静氛围,使单个区域脱颖而出,白色纱帘覆盖了大立面的玻璃窗,保证私密性同时不会遮挡自然光线流淌入室。
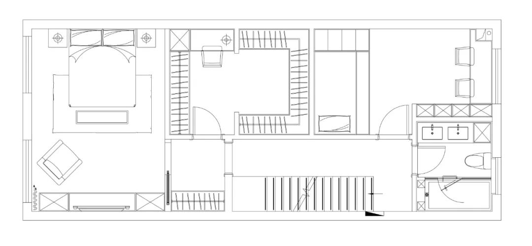
二楼平面图
二楼主要作为父母和孩子的休息空间,利用过厅和衣帽间适当分离,方便老少两代之间看顾互动。
三楼平面图
三楼阁楼图
三楼利用层高优势为业主夫妻打造LOFT居住模式,使用简洁的黑白语汇结合木、石、布等丰富材质,开启平衡而和谐的场域对话。
底下是影音室、酒吧区和卫生间,上面是睡眠空间。卫生间的台盆是根据空间尺寸整体定做的,浴缸则采用艺术漆,在折光效果下视觉感更加简洁立体。
这里仿佛他们平静的小世界,没有琳琅满目的成堆物品,只有温润的色调和氛围包裹,将生活用品精简到少,让生活回归空白,从外物中解放出来。这种环境令心绪更加轻盈,感官则更加敏锐,如此才能遵从自我,随心所欲地生活。
阁楼的天窗可以自由打开,等到月上中天,躺在床上便可以静静欣赏夜幕里的漫天星光,时空仿佛回到无忧无虑的儿时,记忆中有繁星灿烂,有繁花似锦。
项目名称:木及
项目地点:景枫你山
项目类型:别墅
主案设计:窦洪艺
深化设计:张婉玉
摄影:ingallery
关于设计师
窦洪艺 | 窦洪艺设计工作室 / 设计总监
客服
消息
收藏
下载
最近
























