查看完整案例


收藏

下载
一个能够让人静心思考的住宅
氛围私密而宁静
• 01
ROUNDABOUT
婉转曲折
在这个住宅里
既有相聚的场所
又有隐蔽的角落
重新设计的楼梯动线与房间划分
更加的婉转曲折有那么几分的趣味
更多的隔墙将空间变得更加丰富与深邃
身旁的家人一转身便可消失在墙后
• 02
A SETTLEMENT
一个聚落
家中如同一个聚落
各自的房子都有各自的阳台
光线来自同一个天窗
也许只有这样
大家更愿意聚在一起聊聊新鲜事吧
• 03
ANALYSIS DIAGRAM
分析图-
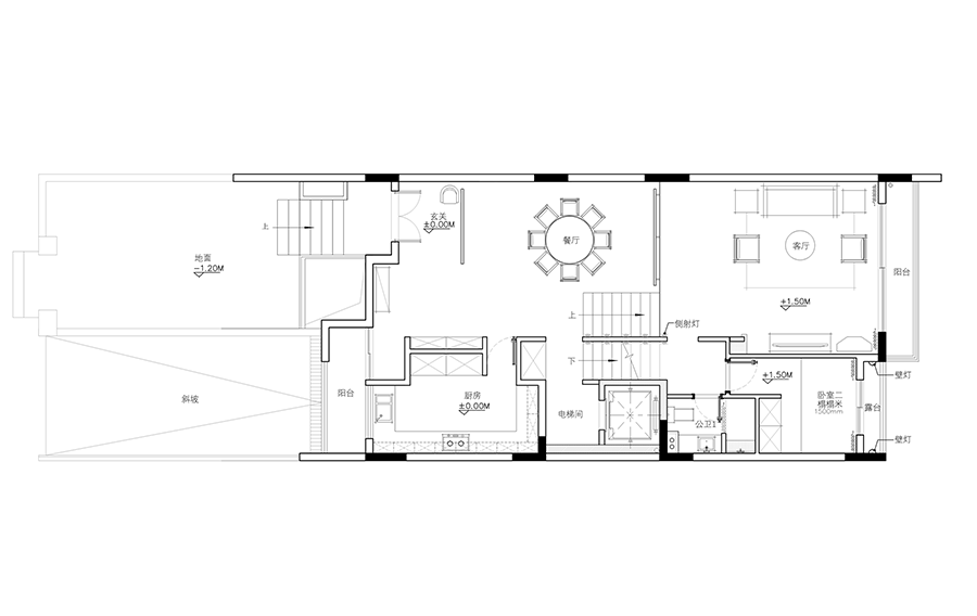
王宅平面图1 P. 29
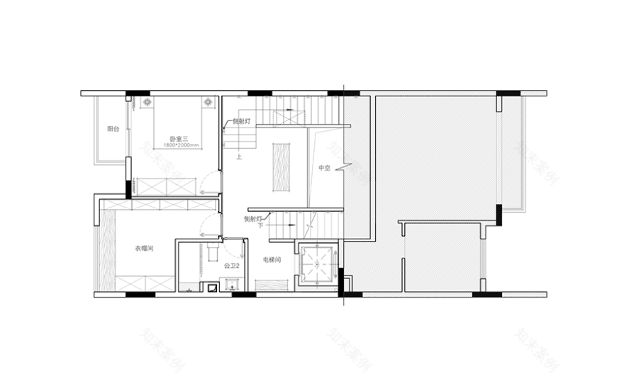
王宅平面图2 P. 30
没有过多繁冗的刻意
更多的在于对自然条件的善用
运用设计的思维构建
还原空间以实在的本质
在此基础之上会有更多地提升
设计师:谭立予
项目名称:王宅
设计机构:星艺-谭立予工作室
项目地点:广州
项目面积:500m²
客服
消息
收藏
下载
最近














