查看完整案例


收藏

下载
这里的风吹起来特別温柔,那是一种很在地的浪漫。项目位于竹北头前溪前,因地势南北低,西北临海峡,形似「喇叭状」,这样的「风口」造成一年四季多风。得天独厚的环境也为生活带来了记忆。让风轻轻的吹拂脸庞,溪水从雪山缓缓而下,滋养著大地,缓缓步行水岸边,感受波光粼粼。近10年来人口快速成长,除了邻近竹科、高铁等地利之便,更吸引人的不仅是工作机会、生活机能和品质,更是这ㄧ片土地的美好。设计师意图通过风与河建立空间与在地文化的特性关联。尝试以作为切入点自然中的「动与静」结合,宛如河道的曲线 似风的云淡轮廓。你我皆不曾 但看木叶舞枝头 便晓风穿过 谁曾见过风?你我皆不曾 但看万木垂梢首 便晓风吹过。——《起风了》
境迹LEE HOUSE位于新竹县竹北市头前溪水岸排,临水而居的姿态坐拥美好的山河,享有城市无法复制的人文气质。远观光景,悠然辉映;近观时光,内敛优雅。设计师王中丞希望延续感知形式,让生活成为向往的轮廓。
LEE HOUSE的概念是创建一个「动与静」流通灵动之宁静与平和。项目中重要的两个意象弧与线,分別用在了天花板和各种家俱陈设上。既保留艺术性,又包含了人文气质,不同轴向的流线梳理出戏剧性的变化。
揉合简约、慢活,把生活过成诗,才是的仪式感。
美好的大理石被赋予了一种摩登精致的面貌,搭配简约低调的金属柜脚,呈现艺术层次的质感。在细节里总会找到一种感动,是我们生活方式的缩影,也是一门美学,更是一种文化。
异材质碰撞出料里的酸甜苦辣,水泥纹透露著朴实气息,如同食物的「原形」,来一场视、听、味、嗅、触的五感体验。不同材料有着对比与碰撞,色彩上通过深浅制造出不同功能的空间范围。
「若从美学的定义来看「感官」就如同视觉、空间的感受、艺术的欣赏等直觉,而情感讲的则是内心层面。」。他说,融入感动的元素这才是‘居’的层要义。
墙面采用了大面积的留白,运用矿物涂料镘刀涂抹,拉出山水般的飘逸轻柔,手作的精细搭配深色木门纹路同时带来更多温润感,材质与材质之间进行美学上的交流,擦出纯净、自然、质朴氛围 。
餐厅保持理性而精简,强调一种简的高级感,不增加多余无用的装置,餐桌与电视墙对话,沉浸在自己的世界里。
「线」,俐落的穿梭著时光中的横与纵,非等距排列或疏密变化,勾勒出可塑性和稳定感。
窗外上演著四季的一片静谧,挹注著漫漫日常。如诗如画的一片景,都收藏在时光的口袋中。人和环境的关系透过光的仪式感,创作适合当下的感官设计。这里是王中丞认为的居的另一层要义,一种回归的原味。
马鞍皮与车缝线演绎著隽永的订制感,平添一种奢华简约,处处显露著材质混搭的精工。每一个缝线和皮料都经过时光的工法有所呈现,有柔有刚的压条与皮革优雅体现在细致的线条与细节上。臥室空间,床头柜墙的另一侧被设计为为书房空间,让其具有足够的开放性,即能满足阅读功能。融合了展示格、书籍收纳层架以及抽屉,并加入亮橘点缀,营造视觉的惊喜和动感。
主卫的设计,整体采用浅色为基调,简约大器之中不乏考究匠心,安放灵魂的所在。大量使用的石材,本质与纹理让生活更加接近一种原的状态。
人字拼接不同颜色的深浅,增加了空间的动感,另外各种家具天花和曲线的结合,也寓有着别样的气质。不规则曲线的半腰床头板墙,将睡眠区与阅读区分隔出来,引窗外天光至此,善利用转角处创造床头光。以圆曲线造型规划出衣柜,曲直互补增加了臥室柔和,空间流动互相呼应。
细节处展现出轴向之间的线条与量体切割呈现丰富的变化,透过比例、排列、交织、延伸,赋予每一条框线可简约,可繁细,也可以温柔。线条与生俱来的强大的视觉,往往能带给人平衡、纵深,置身其中一起探索。
次臥更衣室延续木质温润基调,打造机能十足的空间,区隔卫浴又具有穿透感。借以延伸、穿透、借景和复合。
居住者为一对年轻夫妻及其儿女,屋主热爱大自然及摄影,希望小孩能够住在一间较为接近大自然的房子里,并希望在生活中能培养孩子对美的探索。磅礡的视野、无穷无尽的生命力,居家环境里也能享有休閒氛围。吹著微凉的风,写著生活的盎然惬意,户外始用了菱格纹座椅搭配木制茶几素雅却又不失时尚,喝杯茶、晒晒太阳、点亮蜡烛让每一个角落都充满香气的故事。设计简约俐落,明亮且宽敞的动线切入结合连贯的元素,包括线条、色彩、材质、比例并延揽窗外山河的美景,时不时的眺望,从白昼到黄昏,观察夕阳西下光影的关系。
「弧」,圆润的包覆著空间中的故事,诉说着与众不同的场域,创造出立面视觉的跳跃感。视线一直延伸至天花板,天际线也可以有更多艺术的动态效果。圆弧减去了直角带来的锐利,带来了线条的柔和。空间借由圆弧巧妙的串联,交错、叠合出生活中的另一种层次。「线」,俐落的穿梭著时光中的横与纵,非等距排列或疏密变化,勾勒出可塑性和稳定感。细节处展现出轴向之间的线条与量体切割呈现丰富的变化,透过比例、排列、交织、延伸,赋予每一条框线可简约,可繁细,也可以温柔。线条与生俱来的强大的视觉,往往能带给人平衡、纵深,置身其中一起探索。
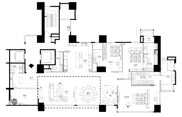
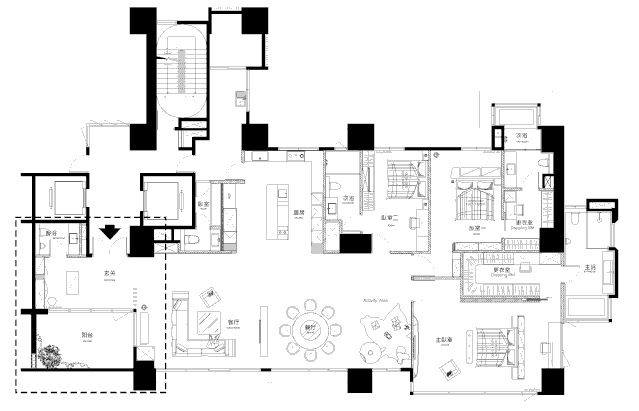
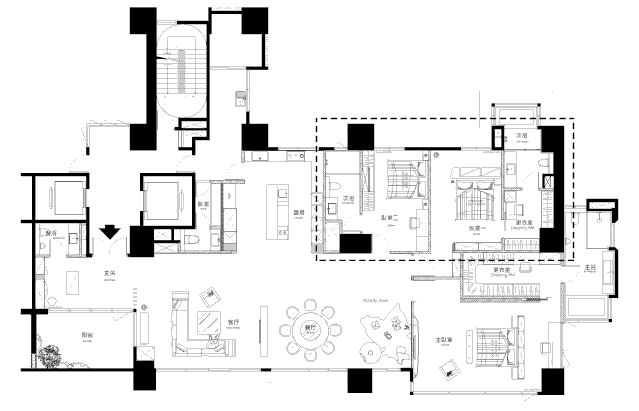
平面图
项目简介
项目名称: 境迹堤岸美学公寓 LEE HOUSE
设计面积:244平方米
完工时间:2020年3月
造价:200萬
主案建材:涂料 马鞍皮 木饰烤漆
摄影: 游宏祥摄影工作室
设计总监:王中丞先生
设计公司:王中丞設計事務所
王中丞 Tommy
关于设计
设计重视人和环境的关系,了解观察外部空间必须充分填入室内,透过光影和风感与空间结合的人文精神,创作适合当下的感官设计,探索设计本质的丰硕成果。多元且国际化的设计创意,敢想、敢做、做到的作风发起全球设计界一个又一个的冲击,2001年创立精品设计事务所
团队由国内外年轻且学经历丰富 建筑及室内设计师组成,有著全面性的设计服务,乐于在每段设计构思时将创意发挥至,每一次的计画都朝着[高级订制]与客户建立联系。
客服
消息
收藏
下载
最近
































