查看完整案例


收藏

下载
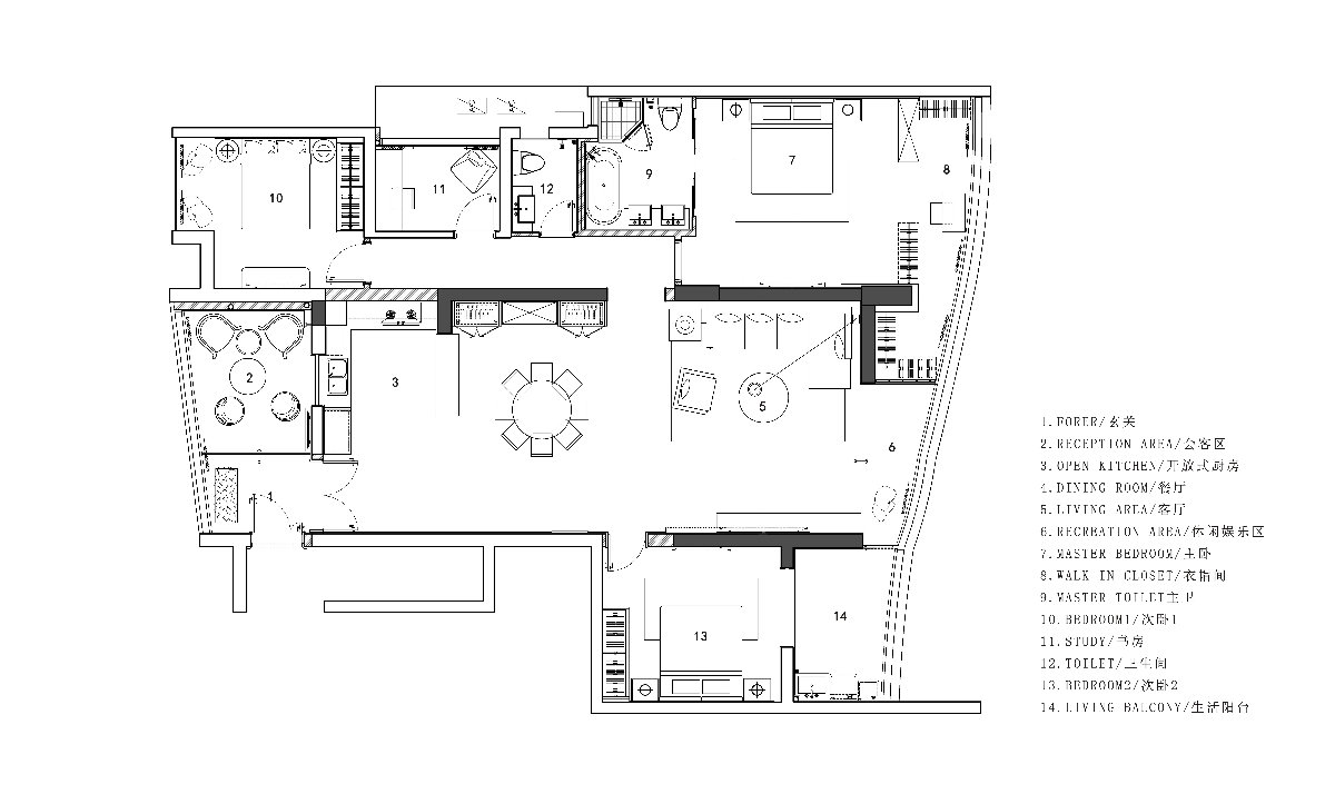
这个项目位于广东揭阳,业主是一对常年定居国外而后由于家庭的牵绊决定回国的年轻夫妻,他们希望在陪伴家人的同时也可以延续他们在国外时那种私密、宁静的生活氛围。
开放式的客厅与餐厅,让家人之间得以拥有更多、更舒适的互动及活动空间。极简的风格,干净利落的空间设计,摒弃了繁冗,留给我们更多思考的空间;低调的灰色系沉稳、大气,在快节奏的喧嚣生活中,让人静下心来,享受家中安静的美、
主客卧空间延续整体的极简风格,纯白的天花吊顶、深灰色的木饰面以及天然木地板,演绎着材质的自然拼接,形成了经典的黑白灰空间。窗外的自然光线透过轻薄的窗纱变得更加柔和,形成了光影交错的感觉,显得整个主卧空间更加通透,也让整个空间更加简洁。
项目名称:归心
设计机构:金舍室内设计(汕头)有限公司
总设计师:谢练平
设计团队:金舍室内设计
完成年份:2019年03月
建筑面积:200㎡
主要材料:科定饰面板、金意陶瓷砖、爱马仕灰大理石、艺术漆、黑钛不锈钢
项目位置:广东揭阳
摄影师:雷达
客服
消息
收藏
下载
最近




























