查看完整案例


收藏

下载
设计需求:
房子的日常居住对象是一对年轻夫妇和一个小公举。经初次沟通,了解到业主对装修风格和色彩的接受度,也使我们在颜色的选择上有了方向,业主希望自己的家个性时尚,但更加注重舒适感,整体空间氛围要干净,大方。
设计说明:
本案一共上下五层空间结构,硬装设计整体以优雅与实用兼容的新风尚为主,创造引领新都市的优质生活空间,彰显优雅生活方式。
在风格上我们运用了现代简约的元素带上轻奢的效果点缀,营造一个带有摩登时尚的空间。
在颜色的选择上考虑到业主对颜色的喜好,选用了颜色比较正的蓝色与米色,没有使用太多的色彩叠加,使整个空间和谐统一,明亮宽敞,利落而干净。
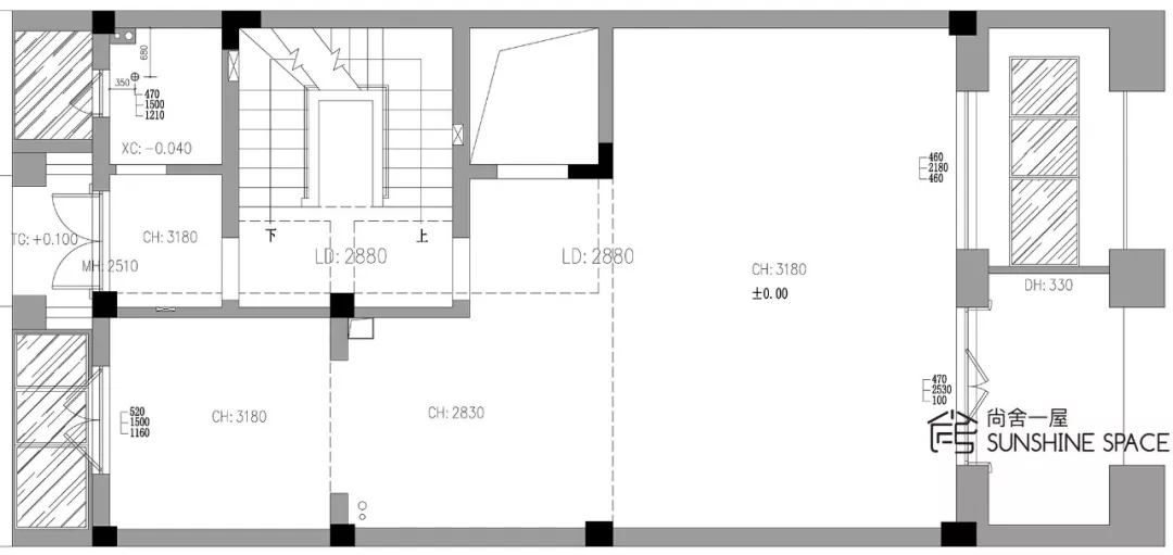
一层
玄关
玄关是由户外入户的过渡专用空间,进出之间的安排自蕴玄机,是风、阳光和温情的通道。
客厅
客厅空间以简约现代的线条勾勒出舒缓的文化氛围,白色作为基础色,配上亮眼的蓝色和局部金属线条的点缀,不沉闷,不浮华,内敛不失优雅。
客厅是会客区,简单大方的米白色皮质沙发与高柜相呼应,抱枕与地毯来点缀电视墙背景,选用多处金属质感作为装饰,蓝色绒布暗花面料休闲椅接应餐厅的空间,整体舒适温馨。
餐厅
餐厅延续了客厅的整体色调,融合了通道空间,大大提升了空间的利用率。
餐厅里每一个角落都是经过精心布置的,精致的灯具,舒适的餐椅,整齐的餐具, 每个角度都折射出如梦似幻斑斓采光。
厨房
厨房选用白色墙地砖,搭配整体白色橱柜,使空间更加简洁明朗。
厨房是一个家的心脏,烹调美味,同时也在品位生活。
卫生间
一楼卫生间我们大胆采用了壁纸上墙的装饰效果,取代了瓷砖沉闷的感觉。
楼梯间
楼梯间也是一个亮点,硬装采光上本身是个硬伤,除了三楼打开了一个透光的落地窗以外,楼梯间的采光还需要室内灯光来增强,所以我们在楼梯的正中间采用了一个从四楼顶上落到地下室的艺术挂灯装置,不仅增强了每一层楼梯的采光,而且在楼梯间造了一个景。
玻璃栏杆搭配金属扶手,增加了楼梯间整体的通透性,让空间看起来更显利落干净,突显出现代风的悠然轻灵。
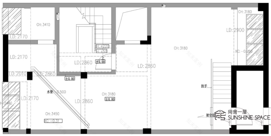
二层
由于地下室的采光只能通过一个采光井来照明,所以整个地下室的采光并不是非常好,我们也希望每一个空间能够有很好的利用。
影音室
业主对影音室有一定的需求,所以在考虑这个空间的利用上,我们将原先采光不是很好的空间,在一面墙上用黑色乳胶漆刷黑,另一面墙是正面黑色酒柜,给业主营造一个专业的,静谧的影视休闲空间。
也可以一家人坐在一起观赏美国大片,享受这一刻的舒适,更加深层次的把空间合理利用起来,的把功能和休闲合理的规划在一起,也显现出了整个空间的质感与自在。
卫生间
卫生间以灰色色调为主,呈现出水泥的质朴特性。
洗衣房
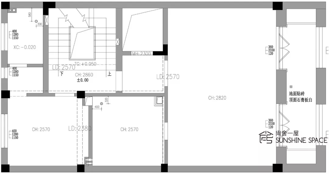
三层
女儿房
女儿房空间比较大,因此我们以一堵矮墙将整体空间合理划分,既能加大空间利用率,也不会阻挡视线,使空间结构更加合理,靠墙的大书柜也完全满足了日常的储物需求。
女儿房作为套房,是小公举休息和学习的空间,在颜色搭配上选用粉色和浅灰色,给人干净清爽的感觉;床背景采用了蝴蝶结墙纸,使空间不失活泼,童趣的特质;窗帘是深于床靠背的粉色,更是增加了整个空间的视觉冲击。
卫生间
次卧
次卧空间较小,我们选用了大面积的灰色,加上米灰色的窗帘,搭配现代风格的床,使得空间干净和谐。
卫生间
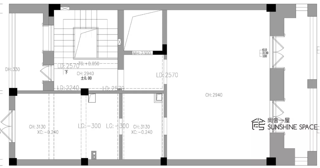
四层
三楼是业主的主要活动空间。
主卧
主卧是简洁明朗的大空间设计,在整体色彩上的搭配稳重而温馨,没有太多色彩的堆叠,只有简单的木灰色和绛紫色的点缀,简约的空间自然流露出舒适柔和的气息。
绛紫色的沙发搭配浅紫色窗帘让空间更显韵气生动,内嵌的电视机让整体电视背景墙更加完整统一,白色柜体搭配金属嵌条,展现了现代轻奢舒适空间。
衣帽间
整体玻璃柜门的设计,增加了空间的延伸感,使空间看起来更显通透。
主卫
五层
书房
书房是男业主独立思考和工作的自我空间。风格上,用了简单的装饰,营造出一个带有中式禅意的空间。
软装上,一面是实木书柜,一面是墙画壁布,纯色的家具配饰与硬装的完美融合,非常干净地处理了空间的层次,营造出大气的质感空间。
健身房
健身房是男主锻炼身体,小公举跳舞的空间,也是男主独自思考后放松大脑的空间,在这里,可以放松心情,缓解压力。
卫生间
项目名称:西溪明珠
项目面积:480㎡
设计风格:现代轻奢
项目性质:全案设计
设计单位:尚舍一屋设计团队
全案设计:廖劭君 孙琦
硬装配合:陈新慧
软装配合:徐琪琪 潘海娅
客服
消息
收藏
下载
最近




















































































