查看完整案例


收藏

下载
的建筑是这样的,我们深处在其中,却不知道自然在哪里终了,艺术在哪里开始。——林语堂
一幢住宅为我们遮蔽风雨,从喧嚣都市划出家的领域,艺术的生活由此展开。入户白墙徐徐展开,如国画立轴的展示区,插花从墙面壁龛蓬勃出来欢迎主人回家。
在上海徐汇区闹中取静的湖南路,周围浓密茂盛的梧桐树围绕着两栋法式后现代建筑,内部是下沉式庭院,一共仅35席住户。业主青睐李玮珉先生设计中一贯的简洁精致,邀请他完成居住梦想。
设计团队大量研习著名住宅的布局:从比利时的GENETS3 HOUSES到 法国的ALON HOUSES,以及西班牙的AZIBI HOUSES,提炼出设计精髓,让空间塑造成灵动的当代经典。
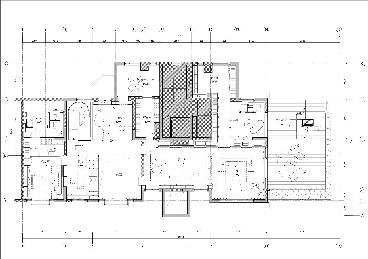
多功能室是善变的,屏风的不同推拉方式,空间随形就势,捭阖有道,视觉上则可隔可透。别具东方意境的拉门设计成隐密的入口,不见其人只闻其声。
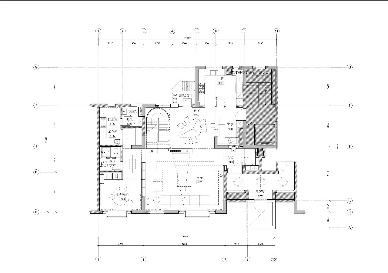
方正的吧台与圆融的餐厅形成对应,一正一圆增加了空间的对比和张力,材质与整个空间的木作一致,保持质感的单纯。
圆形吊顶覆盖金箔,空调出风口嵌入吊顶外圈凹槽,调节温度的同时注重了美观。保尔·汉宁森(Poul Henningsen)PH松果灯,点亮整个空间,微妙的光线,透出对大自然的理解和转化。
精巧的书房一展主人才情,外可眺望院落,对景则遥相呼应主卧室起居室,在白色空间中植入温暖的木作空间,具有极强的包容感和兼容性。
电梯直达二层中心——主卧起居室。超大主卧套房融合起居和睡眠两个功能,以木屏风分开相应成趣。
主浴与主卧间的通透,整面金属玻璃夹纱的柜体与屏风,与主卧起居室间串联起来,形成开敞中有细节的套房。到顶收藏展示架可以容纳满满的鞋子和包,如精品店的display,都展现着主人的优雅品味 。
客服
消息
收藏
下载
最近































