查看完整案例


收藏

下载
项目名称:苏州华润金悦湾别墅 Suzhou CR Land Bund Brilliance Villa
设计公司:李益中空间设计
设计团队:李益中、范宜华、熊灿、潘扬、孙彬、刘卉超、叶增辉、刘波、胡鹏
项目地点:江苏省苏州市
项目面积:230㎡
服务范围:室内设计、陈设设计、软装执行、灯光设计、设计顾问
设计主材:雪花白大理石、白金沙大理石、欧亚木纹大理石、蓝金砂大理石、黑白根大理石、山西黑大理石、银镜、灰镜、钢化玻璃、艺术玻璃、木饰面、木地板、黑色拉丝不锈钢、古铜拉丝不锈钢、墙纸、布艺硬包
苏州华润金悦湾位于独墅湖西畔,是集高端住宅、体验型商业、配套于一体的苏州工业园区湖西综合体项目。
这座三层的叠加别墅旨在表达现代化、注重高品质的生活、国际化、符合现代都市的气质。充分整合楼盘所处位置的独特优势,以空间气质作为设计的切入点。
层设有客厅、餐厅、厨房和休闲阳台。
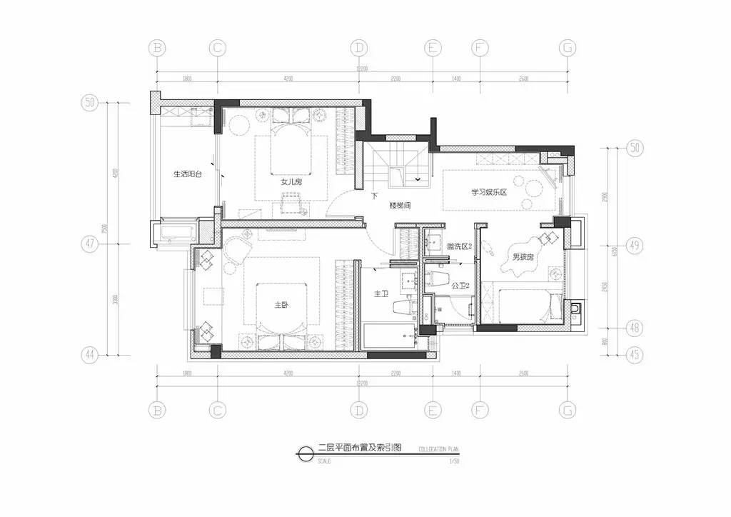
第二层设有主卧、女孩房、男孩房、学习娱乐区和生活阳台。
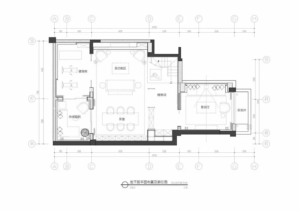
地下室设有多功能区、茶室、家庭影院、健身房和休闲庭院。在色彩方面,以米灰色、木色和深咖色为基调,运用大地色系及翠绿色加以点缀,给人一种低调内敛,干净简洁的视觉感受。在软装的材料上,我们追求现代、质朴的风格。
自然的米灰色棉麻,高端的丝光布,带亮光的真皮皮革,局部运用反光的黄铜材质及带有传统元素文化的配饰,营造闲适且不失品位的居住氛围。
通过简洁干练的界面,不同大块面材质的运用,去丰富空间的层次感,体现整体的艺术氛围。同时,搭配品牌家具,选用高端的物料,在保证舒适度的同时,以不同的形态去提升品质感,再用一定的低饱和度色彩去界定个性,通过精致的艺术品活跃空间精神层面上的表达。
设计图纸
李益中
大连理工大学建筑系学士
意大利米兰理工大学设计管理硕士
深圳大学艺术学院客座教授
中国建筑学会(全国)理事
李益中空间设计(深圳、成都)创始人
都市上逸住宅设计创始人
中国知名室内设计师,空间设计策略专家。李益中善于对场所及空间的综合研判,制定恰当的设计策略,将平凡的空间化腐朽为神奇,并以简炼、艺术的手法创造空间的美感。他曾荣获CIID中国室内设计学会2002年度全国设计师称号,2001年全国室内设计大赛一等奖,2008年APSDA亚太地区设计作品大奖,2013年金堂奖中国十佳酒店设计奖项,2016年美国室内设计中文版封面人物。
李益中空间设计
李益中空间设计是一家有策略思维及追求空间气质的精品型设计公司,作品现代简洁又不失丰富和韵味。公司主张理性科学的设计方法,讲究设计策略,善于解决问题,又注重塑造作品气质。深圳总公司设计人员60余人,在成都设有分公司。旗下设有都市上逸住宅设计,提供高端私宅的定制设计服务。
客服
消息
收藏
下载
最近
































