查看完整案例


收藏

下载
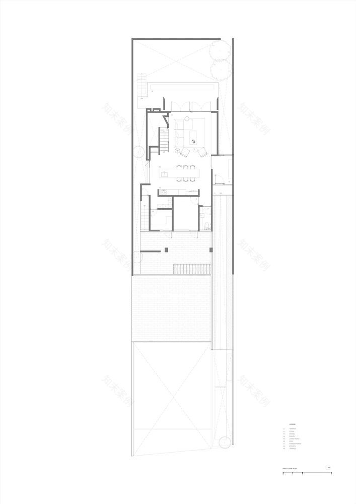
HK Residence 位于雅加达南部一片繁忙地区,坐落在一片狭长的土地上。由一系列内向的盒子组成,它的外部装饰着未完成的纹理石膏。建筑内部覆盖着白色,给房子注入了平静。
该建筑挤在两座更高的建筑物之间,建筑物不仅很长,而且垂直拉伸以与周围环境协调。这种垂直性在内部得到呼应,其双高天花板和高大的开口拥抱着洒在上面的太阳。
它细长的场地让房子有一个相当大的转折。前面的开口有意做得稀疏。窗户大多位于房子的后面,墙壁上长满了郁郁葱葱的植物。
主要区域比街道高出半层。一条长长的坡道连接着两个不同的楼层,这样的顺序让房子有呼吸的空间,确保从前面熙熙攘攘的街道逐渐过渡到安静的内部。起居和用餐区位于一楼家庭活动区和二楼的卧室之间。
后院被指定为主要区域,从主卧室可以看到繁忙的雅加达城市景观。HK 住宅从雅加达的喧嚣中轻轻淡出,以柔和的方式开始新的一天。
项目信息:
房屋•印度尼西亚
建筑师:Dhanie - Sal
区域 :242平方米
年 :2022年
摄影:Ernest Theofilus
制造商 : Dekson , Nero , Toto , Valentino Gress
首席建筑师:Salman Rimaldhi, Dhanie Syawalia, Ferdio Ariatama
施工: Advicon Indonesia
客服
消息
收藏
下载
最近





























