查看完整案例

收藏

下载
说在前面
通过适度的距离,来保持独立和新鲜感是很多人选择的相处模式,有些人在生活中是非常需要独立空间的,夫妻间无时无刻的“亲密无间”太密不透风,反而对感情会起负面作用。每个人都需要有适度的社交距离,夫妻之间,也是如此。
业主夫妇是一对非常恩爱的夫妻,相濡以沫数十年,但因为丈夫时常出差,且一些生活和作息习惯很难单纯依靠妥协去调和,所以决定将休息区分开设置。这个项目从设计到完成设计经历了 3 个月,期间双方提供设计思维和需求,不断的完善改进,形成最终的方案。整个设计中业主不断的说到一件事就是还回去!原来的业主将别墅往外推了很多,例如入户花园,阳台,楼顶花园,能封闭的都是封闭的,导致空间很封闭。而且原格局设计不是很合理让整体空间零碎小空间很多,实用性不强。设计中业主考虑到建筑外观将部分空间还原,室内格局整体调整,保证外观的美观以外室内也更加的实用。
一楼原始户型图
1. 别墅为上叠结构,入户门前是楼梯,原户型楼梯上即是入户门,没有缓步台和入户花园。
2. 楼梯位置在户型中间,且因位置空间较小,楼梯设计非常拥挤,而且楼梯步距较大,使用感不好,安全性不够。
3. 原卫生间位置前业主做成储物间,而在入户花园的位置增加卫生间,因为楼下为下叠邻居家,所以整体抬高处理,导致门口位置动线复杂。
4. 厨房面积太小,而且小空间太多,动线复杂。
一楼平面布置图
1. 将原大门内退,还原入户花园,从入户楼梯上来后经过入户花园再到大门口,有充分的缓冲空间,使入户更加大气。
2. 打掉原楼梯位置,做玄关背景墙,形成整体完整玄关,新楼梯位置靠边,且成 L 型,步距小且平缓,楼梯直达顶楼更加明亮。楼梯下做储物柜,形成封闭的储物间。
3. 将卫生间设计在原位,避免了考虑排污而形成的高低差。
4. 简化动线,改变入户动线后将卫生间和厨房扩大,同时增加西厨功能,西厨与餐厅联通,餐厅和会客厅一体,让活动空间的互动性更强,同时显得空间更大气。
二楼原始户型图
1. 二楼主要是男业主使用,同时需要增加客房功能。原户型空间分布零散,使用率不高。
2. 业主希望卧室能有独立衣帽间和卫生间。
3. 男业主是学者,经常需要写作,所以需要独立的办公,且业主要求办公区最好能有较好的阳光和舒适的感受。
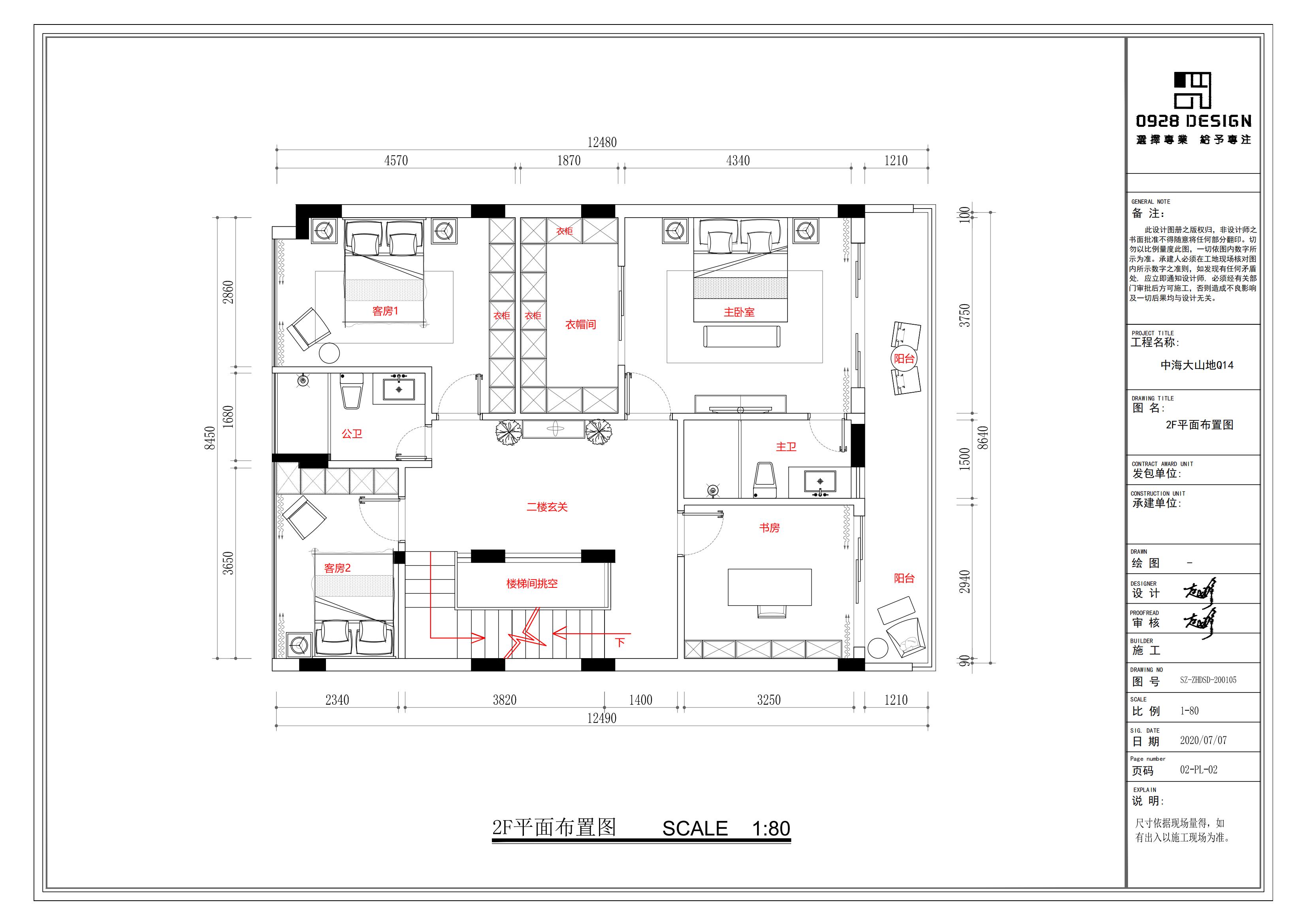
二楼平面布置图
1. 楼梯位置方向改变,将原次卧缩小部分面积,同时将原挑空搭建做成男主人卧室,缩小次卧部分与原走廊面积做成男主人衣帽间。
2. 楼梯设置为回型设计,尽可能的简化动线,取消走廊,形成完整的玄关。利用简洁的动线分区,将朝南的位置设计男主人卫生间以及男主人的书房,并且书房有阳台,可以满足男主人希望冬天的书房也可以晒到太阳的愿望。同时阳台的保留也可以让男主人使用书房时可以感受室外的空间。
3. 朝北的位置,根据尺寸划分为两个客房和一个公卫,满足朋友或过年亲人的留宿。
三楼原始户型图
1. 三楼主要是女主人使用,但原楼梯位置的原因,布局划分动线不明。
2. 女业主需要一个独立而完整的休息空间,卧室增加衣帽间、卫生间和起居室。
3. 因为平时会做瑜伽等运动,需要增加一个瑜伽室。
三楼平面布置图
1. 楼梯位置改变,从二楼上三楼的楼梯根据整体设计,而上四楼的楼梯单独设置,因为考虑到顶楼避免搭建的问题且不想让楼顶太压抑。上四楼楼梯设置在主卫空间内,正好在主卫可以形成一个小小储物间,可以存放女主人的化妆品等生活用品。
2. 因男主人常出门讲座或任教,女主人希望自己一个人在家时可以上来 4 楼就不用下楼的需求,所以将主要的功能区全部放在一个大空间内,一个大门进去后分成起居室、衣帽间、卧房、卫生间。
3. 将原小卧室做成瑜伽室,方便女主人偶尔的运动健身需求。
四楼原始平面图
1. 室内与室外的高度不一致,区域划分受限。
2. 户外旋转式楼梯较局促,上楼顶花园安全性不高。
3. 原平台没有充分利用,儿子房间和保姆房同时还需要增加卫生间。
4. 为了方便衣物的晾晒,需要设计单独的洗衣房和设备区。
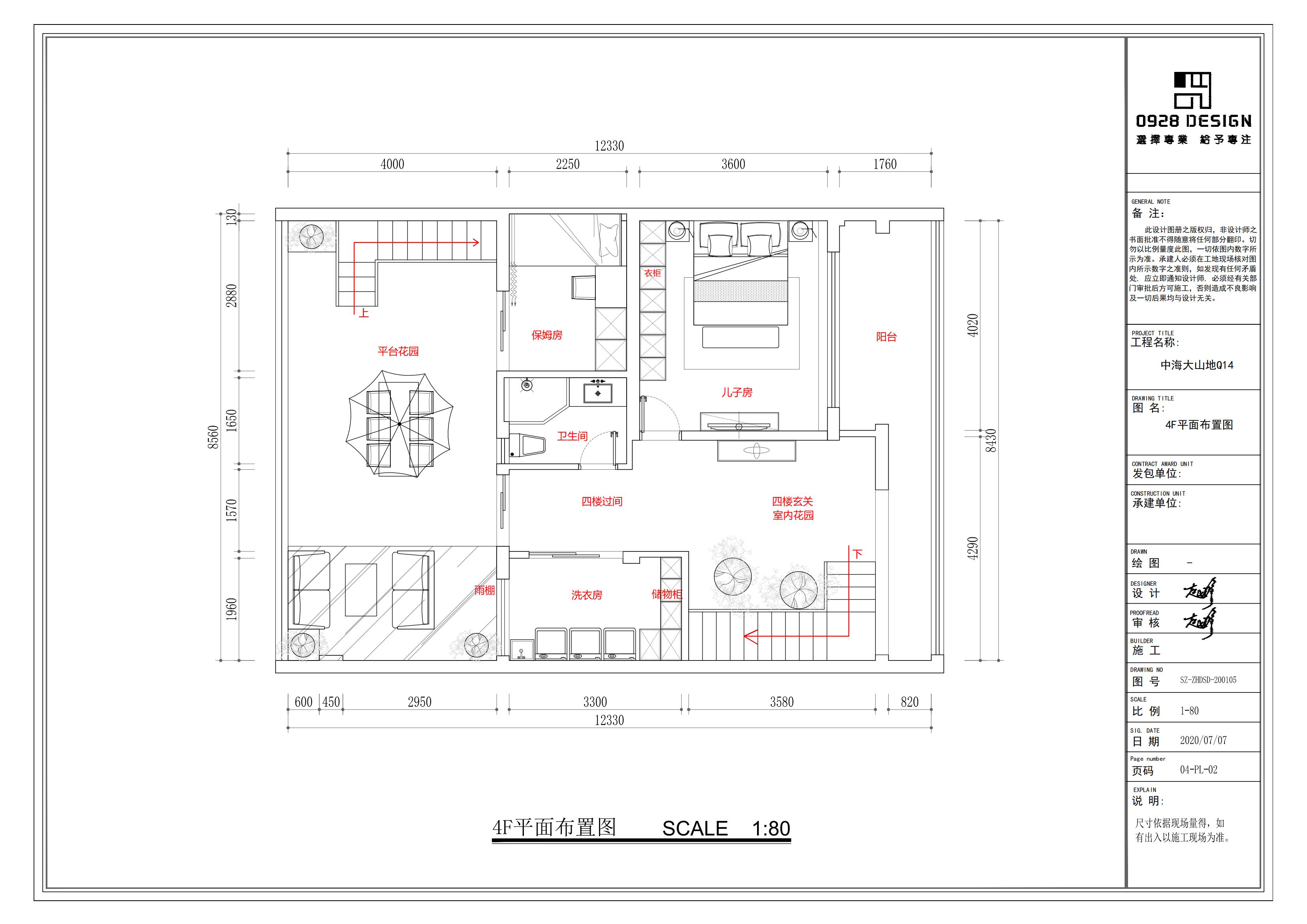
四楼平面布置图
1. 儿子房间将原阳台还原,儿子房间出去是小阳台,增加休闲感。
2. 考虑到儿子偶尔有朋友聚会,将原平台设计成楼顶花园休闲区。可以根据不同主题进行规划,满足年轻的社交需求。
3. 保姆房目前作为杂物间设计,未来保姆可以单独使用。保姆房门设计在花园内,可以更加方便阿姨的工作,以及隐私性。
4. 楼梯间是阳光房,做了隔热处理后摆上绿植作为设计花园。
5. 增加洗衣房功能和设备区,同时洗衣房外开推拉门可以直接通向平台花园,方便使用操作。
玄关
改变楼梯的方位后,入户设计完整玄关,黑色不锈钢门套将空间划分,动线明确简洁。回型吊顶突显层次感,端景台大理石纹路背景墙与格纹地砖形成对比的同时在色调上达到和谐统一。
入户右手边是楼梯的入口,楼梯下利用下方位置镂空做储物柜,方便回家后的储物,同时大件储物也可以存放自然形成储物间。厨房
西橱柜与餐厅酒柜相连,形成整墙储物柜。茶色玻璃储物柜与料理台上方悬挂式玻璃橱柜相呼应,更显格调,壁挂橱柜下方设有灯带,方便料理照明。冰箱放置在西厨,节省中厨空间同时不影响料理动线。
吧台偶尔充当用餐功能,更多时候满足一家人料理互动,皮质高脚凳搭配岩板吧台,让整体区域提升暖意。墙面的挂画用米色驼色黑色蓝色色块拼接,与全屋整体的色调搭配,提升整体的现代摩登感。Ps:挂画是由该项目主笔设计师赵婷设计师手绘赠与业主。
中厨 U 型料理台动线分明,白色橱柜搭配棕色地柜,鱼肚白的背景墙和料理台,减少空间留白,灰色大理石地砖与棕色地柜的过渡让视觉起到下沉的效果。洗菜台面向窗户的同时无柜体遮挡,采光更好且可以很好地眺望远处,让人心旷神怡。
餐厅
餐厅与西厨相连,大理石餐桌搭配蓝灰色绒面餐椅,金属脚的设计让餐桌椅更有质感,而绒面材质则中和了整体清冷的餐厅。
餐厅后面整柜的镂空位置可以用作酒柜,内藏灯带更方便东西的拿取。金属杆玻璃灯罩的暖光吊灯,让料理看上去更具食欲。
客厅
LDK 一体的设计让空间更开阔明亮,跌级吊顶和沙发划分餐客厅空间。
客厅区域吊顶藏有灯带,四周内嵌筒灯组合照明,无主灯的设计让客厅更加简洁大方。深湖绿单人沙发作为客厅暗色调的点缀,更能突显现代摩登的极致格调。
大理石电视背景墙下方镂空预留插座方便设备的使用,背景墙旁边的镂空书柜用于日常物件和常看书籍的摆放。鱼肚白瓷砖上墙,与暗纹地毯柔和了整体空间纯色单品的沉闷。
黑金岩板茶几造型特别,与鱼肚白岩板边几为一组,随意的组合打破了茶几的呆板印象。
楼梯
回型楼梯相对安全,盘旋而上,节奏感十足,写意的绿植与坚硬的大理石质地形成一种视觉的对比,大理石楼梯与水滴状金属吊灯相互辉映,呈现品质和艺术的氛围。
艺术感十足的挂画和时尚的 KWAS 落地摆件让平平无奇的楼梯拐角成为亮点。二楼
别墅玄关更多时候是每个房间的过渡,玄关柜配上装饰画和绿植,壁灯照明,储物的同时起到了观赏的作用。
男主人房整体色调以咖色为主,奶咖色的床头和床头柜搭配护墙板背景墙,配上脚感更好的木地板,让卧室看上去舒适又温馨。造型一致的台灯和落地灯组合,和谐中带着一点不规整,更具格调。
床尾的储物柜方便东西的拿取,休闲阳台让卧室的采光更好,回型吊顶藏有灯带,四周内嵌筒灯,组合照明,满足多种生活模式。
男主人房的衣帽间以茶色玻璃整柜为主,内设有灯带,方便衣物的拿取,搭配木质柜,整体极具质感而有格调。
次卧卫生间的设计同样比较硬朗,橄榄绿的柜体搭配黑金岩板,暗色玻璃隔断淋浴区。
书房黑色柜体暗色玻璃柜门搭配白色烤漆柜门,黑色铁艺办公桌,简约而不简单的书房,让办公的氛围更加舒适。书桌没有选择定制的,而选择用成品的书桌是更加方便男主人根据自己的需要随意摆放。自由式的设计更适合从事文字工作的男主人更需要根据自己的心情去选择书桌的位置。书房外是阳台,阳台的保留也是为了男主人可以随时活动接触到外面的空气,吸收更多的写作灵感。
三楼
女主人房玄关走廊一幅银杏刺绣背景墙,优雅知性,房屋完工时正好遇上秋天,正应了那句“人间满目皆清欢,唯有银杏不负秋”。
卧室以奶茶色为主调,柔和恬静,斜纹绒面床体组合让卧室看上去更适合休息,木地板和地毯让光脚下床的冷感刺激降低。休闲区做落地窗地台设计,地台上,一张矮几一张懒人沙发,借着纱窗透进来的柔和光线,阅读区是如此简单又自然。
卧室同样利用回型吊顶内藏灯带,无主灯的设计躺下不刺眼,更适合休息。
阅读区后是利用墙体做的书柜,搭配斜口落地灯,床尾卧室柜大理石台面磨砂皮的设计,一抹蓝点缀卧室,让人眼前一亮。
女主人房衣帽间透明玻璃柜门让衣物的摆放清晰可见,组合式的储物格局,让衣物的收纳更有条理。
主卧卫生间以孔雀蓝斜纹砖为背景,灰色玻璃隔断区分淋浴区和马桶区,浴缸上安置托盘,一边泡澡一边品茶,一天的疲劳都在此刻消散。
起居室同样以奶茶色为主调,奶白色的皮质沙发搭配异形岩板茶几,白色线条地毯软糯舒适,开放式橱柜方便泡茶洗水果,一个人的独处也可以很惬意。
花园
室内花园多为女主人悉心照料的绿植,壁龛上一排的多肉,可爱又有生机。
平台花园同样摆放了各式各样的绿植,偶尔放下手机感受一下自然,感受一下天空,不用出门也可以实现。地台上放着几张露营椅,户外氛围瞬间拉满。
夜晚亮起的月球灯搭配盆栽花,让花园多了几分情调。
卫生间
公卫以莫兰迪色水磨石地砖铺陈,纯色方砖为主要背景墙,洗手台片区用小颗粒花纹的水磨石上墙,整体和谐统一。
客服
消息
收藏
下载
最近






























































