查看完整案例


收藏

下载
丨全案设计丨软装设计丨施工丨软装采购丨
『DESIGN BACKGROUND』
这是一个三代同堂的六口之家,男女主人是一对 80 后的夫妻,夫妻俩原来确定的是美式风格,施工到一半时,女主人找到我们,希望可以把美式改成现代极简风格,不想要太复杂。经过多次的沟通方案,最终呈现出现在的样子。由于已经施工了一部分,设计师决定在美式的基础上做现代极简,保留原本美式风格的石膏线与踢脚线,简化空间,抛弃了美式里繁琐的设计,融入现代极简的元素,最终呈现出这个简约又典雅的家。
屋主需求:
1. 需要四间卧室,两个小孩房都需要一个书桌。
2. 两个女儿都喜欢粉色,所以小孩房的色彩以粉色为主。
3. 需要一个独立的书房,可以用于平时工作和孩子们学习。
4. 一、二楼都需要一个卫生间,方便平时的使用,主卧不需要单独的卫生间。
5. 家里有两个小孩,物品较多,所以需要足够的储物空间。
项目信息
面积丨Area:170m²
氛围丨Style:简美混搭
户型丨House Type:四室两厅两卫
设计主创丨Chief Designer:观白设计
服务模式丨Service Pattern:全案设计
项目地址丨Project Address:成都市武侯区
施工丨Construction:观白设计施工团队
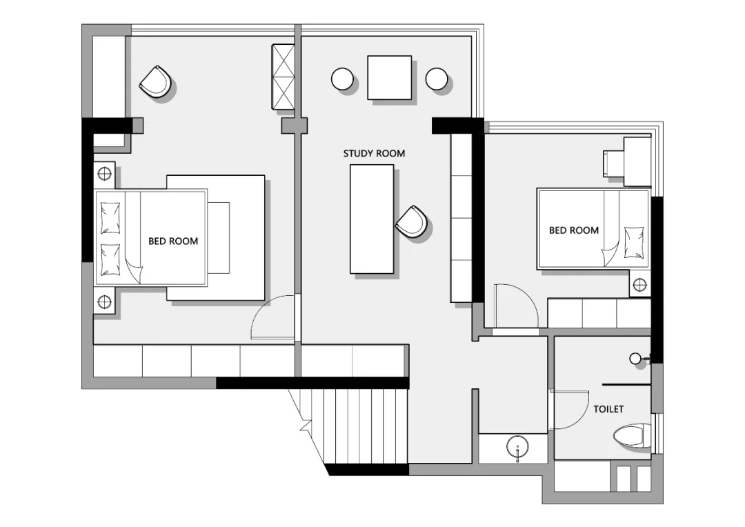
平面规划
■原始结构分析
①入户玄关处没有放置鞋柜的地方;
②厨房门位于玄关处,动线不流畅,每次做完饭还得绕一截路;
③整套户型阳台面积较大,空间浪费较多,卧室空间较狭小;
④二层小孩房门正对着楼梯,存在安全隐患,同时视觉上也不美观;
⑤二层卫生间为为套卫且空间较小。
■改造要点
①将入户左侧厨房的墙体内移,定制了一排内嵌式柜子,方便出入门时一些物品的存放。
②厨房的门改到餐厅处,动线更加流畅。
③将客厅阳台封进室内,增加了客餐厅空间,让空间更开阔。
④一、二层儿童房的阳台封进室内,正好可以放置书桌,满足客户需求。
⑤将二层卫生间作为公用,儿童房空间减少,增加卫生间的空间,将洗手台外置,干湿分区的同时也让卫生间更宽敞。
⑥将盥洗间与楼梯间之间的墙体延长,美观的同时保证安全性。
⑦将二层原始的大空间阳台纳入室内,并分隔开成两个空间,主卧和书房,满足客户需求,书房还可以作为一个亲子活动的空间。
01玄关
HALLWAY
入户左侧墙体内移,做了一个嵌入式的玄关柜,方便出入时一些物品的存放。为了满足客户的储物需求,侧前方也做了一排柜子,增加空间的储物功能。
墨绿色的装饰画富有肌理感,增加了空间的趣味。
02 客厅 A LIVING ROOM
空间色彩以咖色为主,绿色的加入让空间拥有了活力,多了一分优雅。简洁的轮廓线条,搭配淡雅的色系,利用空间的线条、色彩、配饰、光线,营造出富有温馨、舒适的家居生活氛围。
电视墙两侧是中性优雅的原木色,中间采用的大气简洁的石材,原木色与石材的碰撞营造出自然与优雅的空间感,搭配墙面简洁的线条又不失美式的味道。卧室门采用隐形门,保留了电视墙的整体性。
整个空间去繁留简,去掉了繁琐的美式设计,融入一些现代元素,增加空间的现代极简气息。
木饰面装饰墙体,自然细腻的木纹肌理,充分发挥出材质本身温润的质感。
03 餐厅 RESTAURANT
餐厅区域靠墙做了一排储物柜,每个空间设计师都为客户精心规划了储物空间,满足客户日常的储物需求。厨房采用隐形门,关闭时便于柜子融为一体,增加了空间的整体感。
定制的大理石岛台,增设了水槽与升降插座,兼顾西厨吧台休闲的功能。餐桌与岛台相结合,将备餐区延伸至餐厅,释放厨房的操作区域,实现备餐、就餐一体化。
LDK 一体化设计,让客厅、餐厅和西厨共处于一个开放空间内,空间更加通透流畅,墙面简洁流畅的线条与温润的原木色增强了空间氛围感。
墙面线条略加修饰,加上装饰画,让白色的墙面显得不那么呆板,富有活力。
04厨房
KITCHEN
厨房是空间最有烟火的地方,除开颜值更讲究实用性,双一字布局,动线流畅,在空间上增强了视觉延伸感。
书房
STUDY ROOM
书房与主卧之间推拉门采用吊滑,嵌入式轨道视觉上也更漂亮。白色格子的推拉门风格强烈,搭配上实木地板,空间温馨又典雅。
06 主卧 MASTER BEDROOM
墙面的线条是美式的特色,金属的吊灯增强空间的层次感,简约里多了几分优雅与轻奢的质感。深灰色的墙面与咖啡色碰撞出温馨而又气质十足的空间氛围。
床头黑色的简约壁灯,渗透现代的设计理念,营造出强烈的空间感。
老人房
HOUSING FOR THE ELDERLY
灰绿色的墙面、简洁的线条,搭配上云石壁灯与抽象画,让整个卧室显得大气、舒适。深咖色的床头与衣柜色彩相呼应,整体空间散发出稳重、内敛、安静的氛围。
金属吊灯赋予空间优雅与贵气。
08 儿童房
CHILDREN’S ROOM
两个儿童房设计色调上相同,设计上而又不同。空间整体色调采用了粉色,这种粉色像极了柔软的棉花糖,甜而不腻,给人很温暖自然的感觉。
粉色的空间搭配上灰色的床,可爱和幼稚的成分刚好被灰色的内涵和经典所中和掉,优雅的同时又不乏童趣。床头的线条简约,挂画充满童趣,保留一侧的床头柜另一侧放置书桌,方便孩子平时学习所需。
床头背景墙用波浪板拼接乳胶漆,粉色的活泼可爱与波浪板的搭配,打造出温馨与优雅的空间。
粉、白、灰的色彩营造出优雅大方不甜腻的空间。
09 卫生间 TOLIET
卫生间干湿分区,半墙砖+半墙漆的方式让空间的层次感更丰富。
卫生间采用墙地一体砖,增加空间的统一感,视觉上也更加的简洁。
软装陈列
DECORATION LIST
客服
消息
收藏
下载
最近




































