查看完整案例

收藏

下载
理性质感的黑白灰仿佛钢琴的琴键,奏响清雅慢生活。
房屋位置丨深圳·光明星河天地
面积户型丨240㎡(3室)
常住成员丨五口之家
主要材质丨大理石、木饰面、金属
DESIGN SPECIFICATION
设计说明
一层空间将入户区的卧室改为鞋帽间,解放空间的同时,为五口之家带来极大的生活便利;宽敞自由的西厨区域由原本的厨房卫生间合并而来,中厨区挪至生活阳台,同时将楼梯与客厅间的墙体拆除,让楼梯的空间尺度灵动且开放;优化了父母房的动线,改善了日常起居的便利程度。
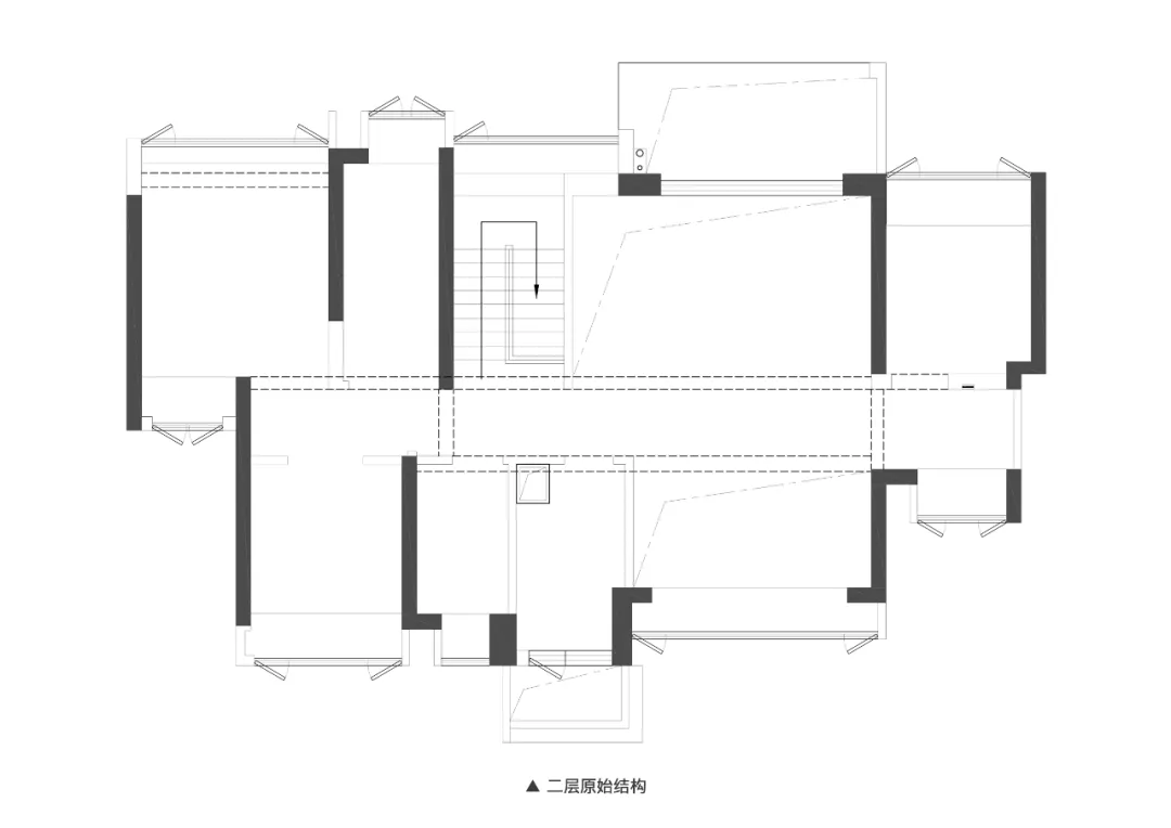
二层通过搭建,打造出一处休闲区,并且做了下沉式设计,两侧分别是主卧与次卧区域,中部的卧室改为了洗衣房并且连接公卫同时兼具储物功能,男孩房格局被打通,为孩子提供宽敞明亮的独立空间。
❐ 客 餐 厅丨Living and Dining Room
进入公区,接近6米挑空的客厅拥有着不凡气度,这里弱化了空间的装饰,使整个空间留白,并交叠金属、石材、皮面……材质刚柔搭配,且随着光影深浅,衍生出细微差别的氛围感。
客厅沙发区与阳台结合,连动整体客厅空间。折叠玻璃门多元开放,让区域之间既有明显的划分界限,又得以相互渗透,在形式上随着生活行为流动转化。
大理石和钢材组合而成的楼梯通往二层。精致的空间结构使空间开放、通风且明亮。阶梯处运用灯光的层次,营造出细微的趣味。
开放式西厨运用墙柱与吧台形成具有围塑性的独立空间,同时保有与大空间的连结。精致的酒柜显露着屋主的热忱好客。
❐ 阳 台丨Balcony
阳台与客厅阶梯处做了巧妙衔接,抬高部分既形成区隔亦有对话,内外之间具有动静皆宜的氛围,可两三围坐,畅谈拾趣;或独处思考,感受山光水色。
❐ 父 母 房丨Parent room
看似平淡素雅的铺叙,设计将思考的切面还原到居住,沉稳高级的色调,柔和的灯光布置,整体空间视觉干净利落……
整面的玻璃大窗,带来和煦温润的自然光,是人情绪感知的最佳抚慰。温润了空间温度,同时提升心灵的舒适感受。
❐ 休 闲 区丨Leisure Area
沿梯到达二楼,这里是属于一家人休闲娱乐的起居空间,下沉围合式卡座区,集合了阅读与视听一体,挑空区域巧妙地将光线贯穿引渡。
细节上亦采用极简的处理手法,两侧的隐形暗门让空间视觉感受趋于完整,轻盈而富有张力。
❐ 主 卧丨Master bedroom
在设计逻辑上通过风格特有的秩序进行表述,回归到卧室的居住本身,以个体生命的呼吸为节奏,放缓空间,体味当下。
淡雅和谐的中性色调营造出高雅素净的气韵。极简主义的克制纯粹,将空间的精神内核传递于人和环境本身。
❐ 衣 帽 间丨Cloakroom
❐ 男 孩 房丨Boys'room
男孩房化繁为简,飘窗延伸打造出一处低调舒适的睡眠空间。不同材质的变换,让空间结构关系明朗。空间品质的提升,让人回归到简单质朴的美好生活中。
❐ 卫 生 间丨Toilet
以大面积白色石材为底,纹理天然。悬挂洗手台,自由随性,将空间形式服务于功能,有机的结合使得整个空间干净简洁。
E N D
客服
消息
收藏
下载
最近



































