查看完整案例


收藏

下载
/ 一半艺术 一半生活 /
家的美好氛围,是美学与生活之间的良好关系所营造的结果。
本案坐落于杭城繁华的中心区域,享受着都市生活带来的便利与格调。
01THE CUSTOMER DEMANDS
业主需求
业主夫妇喜欢带一点轻奢味道的美式,房子主要是四口人居住,两个小公主。平时会偶尔在家喝喝小酒,储物空间稍微充足一些,生活品质为主。
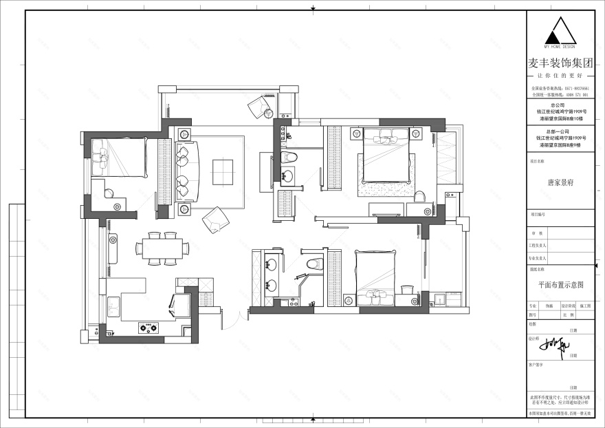
02ANALYSIS DIAGRAM
分析图
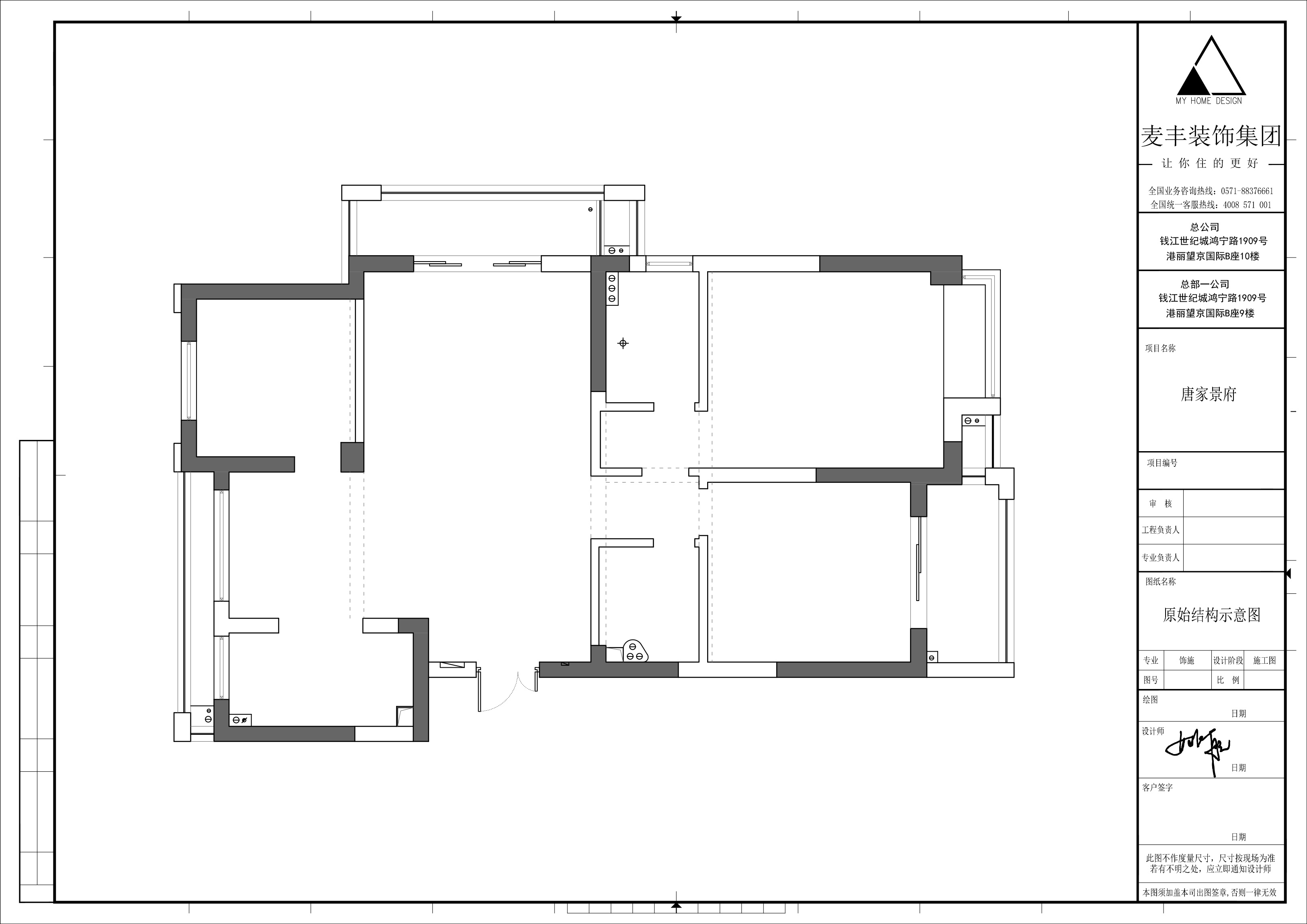
▲原始平面图
//户型优劣势 本案户型本身没有明显的劣势,三房功能齐全,就是北面的小房间稍微小了一些,客厅的纵向尺寸一般,进门区域大块位置略微浪费。
Ø 考虑客厅空间的时候,因为客厅横向尺寸还算不错,因此考虑加宽北面小卧室的横向尺寸,这样可以做一面大衣柜增加房间的储物。
Ø 客厅纵向关系则考虑直接将阳台区域扩进客厅空间,地面做木地板抬高和客厅区域地面地砖空间分区。
Ø 进门区域则做了换鞋凳加鞋柜的一体,左侧区域转角柜,这样进门既可以随手放鞋也有足够尺寸的深度放一些大衣。
03DESIGN INSPIRATION
设计灵感
整体主张的是硬装色调可以相对单一一些,木作整体色调基本就是暖灰色为主,而墙面乳胶漆则选择冷灰色相呼应对比,软装和灯具的选择上去丰富整体空间的色调以及轻奢感。
04 LIVING ROOM 客厅
以亮丽的灰白为主色调,视觉上更开阔、通透,吊顶和墙面石膏线条的运用,令客厅空间更显层次,墙面造型立体美观。
经典美式风格内敛、沉稳,本案在美式风格的基础上加入轻奢风的金属元素,优雅时尚,低调奢华。纹理精致的沙发背景墙加上装饰画,在精确的尺度把控中,展现美式风格中的对称美,既有典雅的秩序美感又自然流露业主不俗审美。暖灰色皮沙发与同色系格纹地毯完美衔接,整个空间格外和谐。
以高品质、简洁、设计感、舒适为特点,呈现空间低调内敛的气质和朦胧的氛围感。让设计赋予其高贵的气质,让光彩夺目的饰品在秩序空间中散发别样的魅力!05 DINING HALL 餐厅
餐厅同样以浅色为主,深色作为点缀,金属元素、具光泽感的石材在空间里绽放,温馨中展现对享受生活的新主张。
开放式的格局巧妙将空间划分为料理、休闲吧台、用餐三个功能区。轻奢的红棕色餐桌成为焦点,在简洁时尚的外观下不乏高级质感,通透亮泽的台面更加衬托出餐具器皿的精致,营造出雅致、低奢的用餐氛围。
06KITCHEN
厨房
厨房看似简约却不简单。立体的吊顶造型搭配一整排吊柜设计,橱柜统一搭配了金属拉手,大理石砖不规则的纹理中和了厨房规整硬朗的线条感,打造清爽且富有美感的料理空间。
07MASTER BEDROOM
主卧
主卧强调温馨稳重的氛围感,米灰色背景墙和时尚造型衬托出空间的成熟和优雅气质,木质家具融入了美式线条的典雅端庄,让空间又增添了几分韵味!
08 SECONDARY BEDROOM 次卧
大女儿房以灰粉色调为主,打造轻熟少女的起居室。浅灰色绒布质感的软包靠背,抱枕、窗帘相互呼应,整体感非常强。
四月的晚风
温馨的晚风
扯夕阳流金而来
打一个漂亮的蝴蝶结...
将洗衣房设置在次卧的阳台,用尽不到 2㎡的空间。收纳柜封顶,隔板从中间区分洗衣机和盥洗台面,洗晾一体的阳台布局合理,颜值也在线。
09BATHROOM
卫生间
外卫是米白色双台盆卫生间搭配与之同宽的发光镜,让两个孩子的晨间洗漱时光也变得更加从容,同时我们也合理运用了马桶的上方空间设置了内衣洗衣机,生活品质在此处得以展现。浅灰色大理石砖,增加视觉面积,银质五金配件让卫浴空间尽显清新之感。
高级灰+雾霾蓝,打造时尚优雅的主卫空间。
案例信息丨Case Information
项目地点:唐家景府
项目类型:住宅
项目性质:全包
项目面积:130㎡
项目风格:美式轻奢
设计师:麦丰国际设计
施工:浙江麦丰装饰设计工程有限公司
软装:东麦家居
主要用材:成品护墙,人字拼木地板等
装修总投入:硬装 30 万、软装 9 万、设备 5 万
客服
消息
收藏
下载
最近

























