查看完整案例

收藏

下载

翻译
Architects:Grimaldi - Nacht arquitectos
Area :2021 m²
Manufacturers : Focus, Hansgrohe, Lutron, Schüco, iGuzzini, Gradhermetic, Wolf/Subzero, ferrumFocus
Construction Manager : Estudio Pedroni + Miguel Rossi
Project Team : Clara De Stefano, Isabel Roca, Mariano Menucci
Construction Company : Clevelit S.A
Interior Design : Martin Zanotti
Landscaping : Amalia Robredo
Structure : Armando Stescovich
Lighting Consutlant : Arturo Peruzotti
Thermomechanical Consultant : MED
Electrical Consultant : Barbot
Sanitary Consultant : Brenes
Home Automation : Ikatu
City : José Ignacio
Country : Uruguay
The house is located in José Ignacio, Uruguay. It was designed as a summer home for a family of four, but the pandemic made them decide to move there permanently.
The lot is framed within a view easement agreement. This feature allowed us to think of a house with a visual range of 180 degrees above its neighbors and its corner condition.
A curved line of more than 50 meters of development emphasizes the panoramic beauty of the lot and gives the house a limit built by shutters made of lapacho, giving it protection from the western sun and interior privacy due to being on a public street.
The intermediate space, between the curved line of shutters and the carpentry, is constituted as the public and recreational place of the house: a barbeque, a courtyard, an outdoor living room, and a fireplace.
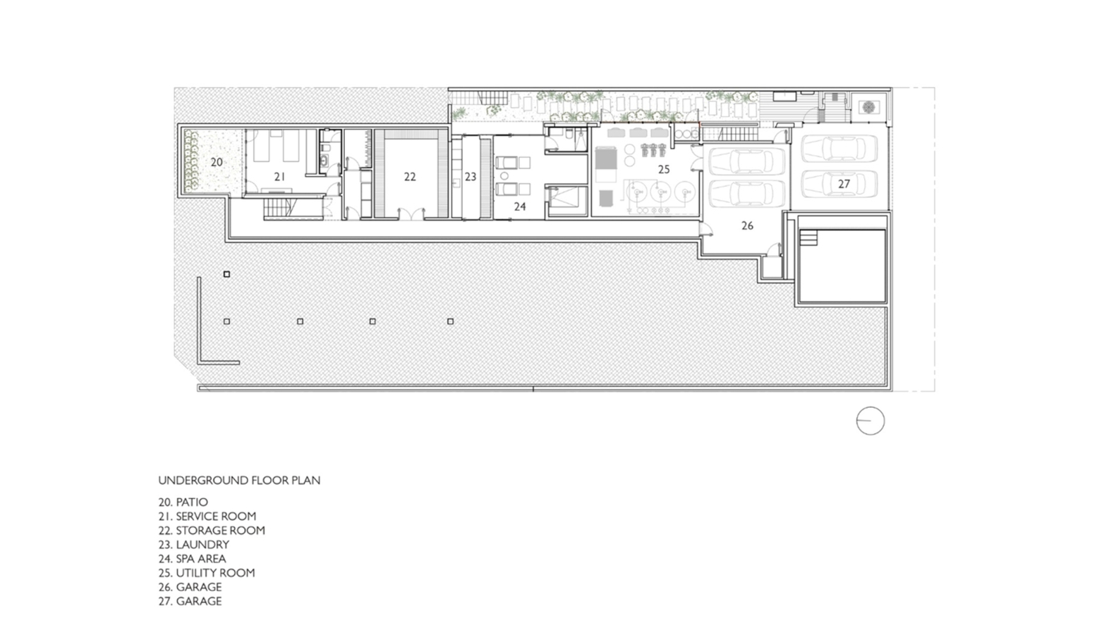
The house has a large basement that houses services, a machine room, a small spa and a guest bedroom. On the first floor, the private area of the bedrooms and the office is developed. The front-facing master bedroom has a planted ceiling with a sitting area that connects to the public area downstairs.
Constructed in 14 months, the house is made up of three main materials: exposed concrete, lapacho and yellow granite; It is this last material that determines its relationship with the local landscape and its interior courtyards.
▼项目更多图片
客服
消息
收藏
下载
最近
























