查看完整案例


收藏

下载
Green Apple
青苹果January 20th,2021Copyright © 2021 May Design
我不去想未来是平坦还是泥泞,只要热爱生命,一切都在预料之中。I don't think about the future is flat or muddy, as long as I love life, everything is expected.
——王小波
「前言」
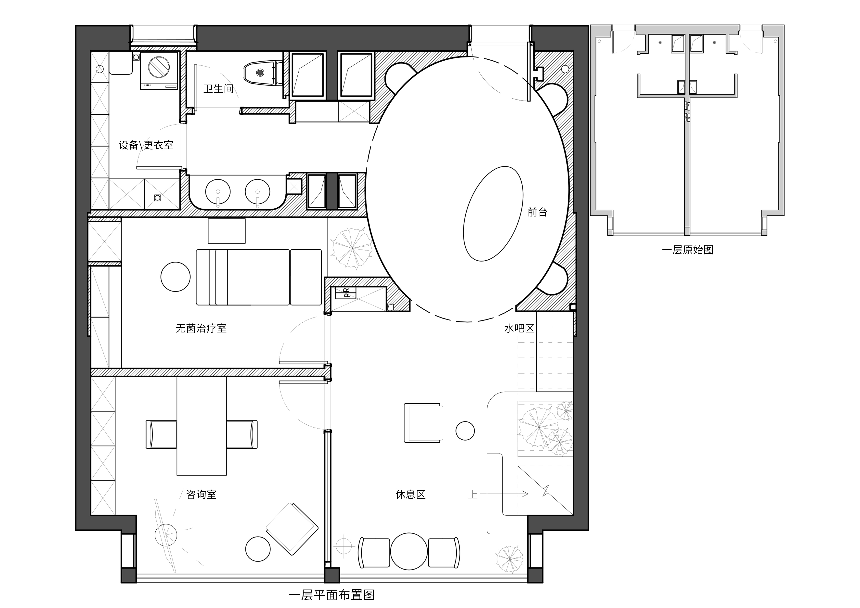
这一项目位于写字楼内,是一个Loft空间,设计师运用温柔的弧形元素将两层空间串联起来,在细节之处也不乏灵动与俏皮,赋予了整个空间满满的少年感,鼓励着来到这里的每一位顾客都能够热爱生命,为自己而活。Located in the office building, this project is a loft space. The designer uses gentle arc elements to connect the two floors. There is no lack of flexibility and playfulness in the details, giving the whole space a full sense of youth,encouraging every customer here to love life and live for themselves.小琦君致力于皮肤的护理,帮助人们追求美丽又独特的自己。Xiaoqijun is committed to skin care to help people pursue beautiful and unique themselves.
01
· Reception Area 接待区 -
“醒在梦境上,梦在清晨上,晨在川流上,流在船岛下。”"Wake up in the dream, dream in the morning, morning in the stream, under the boat island."
推门而入,就像来到了与世无争的梦境一般,亦真亦假,若即若离。和着熹微晨光,记忆中的柔软被唤起,时间倒带,找回了简单的纯粹。Pushing the door is like coming to a dream free from worldly strife. It's true and false. It's like walking away from the world. With the light of the morning, the softness in memory is aroused, time rewind, and simple purity is recovered.
椭圆的镜面天花对于营造空间的氛围起到了决定性的作用。它静静映射着地上人儿的来来往往,铭记着每一次的相遇和别离,像一本巨大的笔记本,记录下在这里发生的每一段故事。Elliptical mirror ceiling plays a decisive role in creating the atmosphere of the atmosphere. It quietly reflects the people on the ground coming and going, remembering every encounter and parting, like a huge notebook, recording every story that happened here.
圆球像糖,像青苹果,像月亮,藏在墙中间的“洞”里。“洞”深处的长虹玻璃让大厅和无菌治疗室有了一种扑朔迷离的暧昧,留下无尽遐想。Sunshine just right, big and small ball like sugar, like green apple, like the moon, hidden in the middle of the wall "hole". The Changhong glass in the depth of the "hole" gives the hall and aseptic treatment room a kind of complicated ambiguity, leaving endless reverie.
02
· Rest Area 休息区 -
远处的蓝天和大海,是“青苹果”最美好的布景。豆绿色的沙发与绿植形成了呼应,给空间抹上了一笔俏皮的绿色,仿佛空气也流转了起来。The blue sky and sea in the distance are the most beautiful scenery of the "green apple". Bean green sofa and green plants form a echo, to the space painted a playful green, as if the air also flows up.
不同形式的白色材质相互搭配,简单干净,与坚硬的黑色楼梯形成鲜明对比,刚柔并济,让空间有着明快的节奏和丰富的趣味性。Different forms of white materials match each other, simple and clean, and the hard black stairs form a sharp contrast, rigid and soft, so that the park has a lively rhythm and rich fun.
03
· Counselling Room 咨询室 -
俯瞰着窗外的景色,大雾散去,显现出来的是金黄的滩涂和车水马龙的繁华。咨询室的视野极好,沉稳的深色家具让这里不同于其他空间活泼的节奏,为的是让顾客能够将更多的精力用来了解小琦君的品牌与项目。Overlooking the scenery outside the window, the fog dispersed, showing the golden beach and bustling traffic. The view of the consulting room is excellent, and the calm dark furniture makes it different from the lively rhythm of other spaces, so that customers can use more energy to understand the brand and project of xiaoqijun.
04
· Clean Zone 清洁区 -
一个温柔,一个活泼。再小的空间,也有它们自己的性格。One is gentle, the other is lively. No matter how small the space is, it has its own character.
05
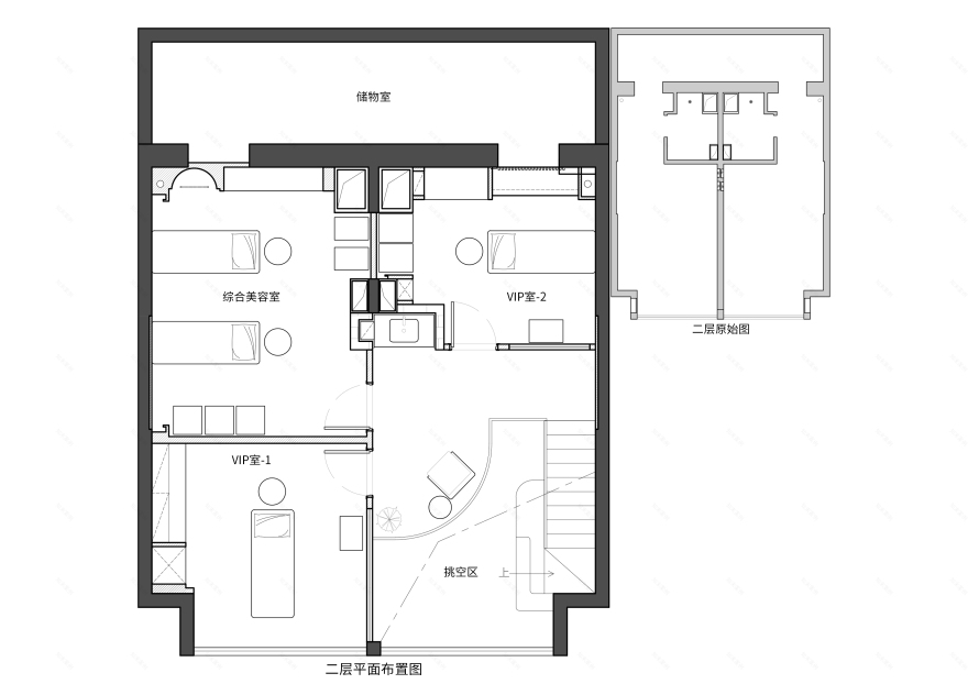
· VIP Room VIP室 -
高级灰色彩的搭配,像家,像恬静的春日,让顾客的感官和身心自然而然放松下来,忘却窗外嘈杂的世事,来到“青苹果”深处,汲取能量与养分。The combination of high-grade gray color, like home, like a quiet spring day, makes customers' senses and body and mind naturally relax, forget the noisy world outside the window, and come to the depths of"green apple" to absorb energy and nutrients.
06
· Comprehensive beauty room 综合美容室 -
柔和的灯光,大面积的墙面留白和绿植的点缀,让美容室有了诗意,仿佛来到这里也变成了一件极具仪式感的事情。Soft lighting, large area of wall blank and green plant embellishment make the beauty salon poetic. It seems that it has become a very ceremonial thing to come here.
「 结语 」
空间氛围的营造是为了给人与人之间的相遇留下一个美好而温暖的开始。穿梭在这个如梦幻般的房间里,我们不仅感到设计师合理规划空间之后所带来的便捷,更加沉醉于细小角落所发散出的情感色彩,热爱自己,热爱生活,不管走得多远,“青苹果”永远是为你遮风挡雨的一片净土。The creation of space atmosphere is to leave a beautiful and warm start for the meeting between people. Shuttling through this dream like room, we not only feel the convenience brought by the designer's reasonable space planning, but also indulge in the emotional color emanating from the small corner. We love ourselves and life. No matter how far we go, "green apple" park will always be a pure land for you.
项目名称 | Project name:青苹果
项目地址 | Project Address:青岛
项目类型 | Project Type:皮肤护理中心
设计时间 | Design Date:2020年5月-2020年6月
项目规模 | Floor Area:110㎡
设计团队 | Design Team:五月设计
软装陈设 | Decoration Designer:之颜软装
项目摄影 | Photographer:翟恒超
客服
消息
收藏
下载
最近





































