查看完整案例


收藏

下载
本项目是一个全案设计,从品牌形象到空间拓展,都由同一设计团队完成,这样就能将VR设计和空间设计很好的结合起来。全案由“青丘”这一地名展开联想,以“洞穴”元素展开空间想象,力求打造自然而静谧,深邃又隐蔽的空间。空间,是人类探索世界的主要载体,自古以来都与“行为”,“心理”相关。而结合商业空间属性对原有空间进行划分,再生,从而产生情感交流是本案阐述的重点。青丘是医疗美容属性的商业空间,这类空间一般在注重功能性的同时更加注重私密性,并且要契合女性气质。
温暖而柔和,简洁且干练,是女性气质的体现,同时也是我们想融入空间的情绪表达。运用色彩,材质的不同,为人营造出一种静谧的空间感受。
▼店铺外观
店铺入口是设计重点,我们将原结构的入口往店铺内部收缩一部分,使入口空间变大,视觉上也更开阔,同时增添了趣味性。还增加了网红打卡区,代替传统橱窗设计,增加了店铺记忆点,有利于店铺的品牌推广。
▼入口接待区
入口接待区作为网红打卡点在灯光上做了特殊设计,结合“月夜”主题将顶面做镂空处理仿佛一轮明月,并运用月亮吊灯烘托气氛。侧面小洞口正对着内部前台,内外人员通过洞口产生交流性。
▼一楼等候区
店铺面积小,但是作为美容场所又必须满足一些基本需求,客户提出想要大一点的接待区,于是我们摒弃了大部分商业空间中将接待台设计的较为醒目的做法,将接待收银的区域融为一体,扩大交流空间。
▼空间概览
▼楼梯处的软隔断
内部空间运用色彩进行区域划分,避免了空间狭小带来的局促感,水吧,洽谈区,卡座区相视而独立,楼梯处的软隔断处理既能满足包裹感又避免了视野的阻隔。一楼公共空间以弧拱形的顶面压低空间弱化墙顶连接性,运用水泥涂料进一步强化“洞穴”的概念。
▼楼梯
▼二楼休息区
▼二楼走廊区
二楼整体风格更趋近于侘寂风,“侘寂”两字,本身出自中国禅学,逆时间之河而上,通过平静的空间窥见极简的生活。侘寂的美学意识就是黯然、枯寂,以粗糙,哀美之姿传达其意识。
▼面部护理区
结语:对于这个项目,设计师在空间中以空间叙事和建筑漫步手法展开,将其当成时间的艺术,对空间展开序列性、引导性的重组,在行进中观察,体现空间的叙事,将对空间的感知放大。▼空间细节
▼立面图
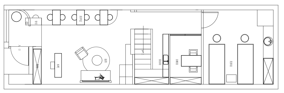
▼一层平面
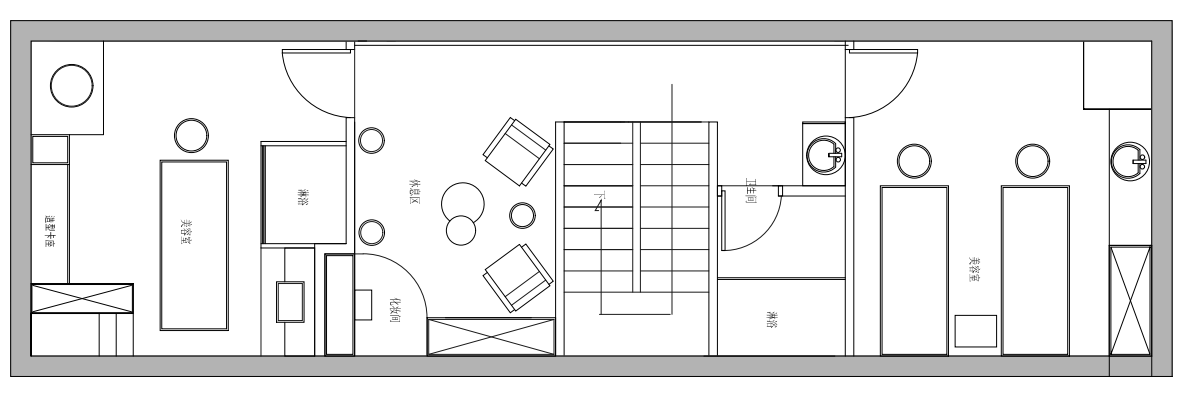
▼二层平面
项目空间信息:
空间名称:青丘美肌社
空间类型:商业空间、美容中心、皮肤管理中心
空间地址:安徽省合肥市湖北路悦方IDMALL蓝山CBD写字楼商铺102号
设计公司:纪青空间设计
空间主材:水磨石、水泥、涂料、木地板、镜子、灯光
客服
消息
收藏
下载
最近






















