查看完整案例


收藏

下载
这世上,并不是所有事物都符合想象,有时候,山是水的故事,云是风的故事。海有天的壮阔、河有万物的奔腾、溪有长流的宁静,唯有湖,温柔且恬雅,淡到极致的美,不急不躁,款步有声,舒缓有序,湖居,于一怀淡泊中,慢下来的,是生活,亦是心境。
云告诉湖,自己来自远方,一路上已经下过很多场雨,湖邀请云稍作休息。风也停了下来,湖面光滑的犹如一面镜子,云停留在上空,静静地,那些天真的、跃动的、抑或是沉思的灵魂,在此刻也难得的平静了下来。
接待前厅
你与我初见,不过是几丛兰花,你便读懂了我,于暖灰中的一丝生机,如湖水般从容静谧。
咖啡水吧
还记得停留在湖面上的那片云吗?天亮了,云醒了,阳光穿过云层,散落在湖面,轻柔的风,摇曳的树,婉转的鸟,灵动的鱼。这片承载着万物的湖,于时光深处静看花开花谢,虽历经沧桑,仍含笑一腔温暖如初。
水·是每一个生命存在和生活的甘露
留不下云,留下了颗颗精美的水晶吊坠,与云雨一般,将唯美的光线相融汇,是艺术与工艺奢华的佳作。如同巢湖的水一般,滴滴珍贵。
我曾幻想,阳光透过水面,水下又是怎样的一副画面。行至朝暮里,坠入云暮间,南向大面玻璃幕墙引入自然光,室内外光景的自然交互
,阳光穿过立面的玻璃,经过建筑框架与线条的筛虑进入人们交谈的舒适氛围中。
洽谈区
于生活的海洋中踏浪,云帆尽头,轻回眸,处处是别有洞天,风轻云淡。心中若有桃花源,何处不是水云间。
洽谈区空间设计彰显着极具当代气息的审美观感,对称性的空间布局结合创新性的设计语汇,形成了独具一格的精神气质。又与售楼处建筑风格相融,整体空间通透自然之美和谐统一。
淝水急流舟欲起,巢湖浮黛画初匀
沙盘区
未曾谋面的也终将会相遇,高高的天花板上,如水似云的水晶装置,透溢出如水般清灵的气息,形成视觉上的连廊效果,让空间的韵致无限延伸。
万物之色,水色最为素淡,也最富于变化。空间中,水的元素用各种表现形式和形态贯穿整个空间,随着空间和动线的起伏安插,形成不同区域的视觉聚焦点。
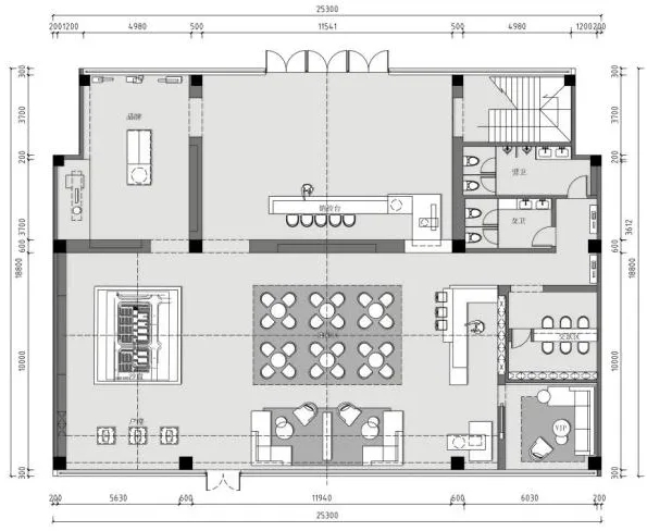
室内平面图
项目名称:奥园意禾·滨湖观澜
业主单位:六安奥禾置业有限公司
项目地址:合肥市新滨湖南杭埠产业新城
项目类型:住宅类
设计面积:618㎡
建成时间:2020年12月
设计管理: 李祥 鲍安友 谢强 高宗来
设计单位:赛拉维设计 CLV.DESIGN
总设计师:王少青
设计团队:赵宏伟 郭恒攀 王泽林 陈树宝
项目摄影:一千度视觉
客服
消息
收藏
下载
最近
























