查看完整案例


收藏

下载
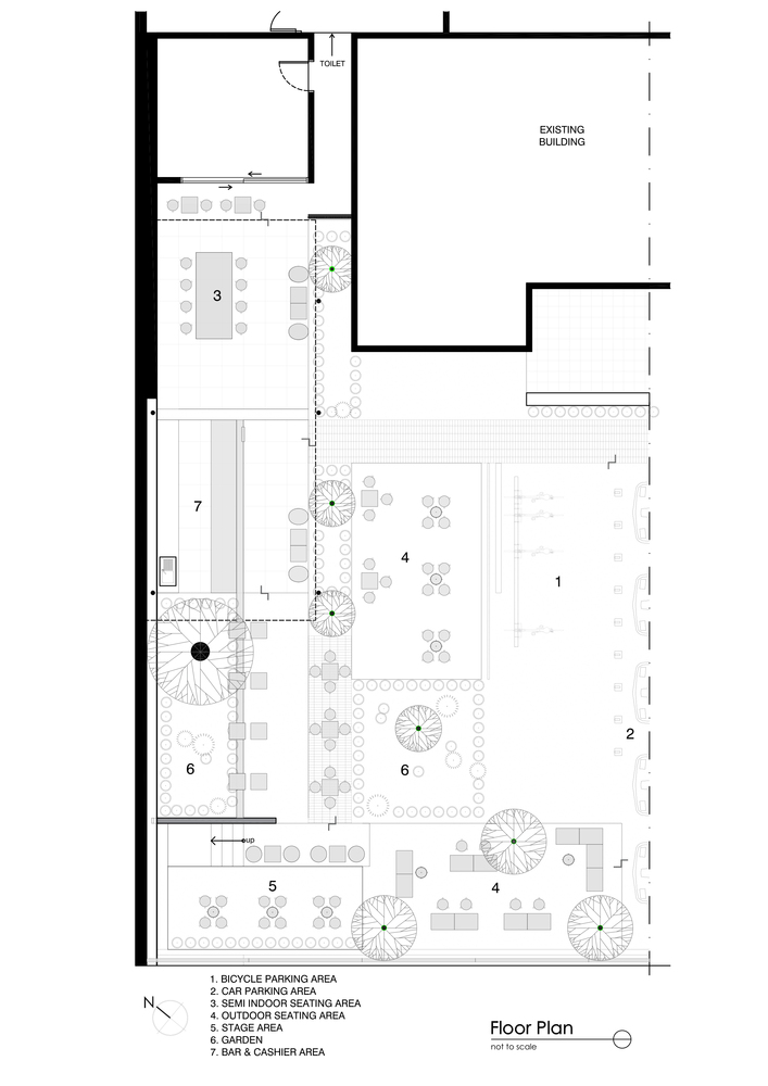
Kilogram是一个位于印尼,212平方米的咖啡店,由Pranala Associates设计,设计是为了满足咖啡馆和灵活的工作空间的需求。除了商业用途外,主要目的是建立与周围的工作环境和谐相融的环境,它有一定的功能限制,但又不过分,可以作为日常工作的多功能空间。
咖啡店位于一栋建于20世纪80年代的殖民时期的房子的前面,作为房子的延伸,它作为一个日常的共享办公空间。简单宽阔的阳台形式,使咖啡店与现有的老建筑相映成趣。
项目中面临的最大挑战是确保新结构与主要现有建筑的连接,同时采用最小化和非侵入性的建筑元素。为了满足这些需求,建筑体量首先由入口处的用户流线决定,所以建筑是一个一直到场地西端区域边界的开放空间。钢格栅和现浇混凝土地板分别被用来定义交通和座位区域,并且成为与现有建筑的露台连接的新通道。较低的天花板使室内空间更加私密,与相邻的天井空间形成鲜明对比,天井相当开放,可以灵活地举办社交活动。
该项目由Pranala Associates与Conture Concrete Lab联合设计,是对办公楼内日益增长的人流量以及之前用作租户车棚的空置区域的回应。据此,我们设计了一个多功能建筑,以匹配不断增长的生态系统,并特别关注建筑立面的形式构成,以及私人用户和公共访客之间的通道分离。联合设计对设计的最终成果有重要作用,特别是在吧台立面、半户外地板和家具的混凝土饰面的探索方面。
体量垂直于街道布置,入口面向办公楼,用线性的绿植和钢格栅迎接来往的行人。墙体元素以齐腰高的方式建造或单独作为入口处的屏障。表面没有做过多的处理,充分展示了材料的粗糙感与现浇混凝土、混凝土砌块、生金属或木板的意外接缝所造成的即兴装饰之间的张力。
客服
消息
收藏
下载
最近



















