查看完整案例

收藏

下载
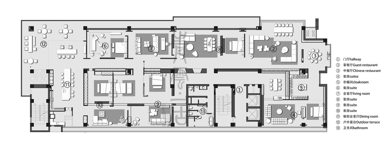
ORIENT YOUTH(青柠荟)高端整装品牌,隶属于顾家集团。在这个电商日益激增的时代,线下实体店能给顾客最直观的视觉感受和了解产品一样重要的亲身体验。企业展厅设计是一个系统工程,除了要考虑到企业展厅的空间造型、面积大小、合理布局等客观因素之外,任何布局方案在了解了客户需求后,都需要反复规划、多次论证、以获得最佳,不仅为后期展厅设计打好基础,还能有力推动品牌在形象、文化、品质上的提升。店铺地址位于杭州下沙,我们要在1000㎡空间里最大化展示其品牌家具,展厅整体设计风格需与产品形成一个互补的关系。
01门厅
展厅入口的第一个问题就是光源太少,我们在顶部墙面安装了一排灯带,来弥补室内光线的不足。侧廊由于面积窄小,中央展厅毗邻,通过两个不规则的梯形窗口减少压抑感,也可供作为展示的橱窗,便于展示最新主题家具,空间与空间之间形成对话。
空间定位确定后,我们希望每个区域有所区别,让顾客进入每一个空间时,都有不一样的亲身体验。
02客餐厅
从平面图上可以很清晰地看到每一个展厅的区域功能,在保证不破坏整体空间的基础上,制作一个弧形窗户,来进一步的吸引顾客对其他空间的探索欲望。
03中餐厅
04套房
05衣帽间
06套房
08套房
09套房
10套房
11西餐厅
最后是餐厨会客厅,醒目的红色壁画,低调奢华的黑色橱柜,无主灯设计。利用墙体和材质之间落差,来进一步强调空间的视觉纵深感和层级递进关系。
铁板烧设备连接大理石岛台材质与肌理,一直是我们探索和实验的领域,因此我们会在施工细节上倾注大量的时间和精力。
局部展示
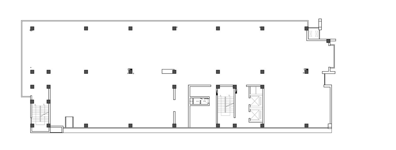
原始图
平面设计图
项目信息
项目地址 | ORIENT YOUTH青柠荟
设计公司 | 青云居设计机构
施工团队 | 鸿杰装饰
项目面积 | 1000㎡
完工时间 | 2020.01
空间摄影 | 瀚默·小四
客服
消息
收藏
下载
最近











































