查看完整案例


收藏

下载
秩序,从混乱中产生了出来。——英国诗人弥尔顿
OOMOO,一个全球木作家居新锐品牌,自创立伊始,即注重平衡美感与功能、品质与价值、效率与成果,致力于不追逐时代美学,只缔造趋势,在感性生活中追寻最理性的舒适体验。其第一家展厅——OOMOO之家上海旗舰展厅由方磊领衔的壹舍团队操刀完成。
设计师汲取品牌灵感,将其拆解组合搭建成完整的空间语言,追随自由元素延展,并雕琢室内的建筑感,以楼上楼下造型各异的盒子交叉叠合,拒绝固化形式的解读,提交创新性答案。在混沌之间,多元化与秩序并存,感性的惊喜依托于理性的排布而生并与之交融。
1.
自由延展零而不散
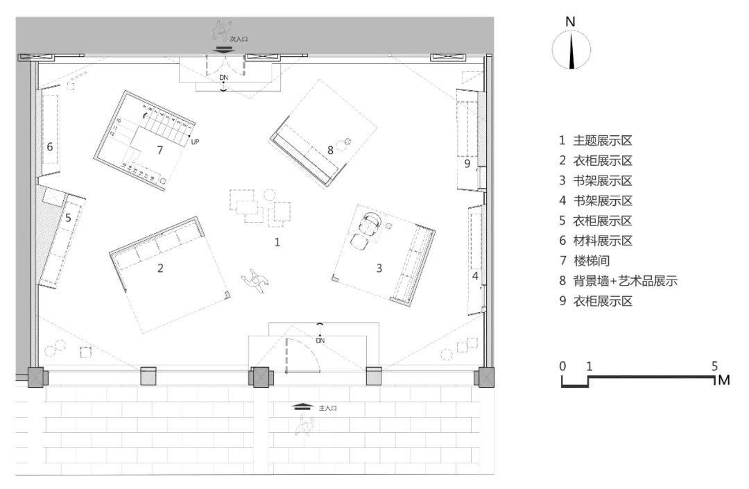
OOMOO之家上海旗舰展厅,面临解决两个诉求:第一,将丰富多元的产品系列清晰有序地呈现出来,这是展厅要承载的基础使命;另外,还要塑造显著的中心点,强化对展厅的印象记忆。
设计师将建筑手法迁移至室内,以大块黑白布色,硬朗的线条穿插其中,简洁的白底与黑色体块串联,不设置庞杂的隔断。干净利落的半私密式布局,既保持了亲密,也留有神秘,在递进与交互之间演绎出层次之美。限量解剖版的KAWS玩偶在正中央处热情迎接每一位访客的到来。
“我希望这些散落的黑盒子以及切角形式,打破传统的固定直线型逻辑,释放空间活力,让人可以更加随性的穿梭探索,以放松惬意的心态来了解并体验OOMOO品牌、产品及服务。”方磊表示。
若将整个场地视为一个游走的系统,错落的体块与灵巧的切面开口让其平面灵活度更高,视线穿透性更强。在不拘一格的分区中,每个系列就像簇拥的舞台主角,自成焦点,既凸显个性化,又让每一隅都能邂逅不同的精彩。
2.内外联动上下一体
偌大的玻璃窗为展厅引入充沛的光线,室内借由体块以及色度上的调和,清爽简练。切角开合之道的拿捏思考,贯彻至四周全方位,并打破方正的常规逻辑,又从动态上将彼此连接,表现得疏密有序、收放自如,既有适度凸显,又不会与整体割裂。
纵然每一系列本身的造型、色泽、材质各异,但采用黑白灰作为基底色,其强大的包容性,兼收并蓄,一切都纯粹且契合。在黑白分明、深浅交替中延伸外在的宽广之感,更似衬托内在的深远之境。
“一二层楼之间的纵向延伸同样是重点,楼板并未完全封闭,而是以散布着随性的洞口形式让上下贯穿、互动,这和黑盒子上不规则的切角做法及目的异曲同工。此外,每个角落留有的挑空区域,也各自匹配了不同的造景点缀。”方磊讲到。
悬挑楼梯以被包裹的姿态蔓延而上。虚实相生的光影、连续的界面传递至臻深邃的魅力,停驻的前后视觉落点也都通过精心考量。
跟随楼梯而上的还有盒子概念,环绕式的组合衣帽柜有别于楼下的冷静硬朗,瞩目的绿色瞬间唤醒活跃与生机,进一步彰显着OOMOO的无限可能与多样选择。
中央的玻璃洞口,在保证安全的前提下弱化护栏,进一步流露轻盈透气的观感。俯瞰的目光正好聚焦在一楼中心处,这也是对上下一体的把握与呼应。
3.突破定式外领潮流
考虑到建筑条件以及层高的限制,顶面保留了原始裸露的梁位及管道设施,并以此试图构筑一种介入与划分的状态,让新与旧融合碰撞,原始与再造自然对话。
场景区域的构建,是实现与访客直观沟通、引发共鸣的一种颇为有效的方式。摒弃单纯的展现形式,通过生活场景及使用区域的模拟,在真切表达其结构、功能及应用之余,也散发出和谐的美感与内在的优雅。
优质的材料和细节层次是关乎室内体验感的重要因素,基于OOMOO与木有着千丝万缕的联系,于一二层分别设置材料展示区,着力诠释木的本质精髓。整体上同样强调统筹木质与色彩、光影、纹理等的综合使用,既有简约干练的气质,又不乏摩登新潮的格调。
目之所及,借由木质与玻璃、金属及皮革的融合碰撞,精致落在细微点滴之处,意式低奢的不凡质感呼之即出。
设计概念过程稿
剖面图
OOMOO之家上海旗舰展厅宛如一个容器,家具、陈设、装置、艺术品等诸多元素在其中逐层渗透,显得流畅、灵动且充满张力。以宜人的尺度建构开放式生活,打破界限,赋予自在洒脱的感官享受,传达出OOMOO极致、张扬、独一、潮流的调性。同时在产品与空间“你中有我、我中有你”的紧密关联中,也透露着壹舍对于当代人居美学的极致思考。
1F平面图
2F平面图
项目名称 | OOMOO之家上海旗舰展厅
项目地点 | 上海市 徐汇区
项目面积 | 434㎡
设计公司 | ONE HOUSE DESIGN 壹舍设计
设计主创 | 方磊
参与设计 | 蒙程鹏、胥磊
视觉陈列 | 李文婷、刘艳
项目摄影 | 朱海
客服
消息
收藏
下载
最近


























