查看完整案例

收藏

下载
说在前面
女业主来自于杭州是一名自由职业者,而男业主是一名四川的游戏美术设计师。有趣的二人相识于一款名为“剑侠情缘”的网游,那时的他们都是在同一地方上学的大学生,妹纸热情大方,男孩腼腆少言,但在游戏世界却成了无话不聊的好友。毕业后两人各自回到了自己的老家工作,但好巧不巧男孩去了女孩生活的地方出差,做了网友好几年,终于二人在线下成功“面基”。后来,女孩辞别父母从杭州到成都开始定居生活,相对于他们二人而言,这个家就是他们的全部的世界。
户型图
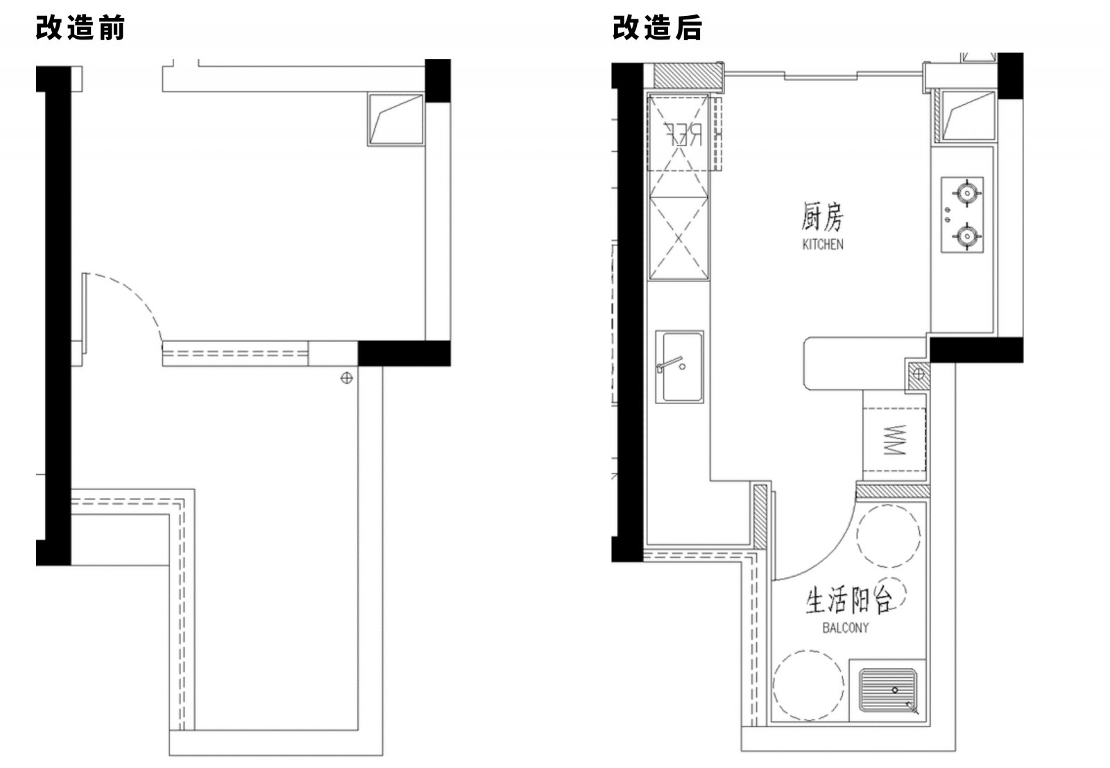
原户型分析 1.原始户型可以看到入户处,玄关独立成为一个房间,且无采光使整个房间显得更为昏暗。原户型分析 2.原始户型里去往从客厅进入其他房间(除厨房)都需经过同一个入口,整个动线显得拥挤且混乱。原户型分析 3.卧室其实是整个房屋的一大亮点,有好几个采光处。如果根绝业主需求直接增加衣帽间主卧会变得拥挤,浪费原始主卧明亮宽敞的优势。
解决方式 1.拆除原始玄关处的墙体,新建造型隔断,并将隔断向门口方向退一定距离。此时既保证了玄关的采光与使用,同时增加了客厅整体使用面积。
解决方式 2.将动线梳理,改变3个房间的进入位置,过道变得不再拥挤。
解决方式 3.改变三个房间的入口后,主卧入口得以外移,增大卧室面积。同时拆除原有格局不合理的空间,变为卧室+书房+主卫+衣帽间与一体的综合空间,将优势利用最大化。
玄关
造型隔断为悬空的形式,且中间留有造型洞,造型洞宽300mm高500mm,避免隔断过于压抑生硬。 隔断离地250mm,这种悬空的造型也便于扫地机器人的工作,在前期业主填写心愿清单时就提出希望所有的家具预留扫地机器人的高度,尽量减少全屋的卫生死角。
换鞋凳下预留了家居鞋和扫地机器人的置放位置,户外鞋则全部可收与柜中。 整个鞋柜+换鞋区域长度为1800mm深度为350mm,换鞋区域为600mm,足够一人舒适的更换鞋靴。
拆改墙体后,增加的客厅面积作为餐厅区域使用,旁边就是宽敞的厨房,使用起来极为方便。
原始玄关封闭且独立,于是我们拆除了原始玄关处的墙体,将空间整个打开。新建造型隔断,并将隔断向门口方向退一定的距离。此时既保证了玄关的采光与使用,同时增加了客厅整体使用面积。
客厅
两人需要一个健身空间,于是我们把休闲阳台与客厅结合后,用这个空间来摆放跑步机,平时可以折叠收纳到阳台的柜体里隐藏起来。 柜体的尺寸为长1550mm深600mm高2700mm做到随取随用,时刻保持简洁舒适的体验感受。
电视背景墙为现场木作,儿童房的入口也隐藏在其中。客厅选择了屏幕尺寸较大的智能电视,沙发则是选择了Innovation的折叠沙发。
这种折叠沙发可以选择三种模式,第一种为正常沙发形态,第二种位沙发床的形态,可以短暂休息使用,第三种则是半躺 ,靠背倾斜角度略大于正常沙发形态时的靠背倾斜角度,这种形态下观看电视时体验效果更佳。
儿童房
原始房间不仅入口位置与其他空间入口交错拥挤,而且多了一段过道区域,这段过道区域则白白浪费了一些空间。改造后将儿童放入口改变到客厅电视背景墙处,用隐形门的方式加以修饰。同时封闭过道并外扩一点位置,作为儿童房的衣柜放置处。
书桌区域则是利用了原有的户型特点,将飘窗拆除加以利用,刚好可以设置长1300mm深600mm的书桌。由于现在家中没有小孩,所以女业主偶尔会选择在这个地方安静的练字。
卧室
卧室与书房融为一体,拆除原有墙体,用电视墙及书柜做隔断使用。男孩喜欢网上冲浪,使用电竞标配,小姐姐则靠窗看书品茗。主卧外还有一些空间,则改造成为了了他们的秘密花园。
主卧是改造最大的一块,占据整个房屋总面积的三分之一,接近50㎡。属于一间多面有窗的特殊户型,再加上户型坐北朝南阳光通透的优势。改造后成为了一间集卧室、书房、衣帽间、花园、卫生间于一体的多功能空间。
在心愿单里,看到他们期待的house,期待的生活。环保,简约,温馨,以实用舒适性为主。遛狗种花,靠窗看景喝茶聊天,美哉。
原始主卧有块狭小黑暗且不太好利用的空间,还占用次卧的使用空间。通过优化改造后,不光腾出了衣帽间的空间,也让次卧使用更合理。相当于原始的这个阴暗空间+无用过道拆解重组有效利用后,变成了儿童房的衣柜置放处及主卧室的衣帽间。
卫生间
次卧
次卧室改造不大,因为日常只有两人居住,父母也只有偶尔才会到家中来,所以没有什么特别的需求。对于这个空间,只是将原有的飘窗改造,变成储物式的卡座。坐垫是与窗帘一起定做而成,储物卡座总长2700mm深600mm。
次卫
将卫生间干湿分离,作为公共卫生间在适合不过。盥洗室在外便于洗手照镜子等简易使用,有人在如厕时也可以互不干扰。盥洗区域长800mm,侧面制作的壁龛总长为700mm宽度为400mm,可以放置一些装饰物,还有洗手时可以置放物品。
厨房
将原始的墙体改为玻璃推拉门,增加了整个厨房的采光,同时将生活阳台的位置缩小以增大厨房的使用面积。 虽然生活阳台比原始小了一些,但仍旧不影响晾晒衣服的使用,拆改后生活阳台的尺寸为长2180mm宽1555mm。
阳台
结语
在我们外人看来,他们二人的世界过的简单却快乐,女孩子带有苏杭女子的恬静温婉,男孩子踏实勤奋,有人说:人要活得务实,我不太认同,至少看了他们的生活我有些新的见地,他们的生活状态在如今这样一个“快餐”时代里还多一份童真与单纯。
他们更像是把网游里的仙侠情侣生活带到了现实带进了这个家。在他们二人的内心住着一片净土,种花、养狗、养仓鼠、养鸟,用悠然自得来形容他们二人及生活状态太合适不过了。
客服
消息
收藏
下载
最近





































