知末
知末
创作上传
VIP
收藏下载
登录 | 注册有礼

滑雪爱好者的现代艺术之家

2019/09/20 08:39:53
查看完整案例
微信扫一扫
收藏
下载
Maison Glissade
设计方:Atelier Kastelic Buffey
位置:加拿大 昂大略 科林伍德
分类:住宅装修
内容:实景照片
滑雪爱好者的现代艺术之家-5
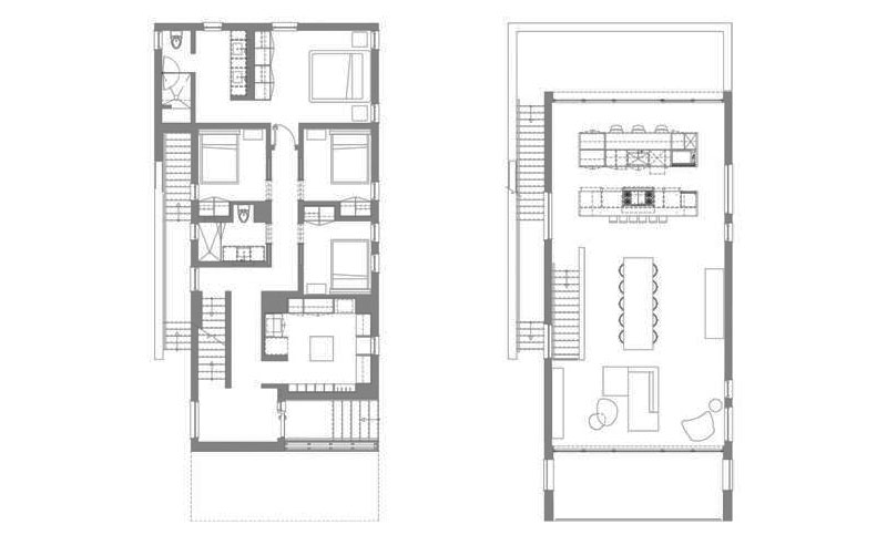
事务所对一栋双层住宅进行了室内装潢,住在这栋房屋里的一家人是滑雪运动的爱好者,对现代艺术也颇有研究。房屋位于一个私人滑雪俱乐部的开发区内,室内装潢完全迎合了住户的爱好。
滑雪爱好者的现代艺术之家-7
滑雪爱好者的现代艺术之家-8
滑雪爱好者的现代艺术之家-9
滑雪爱好者的现代艺术之家-10
滑雪爱好者的现代艺术之家-11
滑雪爱好者的现代艺术之家-12
滑雪爱好者的现代艺术之家-13
滑雪爱好者的现代艺术之家-14
滑雪爱好者的现代艺术之家-15
滑雪爱好者的现代艺术之家-16
滑雪爱好者的现代艺术之家-17
滑雪爱好者的现代艺术之家-18
滑雪爱好者的现代艺术之家-19
滑雪爱好者的现代艺术之家-20
滑雪爱好者的现代艺术之家-21
滑雪爱好者的现代艺术之家-22
滑雪爱好者的现代艺术之家-23
滑雪爱好者的现代艺术之家-24
滑雪爱好者的现代艺术之家-25
滑雪爱好者的现代艺术之家-26
滑雪爱好者的现代艺术之家-27
滑雪爱好者的现代艺术之家-28
滑雪爱好者的现代艺术之家-29
滑雪爱好者的现代艺术之家-30
滑雪爱好者的现代艺术之家-31
滑雪爱好者的现代艺术之家-32
滑雪爱好者的现代艺术之家-33
滑雪爱好者的现代艺术之家-34
南京喵熊网络科技有限公司 苏ICP备18050492号-4知末 © 2018—2020 . All photos and trademark graphics are copyrighted by their owners.增值电信业务经营许可证(ICP)苏B2-20201444苏公网安备 32011302321234号
客服
消息
收藏
下载
最近