查看完整案例


收藏

下载
loft
Slava Balbek新作,196㎡奶酪面包店,loft美学成为了设计的基础,任务是和谐地将咖啡馆安装到旧工厂建筑的建筑中,并仅在适当的地方使用新的设计元素补充内部。
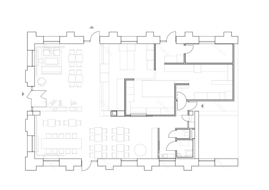
平面布局
原始砖块,被用于房屋的装饰中。入口的左侧是一个柔软的座位区域,它是焦点,以两个窗户的为中心。厨房是部分开放的,可以瞥见糕点店如何准备产品。一个小儿童区位于厨房旁边,配有粉红色的架子,用于玩具和书籍,柔软的pouf,以及浴室。
TEAM
Blava balbek,建筑师和设计师组合的团队,11年的工作经验,构建宜居空间。舒适、创新和功能背后的驱动力是他们意识到每一个建筑和室内设计项目。
其他新作
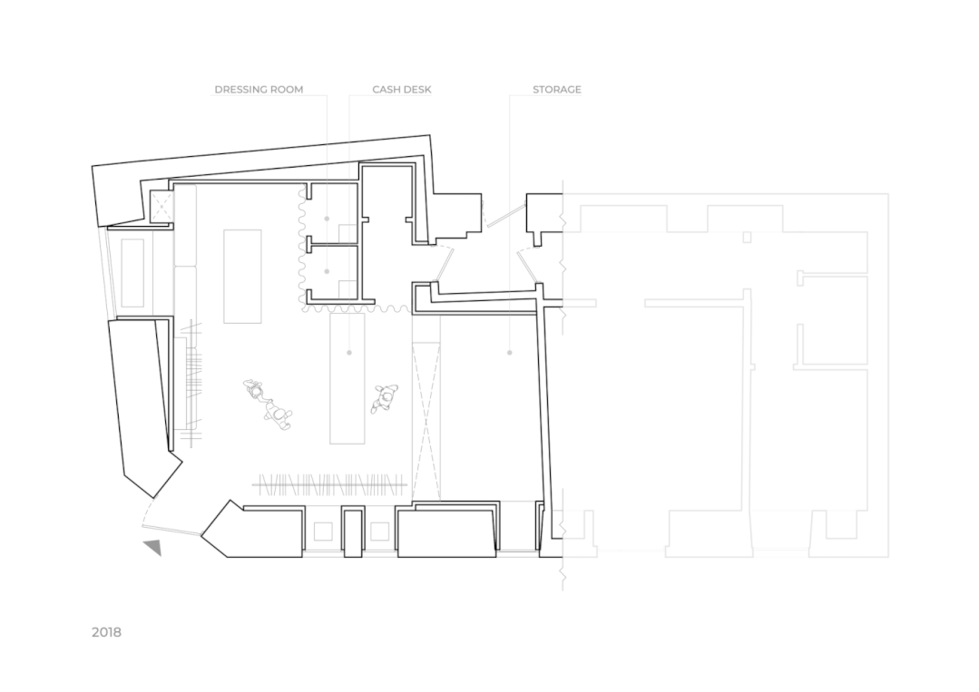
SYNDICATE
96㎡
平面布局
客服
消息
收藏
下载
最近













































