查看完整案例


收藏

下载
MBS House
别墅设计
巴西建筑大多数受现代主义影响颇深,尤其是住宅,当地建筑师擅长于将原始的元素如石材、木材,与奢华的细节融为一体,作为木材丰富资源国家,巴西建筑对于木材的运用较为广泛,几乎涵盖所有部分。
MBS House 是
位于巴西南部靠近首府巴拉那的一栋住宅,由当地设计公司 Marcos Bertoldi Arquitetos 设计,占地面积 1800㎡,建筑面积 1074㎡。
整个房子设计重视建筑、室内和景观之间的联系,且利用大面积落地窗来模糊内外之间的界限。
# 建筑
人字形图案的木板
从街道上看,房子的前面是一堵木墙,它隐藏了大门,形成了一条通往房子正门的蜿蜒人行道,
在门口附近,一个浅水池被黑色网格天窗照亮,侧面的木质格栅能隐约看到外部场景,很有趣味性。
房子两侧的一层立面做石墙,以此满足屋主对于舒适而庄严的氛围要求。
设计师说:“
客户想要一座延伸到花园中的房子,内部和外部之间的界限没有定义,其休闲和生活空间与外部区域处于同一水平。
# 室内
全高的木质推拉门内,
在通高的空间做了一座巨大的木质螺旋楼梯非常抢眼,也让整个空间变得艺术感十足。
张扬气质
为了创造一个灵活的起居空间,设计师利用巨大的落地玻璃移门,可以在内部和外部之间轻松过渡。
配套的酒窖用金属网格做成酒架▽
二层作为休息空间,有三个卧室套间,且均带有露台。
镜子与木材结合打造的鱼骨饰面墙,同建筑立面造型一致,也与投射在室内的光影相呼应。
走廊的尽头是主卧室,这是唯一一间朝西的卧室,可以俯瞰游泳池和远处的天然森林。
室内运用色彩打破空间单调感,
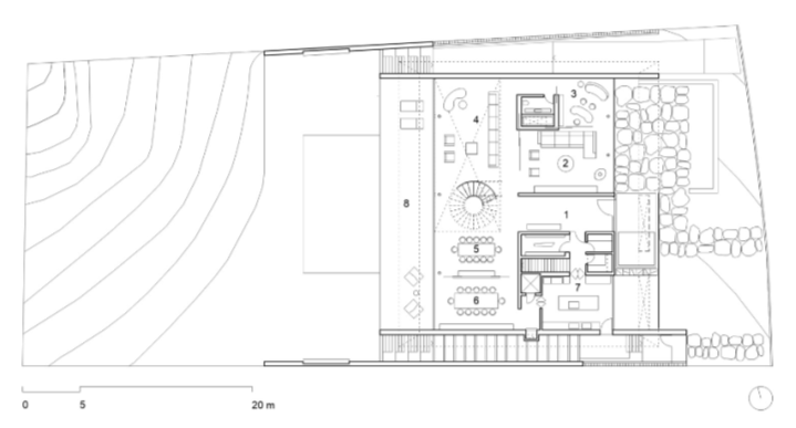
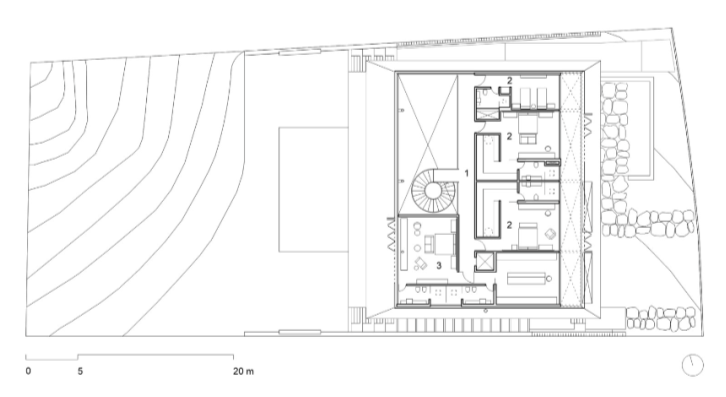
平面图▽
客服
消息
收藏
下载
最近

























