查看完整案例

收藏

下载
前 言
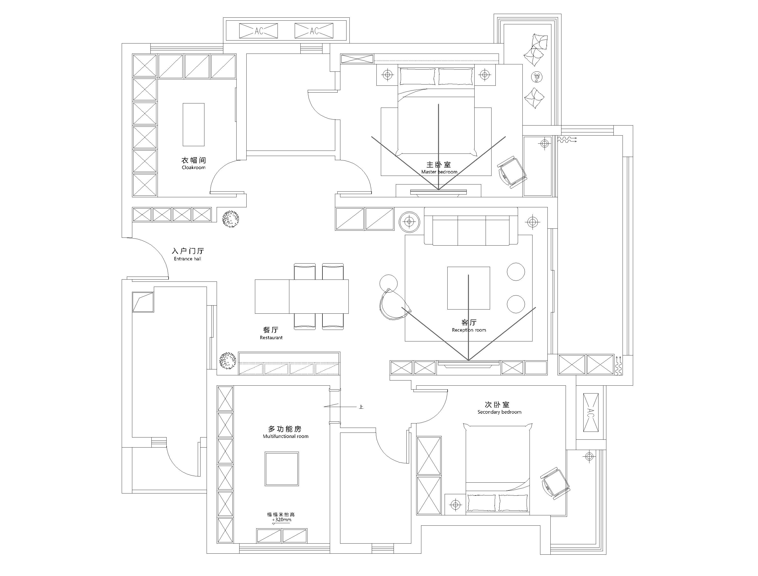
△ 原始户型图
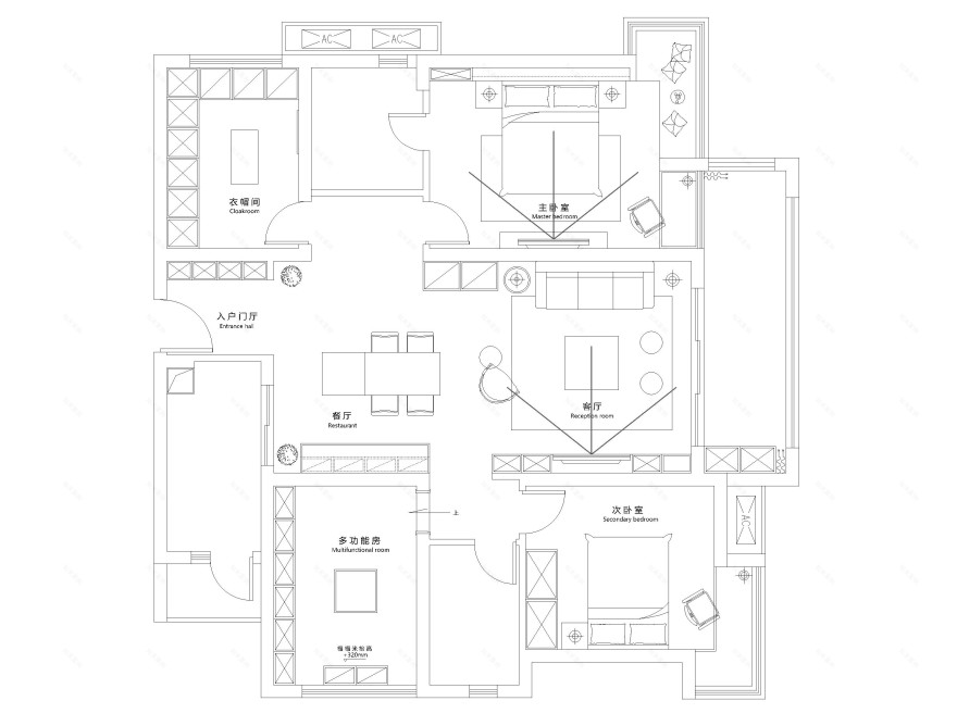
△ 平面布局图
——
项目摄影:刘帅
项目面积:140 ㎡
施工时间:5个月
项目地址:成都,双流区- 中海右岸
全装花费(含电器):35 万
设计机构:致物设计
施工单位:造梦家施工工作室
/
Project Photography : Liushuai
Project Area : 140 ㎡
Construction Time : 5 Months
Location : Chengdu - Shuangliu distric
Decoration Dudget:350 thousand yuan
Design : Z.W Design
Construction :Dreamer Studio
IMPROVEMENT PROJECTS
改造重点
屋主心愿
Tips 1.
家里有两只宠物,需要宠物的玩耍空间和大量的宠物用品需要储存收纳
Tips 2.
房屋的所有地板希望都能够替换掉,日式简约风希望是整个屋子的基调
Tips 3.
希望能在卧室电视旁弄个给老公玩电脑的桌子
Tips 4.
可以改造两个房间做衣帽间和榻榻米会客室
改造实现
Tips 1 .
客厅的大部分区域都设计了收纳柜来储存物品
Tips 2 .
在卧室、阳台、房门都留了猫洞,让猫主子可以在这个屋里自由穿梭
Tips 3 .
客厅和卧室都设计了桌子方便屋主办公等
DRAWING ROOM
客 厅 全 貌
◤ 1.0改造前 ↓ BEFORE ◥
改造前细节: 精装房“丑陋的”踢脚线、鞋柜与地砖
◤ 1.0改造后 ↓ AFTER ◥
—
考虑到宠物的生命安全等因素,全封闭阳台是养宠人家首要的条件
客厅做了边顶,从而扩大卧室空间
餐桌对面的操作台,是厨房的延伸区、也可做西厨使用,烘焙或者摆放小家电都随自己心意
◤ 2.0改造前 ↓ BEFORE ◥
改造前细节:
原始户型没有做太大的改变,主要改造的是地板和鞋柜部分,厨房保留了原貌
◤ 2.0改造后 ↓ AFTER ◥
—
大量的原木元素,温馨且自然
DINING ROOM
餐 厅
—
餐厅的两把藤编椅是女主人特意选的
可伸缩餐桌,不光满足屋主俩的日常下厨,偶尔三五客人造访也不用担心坐不下了
主 卧
◤ 1.0改造前 ↓ BEFORE ◥
改造前细节:卧室地板全改造、卧室门板改为定制门板
◤ 1.0改造后 ↓ AFTER ◥
—
在书桌下专门为猫留了猫洞,与宠物近距离亲近
阳光透过百叶窗倾泻到卧室的每个角落,与爱的他们共同呆在一个空间完成所有的事情
次 卧
—
Ctrl+C的主卧模式,给你Double 份的舒适与暖意
CLOAKROOM & TATAMI
衣 帽 间 & 榻 榻 米
—
独立衣帽间是每个女孩的梦想,而可爱的女主人怎么能不拥有呢!!
设计榻榻米的初衷是女主人希望有亲人朋友来家里有可以会客、玩耍的独立区域
- END -
客服
消息
收藏
下载
最近


























