查看完整案例


收藏

下载

翻译
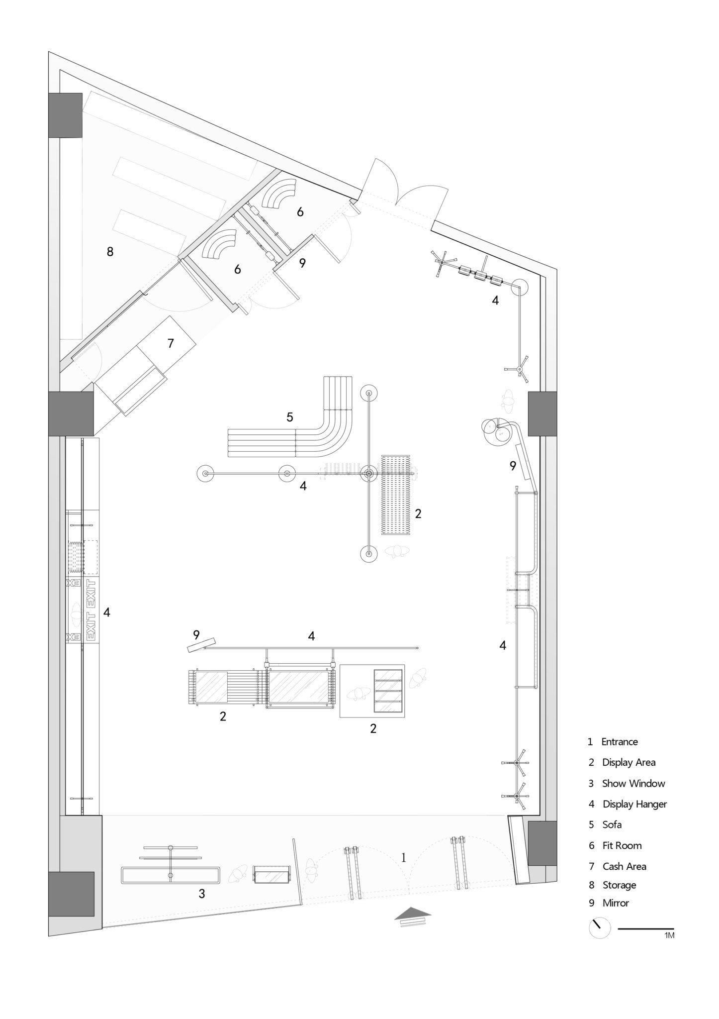
In the overall space, the natural characteristics of the texture paint were used to keep the retro memory, while the metal material with the extreme contrasting texture of future technology was added to combine the retro and future. A subtle space was created by various interlaced and combined materials in the space. The contrast between different materials forms a dramatic effect with tension, which makes the texture of the space abundant and delicate.
设计:J&C设计
摄影:文房
地点:中国杭州
面积:120㎡
完工日期:11月
2019年
客服
消息
收藏
下载
最近

















