知末
知末
创作上传
VIP
收藏下载
登录 | 注册有礼

中国移动西宁综合监控中心丨中国西宁

2019/07/24 15:44:07
查看完整案例
微信扫一扫
收藏
下载
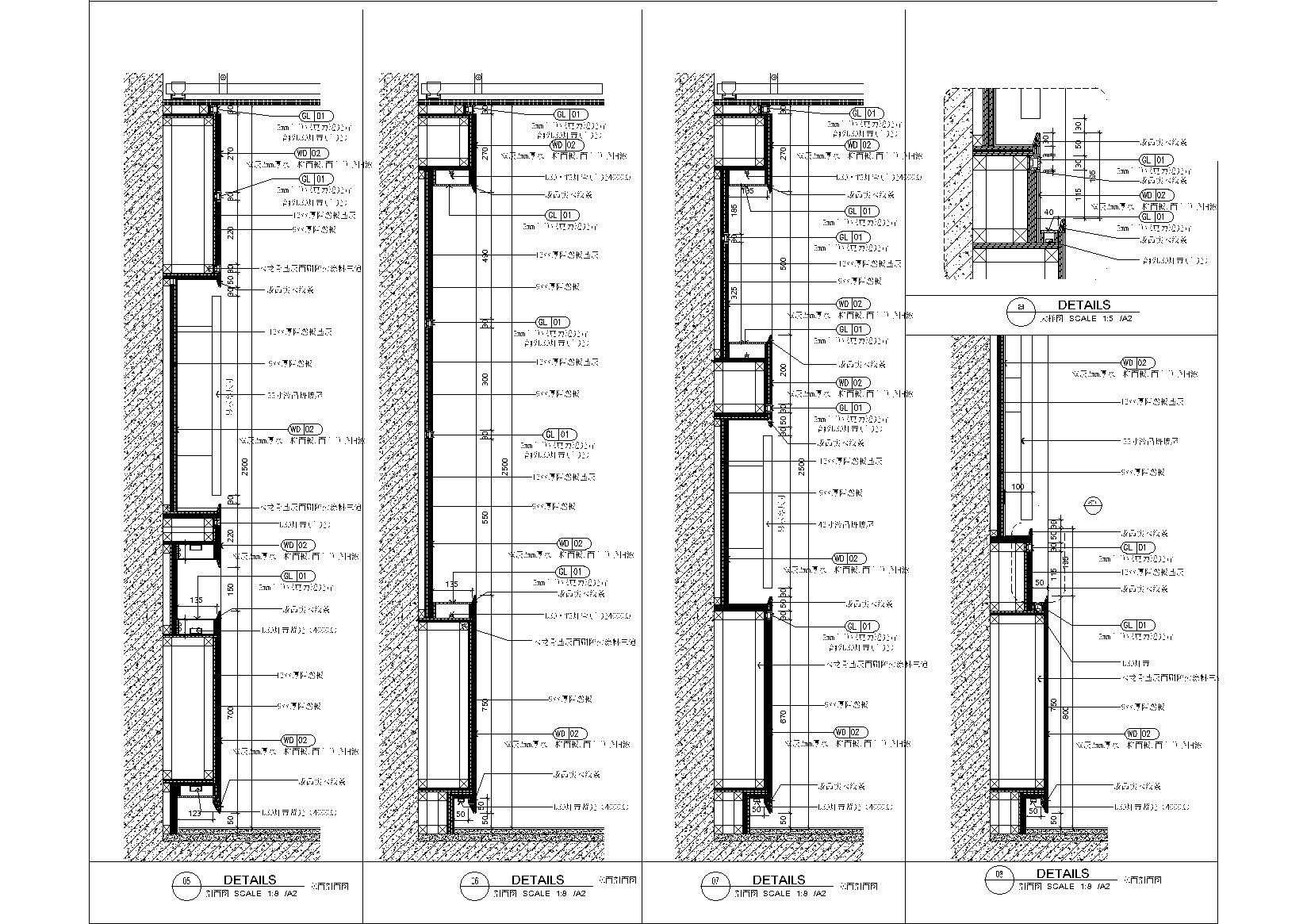
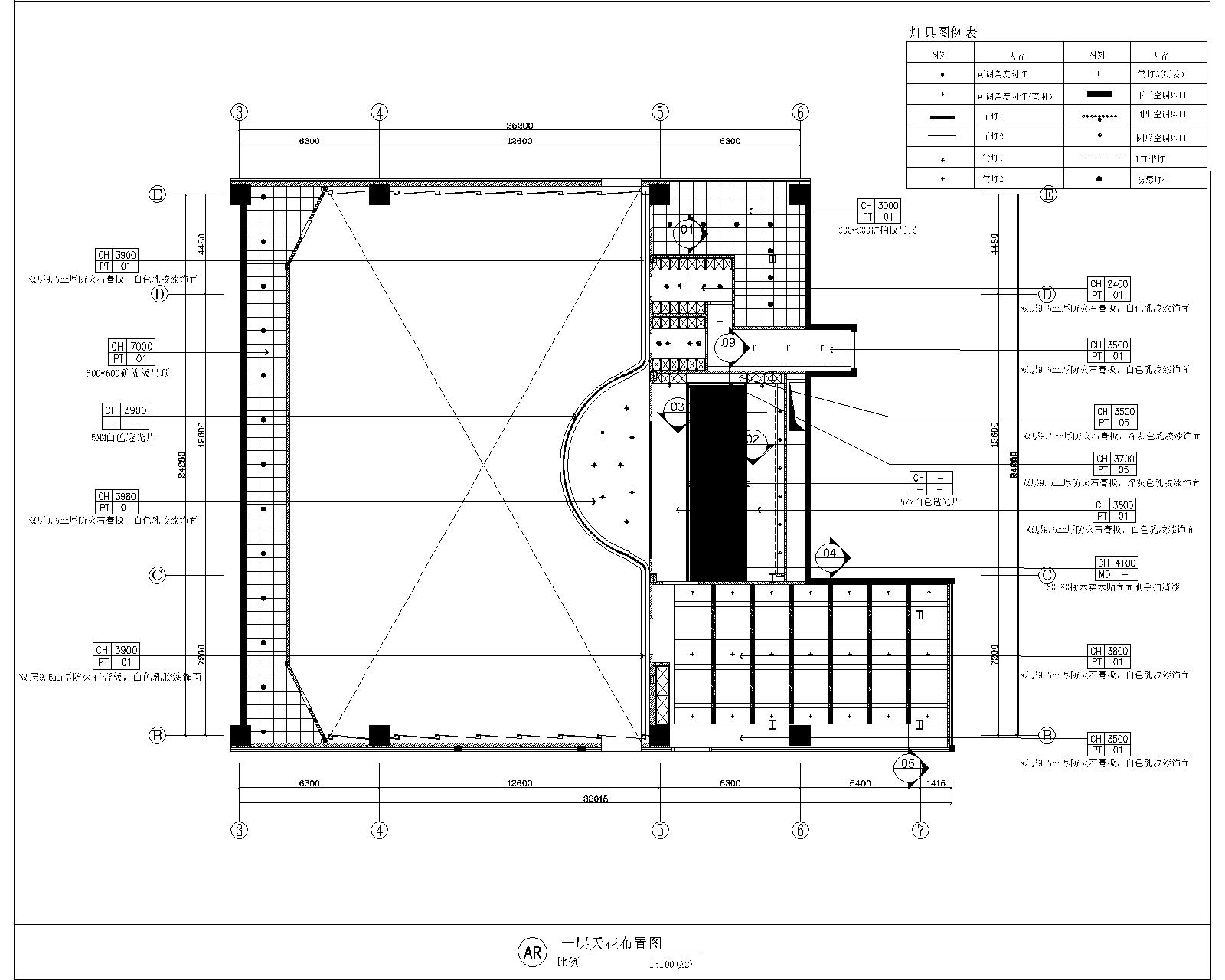
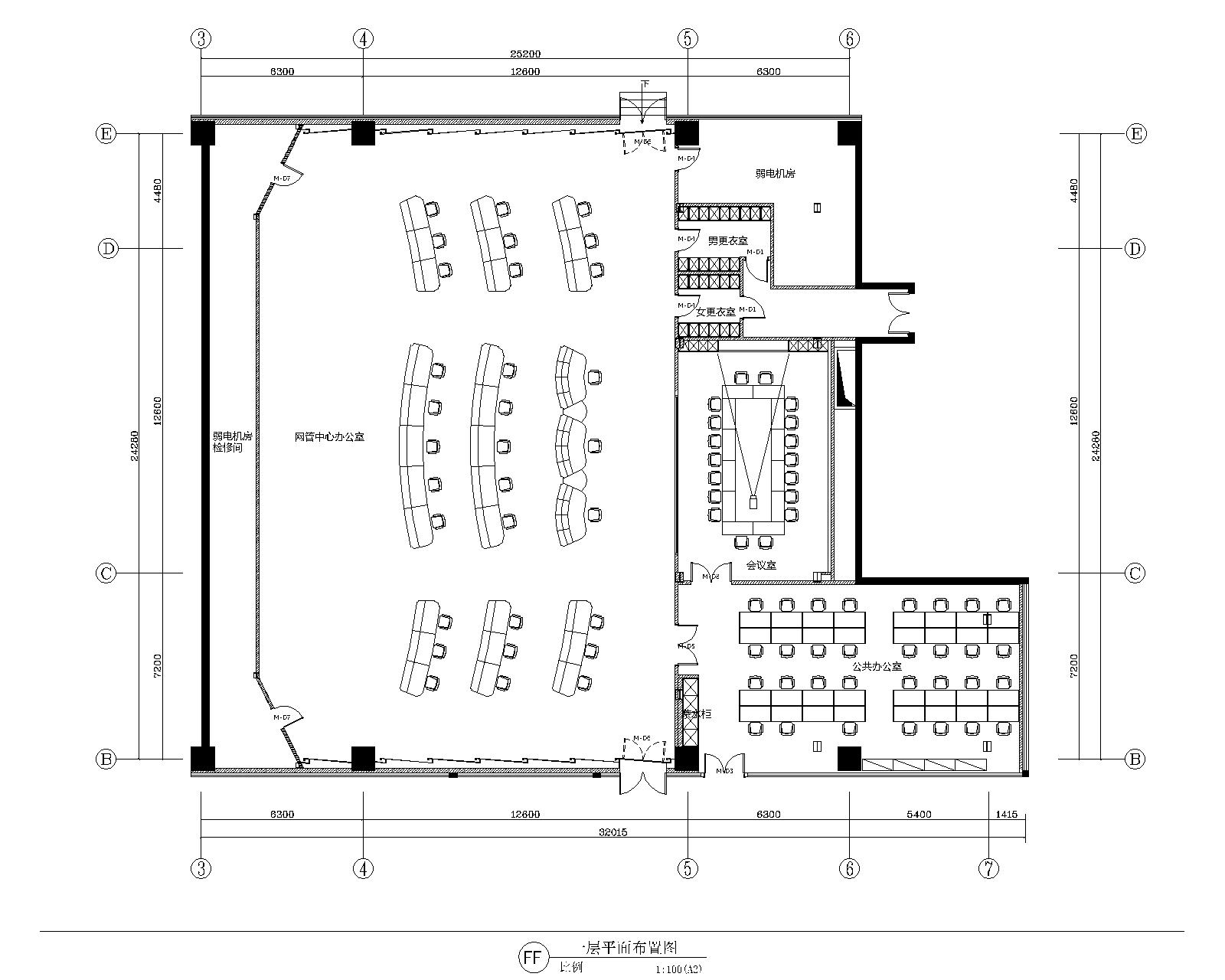
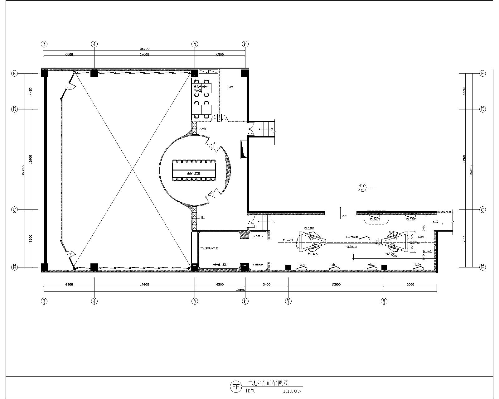
项目名称:中国移动西宁综合监控中心
项目地点:青海西宁
项目面积:1150㎡
竣工时间:2018年
设计主创:邓攀
设计机构:冉亦设计
中国移动西宁综合监控中心丨中国西宁-6
中国移动西宁综合监控中心丨中国西宁-7
中国移动西宁综合监控中心丨中国西宁-8
中国移动西宁综合监控中心丨中国西宁-9
中国移动西宁综合监控中心丨中国西宁-10
中国移动西宁综合监控中心丨中国西宁-11
中国移动西宁综合监控中心丨中国西宁-12
中国移动西宁综合监控中心丨中国西宁-13
中国移动西宁综合监控中心丨中国西宁-14
中国移动西宁综合监控中心丨中国西宁-15
中国移动西宁综合监控中心丨中国西宁-16
中国移动西宁综合监控中心丨中国西宁-17
中国移动西宁综合监控中心丨中国西宁-18
中国移动西宁综合监控中心丨中国西宁-19
南京喵熊网络科技有限公司 苏ICP备18050492号-4知末 © 2018—2020 . All photos and trademark graphics are copyrighted by their owners.增值电信业务经营许可证(ICP)苏B2-20201444苏公网安备 32011302321234号
客服
消息
收藏
下载
最近