查看完整案例


收藏

下载
项目名称:听然
项目设计:深圳漾空间设计有限公司
软装实施:越过山丘家具买手店
项目地点:深圳丽景城
项目面积:125平
装修风格:现代轻奢
听到的声音很美,那听不到的声音更美。
——济慈《希腊古瓮颂》
谈及对未来的家有怎样的期待时,业主说:“没有它之前只觉得‘你在打闹,我在傻笑’便是家,有了它之后一切开始具象,期待它能是恬静的(色调)、温暖的(光)、包容的(空间利用)、善解人意的(智能)……期待这间房子能将空间、时间、情感产生微妙的化学反应,见证爱。”听到这里,我只能说,不愧是我们的业主,艺术范儿十足!只是这样一来,我们的设计师就“鸭梨”山大了,不过,在绝对的专业能力面前,“鸭梨”吃起来——真香!
这个世界原本就是会说话的,只不过大多时候,它们都只在心底里轻声低语,若你偶然听到,请记得,爱你的TA,也很想知道。白,浅唱今昔;黑,诉说浓情;金,演绎华彩。而那一抹柔光,正温柔低语。
白色大理石纹理的墙砖整齐排列,纯净素雅的底色与线条纹理相互渗透,将冷色调的简约与高级展现得淋漓尽致,同时,精心挑选的极具艺术感的彩色马赛克挂画也恰到好处,瞬间中和了空间的硬度,连空气都变得十分灵动。
一个人内心所饱含的温度以及释放出的情感,往往可以用色彩进行诠释。以黑白灰为主色调的客厅,横添几笔暖色,大胆而颇有意思的设计,使空间的沉稳和恬淡在不经意间完美融合。
敞亮、简洁的客厅区域,不在硬装部分做复杂设计,而是将小巧思集中在软装方面。猝不及防的一抹清新,些许金色点缀其中,在深浅蓝的交织下更显温暖雅致,也让整个空间看起来低调而不失内涵。
延续了黑白色调的搭配,半开放式的厨房也可完美融入公共区域,扩大视觉空间感。而无论透过玻璃门的是灯光还是日光,都能营造享受烹饪的氛围,让厨房充满烟火气。
业主分享
Q:入住后,您最满意家里的哪个元素或角落?
A:整体都非常心水,最满意开放式厨房的区域。因为面积不大,能有隐藏式的推拉门、兼具吧台办公桌的餐桌、黑白金搭配出的高级感,是家里的亮点之一。
谁不想用一堵墙遮风挡雨,让心灵有个栖息?就好比夜深人静,一个故事就足矣。家里有墙,室内有光,故事刚好有人听。楼梯简约的黑色扶手与透明的有机玻璃相结合,美观、坚实的同时,也带给人不少安全感。
床边是金色质感且兼具床头柜功能的落地灯,柔和的灯光亮起,忘了是在梦中还是在现实里,总想留住点什么,无论真实或虚幻。侧耳倾听,多关注生活的细节,轻轻闭上眼睛,徜徉辽阔梦境,感受那暖心的温度……
次卧是一个单纯的休息空间,没有无意义的装饰,只将必要的软装合理搭配,色彩和谐素雅,能让人迅速平静下来,适合入眠。
业主分享
Q:想对装修设计的朋友说?
A:在深圳能拥有一套宅子并不容易,必须做到自己喜欢,毕竟在里面住的人真真切切是你自己!不要妥协于家人、朋友甚至设计师的某些喜好。装修确实很累,但绝对是世界上除了运动之外,第二个付出就一定有收获的事儿。
卫浴间黑白相间的马赛克墙砖嵌进整体白瓷墙面中,避免有序排列,呈现自在、随性的美感。台面添置一抹绿色,整洁清爽的组合让空间使用起来更加惬意。很多东西,并不是非要看见才好,我们只管去聆听去感受,因为有太多美好,不以物质形态展现,但我们应该相信,它们真实地存在某个角落,安静下来,侧耳仍砰然!
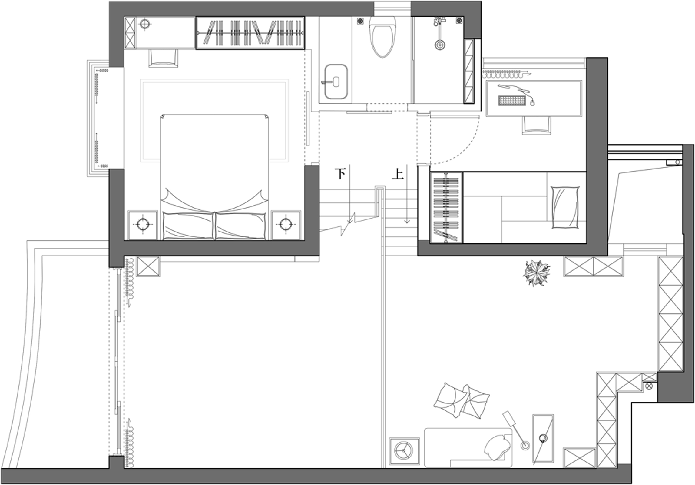
(一、二层平面布置图)
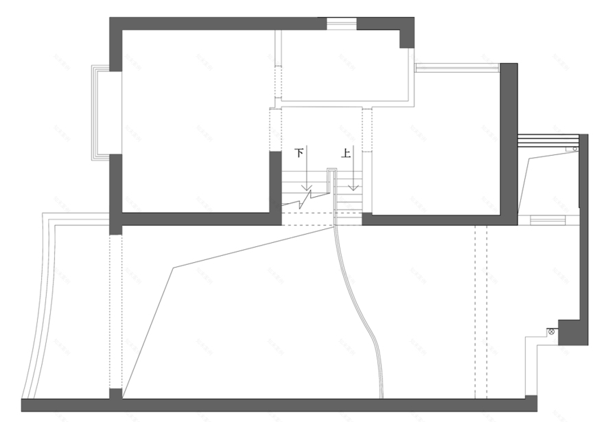
(三、四层平面布置图)
客服
消息
收藏
下载
最近



























