查看完整案例


收藏

下载
设计单位:研舍设计(软装设计)
软装搭配:YS·CASA
案例地址:棕榈泉独栋
面 积:700㎡
设计风格:意大利优雅法式的韵味(法式轻奢)
负一楼平面图
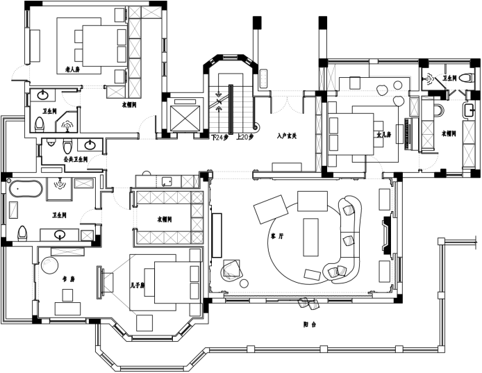
一楼平面图
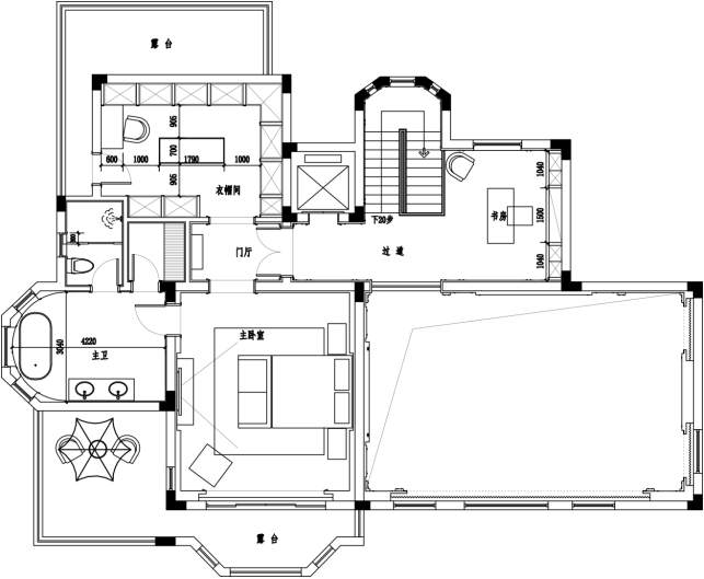
二楼平面图
负一楼会客厅餐厅实景图
视觉效果呈现优雅精致、追求生活的实用细节、软装饰品追求个性、与众不同。
负一楼餐厅实景
一楼客厅实景图
这个区域算是全部空间里最喜欢的一个空间了弧形的家具,
精致的挂件、饰品、镜子、地毯的搭配让整个空间更加优雅
客厅小景
羊羔毛单椅
电视背景墙
一楼玄关实景图
白色的柜体搭配天然水晶拉手变得与众不同,
铜制的灯具、镜子使空间更加有质感,
亚克力的案几配上近深感的画更加通透则
一楼过道
一楼女儿房
女儿房选择深浅不同的粉色,
明度的不同让空间的层次显现出来,
再加上浅蓝,丰富整个空间
一楼儿子房
儿子房书房
二楼书房
二楼主卧
主卧卫生间
主卧以灰色为基调,材质上用了绒布、羊羔绒、羊毛让整体舒饰温暖
主卧玄关
厨房及备用餐厅
END.......
客服
消息
收藏
下载
最近






































