查看完整案例


收藏

下载
项目:华润·银湖蓝山
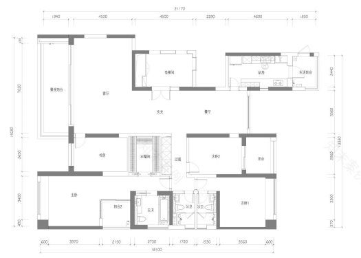
面积:270㎡
风格:法式轻奢
户型:四室两厅三卫
设计:永安设计
软装:永安设计重温法式情调,满足对法式轻奢的想象!细腻到时光里
在我们大多数的心中都有一个巴黎梦,卢浮宫的人文情怀,香榭丽舍的罗曼蒂克,交织成最美的梦境,透过风光流转的明媚微光,在隽永如诗如画的建筑中,在繁华似梦似锦的大街上,暖风微醺,塞纳河畔的独特风景,那是时光沉淀下来的法式浪漫。从某种意义上来说,真正的法式优雅,并不是夸张而奔放的张扬,而是属于高尚的格调和内敛的情怀,那是一种任何表象的花哨与浮华都无从表达的格调。——前记
一抹和柔轻缓的浅灰蓝,大面积清新的白,牵引出法式古典的浪漫情韵,奠定客厅优雅温馨的基调。以浅色为主色调,用少许亮色进行点缀。在视觉感知上,浅色与深色相比,是令人觉得较为柔和、舒适的色调,而少许亮色的点缀,使空间在和谐统一的基础上更具视觉层次感,为空间平添几许温度与生气。
法式轻奢风格往往会添加曲线这个传统法式风格中随处可见的设计元素,并结合方正矩形及几何框架的造型,使整个设计变得刚中有柔,恰得好处。
用简约淡雅的装饰突出品味,提升空间的艺术感,创造出轻奢化的法式浪漫。水晶吊灯洒下华丽的光影,皮革沙发与玻璃茶几刚柔并济彰显典雅与时尚。
少量的金属色与浅色的空间色彩,加上一点点甜甜的粉嫩,优雅里突显了小小的浪漫。
一些精致的花艺,茶具,无意间使整个空间更为亲切鲜活,细节中尽显设计师的匠心美意。
以简约来突显品质感,选择更灵活的配饰,创造轻奢化的法式浪漫,强化主题风格的同时,意在提升空间的艺术感。
延伸感的挂画,像古老的时光等待人们去触碰。
充满法式风格的小摆件,使整体的设计升华。
淡淡的清新之感扑面而来。
当简单的白与沉稳的灰,碰撞华贵的金与宁静的蓝,犹如朝阳映照下的塞纳河波光粼粼,整个空间萦绕优雅沉稳的气息。
吧台与吧椅的搭配极其巧妙,不经意间凸显浪漫矜贵。
在光照的反射下,呈现半光半影的效果,更添质感。
精心挑选的小摆件实用又别致,搭配壁炉的设计,空间有种别样的暖意。
窗外节奏如常,屋内缓慢安宁,人生如一杯没有加糖的咖啡,喝起来是苦涩,回味却有久久不能退却的余香。
牛乳色沙发以绿色橘色靠枕相配,散发着法式风情。
一杯咖啡,一本书,是午后最美的时光。
生活可以是柴米油盐,也可以是一尘不染,洒脱自在的优雅模样。敞亮的客厅与餐厅相连结,融入优雅、低调奢华的金属色调,大胆而活跃的搭配,现代家具和西式岛台给人带来时尚而现代的体验。
餐厅延续客厅的吊灯,餐厅精美的灯光映照着大理石桌面,奢华有度,优雅刚好。
餐厅与客厅相通,设计师用蓝色演绎轻奢之美,让人们在优雅的用餐时光里重温法式贵族情调。主人不凡的品味在空间中娓娓道来。
白色是一种较为舒适、柔和的色调,再加上少许的亮色点缀,会使整个空间既有和谐统一的感觉,又突出了视觉层次感,给空间增添许多生气和温度。
线条与金属,用淡雅的蓝色去中和冷意,与挂画搭配,精致而艺术的家从玄关开始。
黑色书桌、布纹墙壁,加入一把橘色的椅子,为空间注入新鲜的元素,使得空间更加活跃。
猫头鹰元素的书房,显得有那么一点俏皮。
主卧打通原有的阳台,给女主人增加了梳妆区,空间一下子宽敞了许多,延续了客厅的蓝灰色主色调,配上素色的家具和Baccarat的水晶吊灯,空间更显精致与时尚。
精致的家具营造生活的格调。
精心挑选的每样家居饰品,体现了主人不凡的生活品味。
雅致的梳妆台,带着淡淡的复古气息。
看似随意的搭配,也是别样的法式浪漫体现。
衣帽间是整个家最酷的地方,经典的黑金搭配,让整合空间更加有层次,乍一看是不是有种要穿越时空的感觉。
粉调子更是满满少女心,金色灯具与橘色挂画让空间更灵动活泼。
淡淡的色调,素雅而温馨。
带抽屉的小床头柜,实用简单。
利用衣柜的一角用隔板打造小型书柜,日常拿取放置都非常的方便。
没有太多的家具装饰,简简单单的,挂画和灯具的光影营造了空间的浪漫与温馨。
电梯间增设了鞋柜,选用白色烤漆面板,柜门与房间内护墙板造型呼应也用金属线条勾边,配上黄色的换鞋凳,也打破了原本沉闷的空间。
原始情况|Original situation这是一套精装修房改造项目,原来的户型南北通透,采光比较好。
功能改造思路|Idea保留原有电梯间,增设鞋柜。
拓展客厅面积,增加酒吧区功能,使客厅更显宽敞。
加大衣帽间面积,增强衣帽间储藏空间,
利用原有主人阳台面积,加大主人房,增加化妆区,使空间更加整体大方。
在总体设计上,设计师摒弃摒弃传统法式的繁复、冗杂的装饰造型与甜腻的色泽,转而用经典轴线、对称布局的方式,结合淡雅的空间色调或几何线条与典雅时尚的陈设软装,打造出一个法式轻奢主义的空间格调。
如果说每个项目都是设计师的孩子,那么这个孩子一定是一个拥有孤傲灵魂的少女,在她安静成长的岁月曾不被人夸赞,或因不够甜腻,或因不够规矩,人们曾不理解她的生长轨迹,但当她安静绽放的那一天却惊艳了众人,就像阳光洒落穹顶的那一抹柔软的惊鸿。
细节中尽显匠心美意。轻,是一种优雅态度,打造低调、舒适,却无损高贵与雅致的生活;奢,是一种小资情调,追求品质、精致,却不失平淡与朴素的状态。
客服
消息
收藏
下载
最近

































































